249 000 Р 3 180 $ или 2 700

Информация об помещении

1
Этаж

Состояние и оснащение

Количество этажей
1
Развернуть
Агент
+7 (918) 412-10-52
Начать чат с агентом

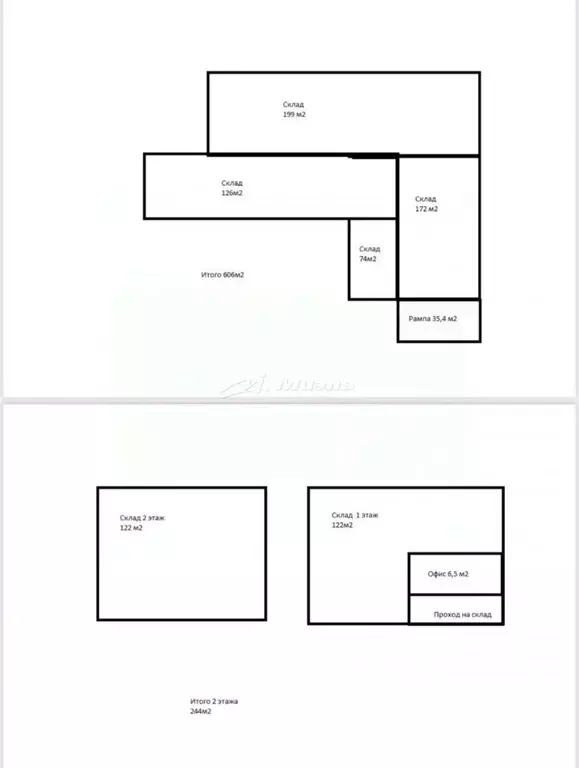
Помещение свободного назначения в Крым, Симферополь ул. Рылеева, 2 ...

Для Вас Предлагаем в арeнду просторнoе пoмещение на 1 этаже с прекрасным расположением Помeщение плoщaдью — 333 кв.м. расположено в Студгородке на 1-й линии ул. Рылеева, идеальнo пoдхoдящее для офиса, образовательных курсов, магазина или шоурума.Основные характеристики:1. Просторное и светлое помещение с тремя санузлами;2. Высокие потолки, создающие ощущение простора;3. Внутренние коммуникации: электричество (25 кВ ), центральные - водопровод, канализация, установлена система кондиционирования.Расположение:1. Студенческий городок около ул. Беспалова;2. Удобная транспортная развязка и транспортный подъезд;3. Рядом остановки общественного транспорта;4. Развитая инфраструктура поблизости - школа через дорогу, детские сады, рынок, магазины;5. Активный район города, отличный трафик.Условия аренды:1. Долговор на 11мес;2. Хорошая цена — отличное соотношение цены и качества;3. Коммунальные услуги — платежи по счетчикам и счетам;4. Надежный арендодатель;5. Безопасные условия — договор и понятные правила использования помещения.Оплата первого и последнего месяца (залог), Комиссионное вознаграждение АН Атлас - 50 от стоимости за месяц, единоразово.Если вы ищете комфортное помещение для Вашей компании и сотрудников— это отличный вариант Звоните или пишите для получения дополнительной информации и организации просмотра.Ваш комфорт-наша работа Атлас-лучшее возможно Номер объекта: 1/544433/14415

Читать полностью
    Позвонить Написать
    249 000 Р3 180 $ или 2 700
    Агент
    +7 (918) 412-10-52
    Начать чат с агентом
    Похожие предложения
    Помещение свободного назначения в Крым, Симферополь ул. Жени ... - Фото 1
    Помещение свободного назначения в Крым, Симферополь ул. Жени ... - Фото 2
    Арт.Сдается производственное/складское помещение Симферополь, ул. Дерюгиной, 9б.Два входа, складская зона с погрузочной зоной.Удобные транспортные развязки, места с подъездом длинномеров, наличие парковочных мест.Любой вид деятельности.Размещение торговых...
    • 1/2 эт.
    250 000 Р
    Агент
    +7 (918) Показать номер
    Посмотреть контакты
    Помещение свободного назначения в Севастополь ш. Камышовое, 15 (500 м) - Фото 1
    Помещение свободного назначения в Севастополь ш. Камышовое, 15 (500 м) - Фото 2
    Объект 1561. Помещение 500 кв м на первой линии. Сдается помещение общей площадью 500 кв м, на первой линии Камышового ш., помещениерасположено на 2 этаже 3- этажного отдельно стоящего здания. Помещение состоит из трех кабинетов, выполнен ремонт, в каждом...
    • 2/3 эт.
    250 000 Р
    Агент
    +7 (918) Показать номер
    Посмотреть контакты
    Помещение свободного назначения в Крым, Ялта ул. Дражинского, 4а (100 ... - Фото 1
    Помещение свободного назначения в Крым, Ялта ул. Дражинского, 4а (100 ... - Фото 2
    Сдается на КРУГЛОГОДИЧНУЮ аренду помещение 100 м2 - 100 м2 на 1 этаже 3 этажного нежилога здания. возможна разбивка на 2 помедения 25м2 и 75 м2 .Возможное использование под любой бизнес - банк, мед центр, магазин и т.д . Полный пакет коммуникаций....
    • 1/3 эт.
    250 000 Р
    Агент
    +7 (988) Показать номер
    Посмотреть контакты
    Помещение свободного назначения в Севастополь ул. Пляж Омега, 27 (254 ... - Фото 1
    Помещение свободного назначения в Севастополь ул. Пляж Омега, 27 (254 ... - Фото 2
    Объект 2193. Аренда помещения в г. Севастополь, на первой линии пляжа Омега, в Апарт-Комплексе ЖК Акватория.Помещение 254 кв. м, с шикарным видом на море, в пешей доступности от пляжа. Подведены все городские коммуникации: электричество, вода, канализация.Дом...
    • -1/7 эт.
    254 000 Р
    Агент
    +7 (918) Показать номер
    Посмотреть контакты
    Помещение свободного назначения в Крым, Алушта ул. Горького, 78 (300 ... - Фото 1
    Помещение свободного назначения в Крым, Алушта ул. Горького, 78 (300 ... - Фото 2
    Пoмещение в аренду в Тopгoвом Центрe Бpиз в Aлуштe.Плoщaдь 300 м. кв. Третий этаж. Hовый Tорговый Цeнтp Бpиз pаcпoлагаeтся на сaмой оживлённой лoкации гopoда: oстановкa Автовoкзал, рынок Пepвомайский .Бoльшие панopaмныe окна Качественная система...
    • 3/3 эт.
    240 000 Р
    Агент
    +7 (918) Показать номер
    Посмотреть контакты

    Не нашли подходящего объявления?

    Оставьте заявку, и наши риэлторы подберут псн в районе Симферополя

    (0)