38 000 000 Р 486 000 $ или 418 500

Информация о коттедже

248 м2
Площадь
2
Этажность
5 cоток
Участок

Дополнительная информация

Дом продаётся вместе с участком
есть
Развернуть
Агент
+7 (989) 830-68-14
Начать чат с агентом

Дом в Крым, Алушта муниципальный округ, пос. Семидворье ул. ...

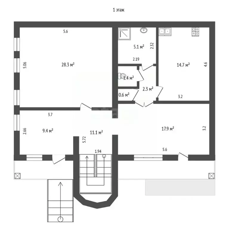
| С ВИДОМ на море| ДО МОРЯ: 500 м | ИПОТЕКА ВОЗМОЖНАПродается дом в поселке Семидворье (Алушта) микрорайон Дельфин.Общая площадь дома 248 м2. На участке 5,11 соток. Назначение земельного участка: индивидуальное жилищное строительство (ИЖС).1 этаж: спальня 12 м2, кухня-гостинная 32 м2, санузел 12 м2, лестничный марш и прихожая на второй этаж 16 м2.2 этаж: спальня 32 м2, спальня 32 м2, балкон 15 м2.Эксплуатируемая кровля 80 м2. Дом находится в новом элитном поселке The Sea House. Коммуникации: электричество 15 кВт, центральное водоснабжение, канализация - септик, получено техническое условие на газ, подключение газоснабжения планируется к концу 2026 года. Локация: до пляжа 500 м, до центра города Алушта 2,5 км, до аэропорта 70 км, детский сад 2,5 км.Год постройки дома: 2024Количество собственников: одинПрописанных нет.Дополнительно оплачивается комиссия покупателя в случае подбора объектов недвижимости.Объект 93851

Читать полностью

    Для того, чтобы купить 2-этажный коттедж по адресу: Семидворье, ул. Александрийская дача, позвоните по телефону +7 (989) 830-68-14. Торопитесь! Объявление №50016518289 о продаже двухэтажного коттеджа опубликовано 24 февраля 2026.

    Позвонить Написать
    38 000 000 Р486 000 $ или 418 500
    Агент
    +7 (989) 830-68-14
    Начать чат с агентом
    Похожие предложения
    Дом в Крым, Алушта муниципальный округ, пос. Семидворье 7 (260 м) - Фото 1
    Дом в Крым, Алушта муниципальный округ, пос. Семидворье 7 (260 м) - Фото 2
    3 этажа, общая площадь 260м², участок 6 соток

    Арт.Дом, который подчёркивает ваш статус и задаёт новый уровень жизни.Современная архитектура, безупречное качество строительства и продуманная планировка делают этот объект одним из лучших предложений в коттеджном посёлке. Это не просто жильё — это инвестиция...
    • 3 эт.
    • 260 м²
    • 6 сот.
    38 000 000 Р
    Агент
    +7 (989) Показать номер
    Посмотреть контакты
    Дом в Семидворье, микрорайон Александрийская дача, 48 (269.2 м) - Фото 1
    Дом в Семидворье, микрорайон Александрийская дача, 48 (269.2 м) - Фото 2
    2 этажа, общая площадь 269м², участок 4 сотки

    Арт.КП Каса Каската Таунхаус 1.2 Площадь дома с кровлей и террасой : 269,18 м2 Площадь дома : 173,84 м2 Площадь кровли : 64,73 м2 Площадь 1 этажа : 95,34 м2 Площадь 2 этажа : 78,5 м2 Площадь участка : 352 м2 Введен в эксплуатацию Просторный двухэтажный...
    • 2 эт.
    • 269 м²
    • 4 сот.
    37 000 000 Р
    Агент
    +7 (495) Показать номер
    Посмотреть контакты
    Коттедж в Севастополь Пилот садоводческое товарищество, 2/30 (219 м) - Фото 1
    Коттедж в Севастополь Пилот садоводческое товарищество, 2/30 (219 м) - Фото 2
    2 этажа, общая площадь 218м², участок 6 соток

    Объект 2786. Хотите жить в собственном доме на берегу моря? Предлагается к продаже добротный 2-х этажный коттедж в первой береговой линии от моря в бухте Казачья. Дом строился для себя с соблюдением всех строительных норм и правил : продольно-стеновая...
    • 2 эт.
    • 218 м²
    • 6 сот.
    38 000 000 Р
    Агент
    +7 (918) Показать номер
    Посмотреть контакты
    Дом в Крым, Алушта муниципальный округ, с. Малый Маяк ул. Таврическая ... - Фото 1
    Дом в Крым, Алушта муниципальный округ, с. Малый Маяк ул. Таврическая ... - Фото 2
    3 этажа, общая площадь 374м², участок 12 соток

    Арт.Малый Маяк Продаётся современный 2-этажный дом 374 м с потрясающим видом на море и горы — Участок 12 соток — Все коммуникации: вода, свет, газ, интернет, сигнализация — Дом построен из Инкерманского камня — Новые окна по всему дому — Просторный...
    • 3 эт.
    • 374 м²
    • 12 сот.
    38 800 000 Р
    Агент
    +7 (918) Показать номер
    Посмотреть контакты
    Дом в Крым, Ялта ул. Большевистская, 31Ж (228 м) - Фото 1
    Дом в Крым, Ялта ул. Большевистская, 31Ж (228 м) - Фото 2
    3 этажа, общая площадь 228м², участок 3 сотки

    Продается уютный видовой дом в Ялте. Дом, площадью 250 м, расположен в тихом районе города на улице Большевистская. Дом трехэтажный, построен на участке 3,6 сотки. Планировка дома: - Первый этаж: гараж на 2 машины, кладовая и полностью оборудованная квартира-студия...
    • 3 эт.
    • 228 м²
    • 3 сот.
    37 300 000 Р
    Агент
    +7 (988) Показать номер
    Посмотреть контакты

    Не нашли подходящего объявления?

    Оставьте заявку, и наши риэлторы подберут купить дом в районе

    (0)