34 490 000 Р 460 600 $ или 392 900

Информация о коттедже

472 м2
Площадь
3
Этажность
7 cоток
Участок

Дополнительная информация

Дом продаётся вместе с участком
есть
Развернуть
Агент
+7 (989) 291-32-04
Начать чат с агентом

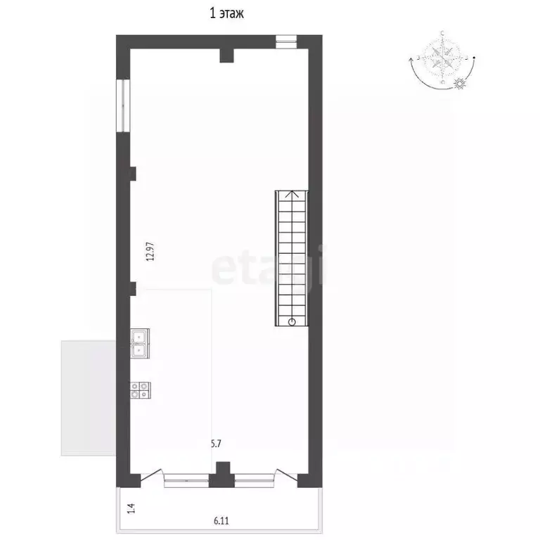
Дом в Крым, Алупка ул. Нагорная (472 м)

На Южном берегу Крыма в Алупке продается 3-этажный дом, под отделку. ОБ ОБЪЕКТЕ. Дом общей площадью 472 м2, расположен в тихом месте, на участке 7 соток. Двор предполагает ландшафтное зонирование в виде террас с зонами отдыха: беседками, барбекю, спортивной или детской площадки, возможно использование земли под небольшой сад или огород. Цоколь по проекту на два гаража, также возможно вместо гаража строительство бани. На первом и втором этажах по периметру дома видовые балконы. На третьем этаже просторная терраса, где возможно расположить лаунж-зону, откуда открывается панорамный вид утопающего в зелени побережья Алупки. ПЛАНИРОВКА. Дом свободной планировки, что дает возможность реализовать проект дома по своему предпочтению. По данному проекту дома цокольный этаж включает: 2 машиноместа, санузел, подсобное помещение. На первом этаже: две раздельные спальни, общий зал, два санузла, два лестничных хода. Второй этаж выполнен аналогично первому этажу. Третий этаж эксплуатируемая кровля с некапитальной конструкцией. ОСОБЕННОСТИ. Дом можно разделить на две автономные части. Возможно использование для личного проживания или реализовать проект гостиничного мини-комплекса. Дом примыкает к лесному массиву, позади отсутствует соседство, что обеспечивает приватность заднего двора. Вид из окон на море с рассветами и закатами. Уютное рекреационное место для сезонного или круглогодичного проживания. ИНФРАСТРУКТУРА. Алупка располагает всей необходимой инфраструктурой для комфортной жизни. Благоустроенные парки и прогулочные зоны. Расположение дома обеспечено удобной транспортной развязкой. Документы РФ. Просмотр в любое удобное для вас время. Помощь в одобрении ипотеки и открытии счета в банках. Страхование.Звоните и записывайтесь на просмотр.Арт.

Читать полностью

    Для того, чтобы купить 3-этажный коттедж по адресу: Алупка, ул. Нагорная, позвоните по телефону +7 (989) 291-32-04. Торопитесь! Объявление №50016973210 о продаже трехэтажного коттеджа опубликовано Вчера.

    Позвонить Написать
    34 490 000 Р460 600 $ или 392 900
    Агент
    +7 (989) 291-32-04
    Начать чат с агентом
    Похожие предложения
    Дом в Крым, Евпатория городской округ, Заозерное пгт ул. Садовая, 48Б ... - Фото 1
    Дом в Крым, Евпатория городской округ, Заозерное пгт ул. Садовая, 48Б ... - Фото 2
    2 этажа, общая площадь 246м², участок 8 соток

    Продается дом общей площадью 246 м2 на участке 8 соток. Участок ровный, правильной формы на участке гостевой дом 35м полностью готов к проживанию. Зеленый двор где есть зона барбекю, собственный пруд, гараж. Под гаражом имеется подвал. В доме два...
    • 2 эт.
    • 246 м²
    • 8 сот.
    33 000 000 Р
    Агент
    +7 (918) Показать номер
    Посмотреть контакты
    Дом в Севастополь ул. Композитора Боголепова (131 м) - Фото 1
    Дом в Севастополь ул. Композитора Боголепова (131 м) - Фото 2
    1 этаж, общая площадь 131м², участок 6 соток

    Объект 2840. Продается новый одноэтажный дом площадью 130квм из качественного материала- кирпича, утеплен минватой.Кухня-столовая площадью 50квм, две изолированные спальни, гардеробная, два санузла, душевая, сауна.Высокие потолки - 3м.Полы с подогревом...
    • 1 эт.
    • 131 м²
    • 6 сот.
    33 000 000 Р
    Агент
    +7 (989) Показать номер
    Посмотреть контакты
    Дом в Крым, Ялта муниципальный округ, Массандра пгт ш. Туристов, 5 ... - Фото 1
    Дом в Крым, Ялта муниципальный округ, Массандра пгт ш. Туристов, 5 ... - Фото 2
    4 этажа, общая площадь 337м², участок 2 сотки

    В продаже дом (таунхаус) общей площадь 337 м.кв. Дом капитальный, фундамент - железобетонная плита, каркас монолитный, заполнение газоблок, ширина стен 40см, утепление фасада 100 мм. Дом 4 этажа, планировка включает в себя: 1-й (цоколь) этаж - гараж на...
    • 4 эт.
    • 337 м²
    • 2 сот.
    33 000 000 Р
    Агент
    +7 (918) Показать номер
    Посмотреть контакты
    Дом в Крым, Феодосия ул. Листовничей (349 м) - Фото 1
    Дом в Крым, Феодосия ул. Листовничей (349 м) - Фото 2
    3 этажа, общая площадь 349м², участок 3 сотки

    Ваш новый дом ждёт вас — в самом сердце лучшего района города Представьте: просторный трёхэтажный особняк с 8 комнатами и 7 санузлами -здесь хватит места для всей семьи, гостей и даже домашнего офиса. Каждый член семьи оценит удобство Здесь есть всё...
    • 3 эт.
    • 349 м²
    • 3 сот.
    35 000 000 Р
    Агент
    +7 (918) Показать номер
    Посмотреть контакты
    Дом в Севастополь, территория ТСН СНТ РМЗ, 39 (250 м) - Фото 1
    Дом в Севастополь, территория ТСН СНТ РМЗ, 39 (250 м) - Фото 2
    2 этажа, общая площадь 250м², участок 7 соток

    Продам дом в перспективном районе Севастополя - район Максимовой дачи, рядом с проспектом Генерала Острякова. Район активно застраивается и развивается. В непосредственной близости ведется строительство коттеджного поселка, уже построен новый детский...
    • 2 эт.
    • 250 м²
    • 7 сот.
    35 000 000 Р
    Агент
    +7 (962) Показать номер
    Посмотреть контакты

    Не нашли подходящего объявления?

    Оставьте заявку, и наши риэлторы подберут купить дом в районе Алупки

    (0)