Россия, Крым, Ялта, Приморский парк имени Гагарина кв-л, 9
530 000 000 Р 6 647 500 $ или 5 748 900

Информация о квартире

912 м2
Площадь
50 м2
Кухня
студия
Комнат
18
Этаж
18
Этажность
Развернуть
Агент
+7 (988) 488-70-31
Начать чат с агентом

Студия Крым, Ялта Приморский парк имени Гагарина кв-л, 9 (912.7 м)

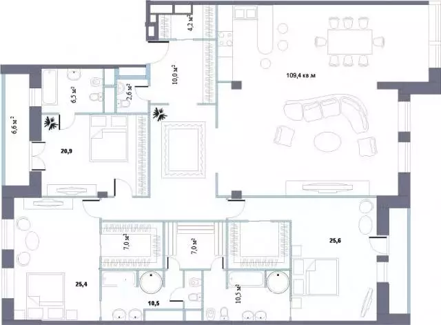
Супервидовой пентхаус двухуровневый на 20ом этаже в Приморском Парке, площадью 913 м в элитном комплексе Зазеркалье , уникальная возможность для создания частной резиденции. Объект расположен на верхнем этаже 20-этажного здания в Приморском парке Ялты, в 150 метрах от моря и 180 метрах от набережной. Ключевым преимуществом является абсолютная приватность, обеспечиваемая отдельным лифтом с прямым доступом на этаж. Свободная планировка двух уровней с высотой потолков 4,5 метра и панорамным остеклением по периметру позволяет реализовать любую дизайнерскую концепцию. Внутренняя площадь составляет 577,9 м, а просторные террасы 334,8 м с круговым обзором 360 открывают непрерывные виды на Черное море и Крымские горы, предоставляя потенциал для организации открытого бассейна, зоны отдыха или зимнего сада. Инфраструктура комплекса соответствует высоким стандартам: подземный паркинг, собственный панорамный бассейн-инфинити с сауной на этаже ниже, СПА, ресторан, фитнес-центр и детский клуб. Техническая оснащенность объекта включает автономные системы жизнеобеспечения — газовую котельную, резервные источники электроснабжения и водоснабжения, что гарантирует полную независимость. Сейсмическая устойчивость здания составляет 9,5 баллов, а остекление выполнено по энергосберегающим технологиям с высокой шумоизоляцией. Данный пентхаус представляет собой готовую основу для создания эксклюзивного жилого пространства в лучшей локации Южного берега Крыма, сочетающей уединенность парковой зоны с непосредственной близостью к городской инфраструктуре премиум-класса. Документы РФ готовы к сделки в день показа. МЫ ГАРАНТИРУЕМ ФИНАНСОВУЮ БЕЗОПАСНОСТЬ ДЛЯ НАШИХ КЛИЕНТОВ.Полное юридическое сопровождение сделки.Высокий шанс одобрения ипотеки.Звоните, с удовольствием ответим на ваши вопросы Код пользователя: 200609Номер в базе:

Читать полностью

    Для того, чтобы купить студию по адресу: Ялта, Приморский парк имени Гагарина кв-л, 9, позвоните по телефону +7 (988) 488-70-31. Торопитесь! Объявление №30094342553 о продаже студии опубликовано 21 марта 2026.

    Позвонить Написать
    530 000 000 Р6 647 500 $ или 5 748 900
    Агент
    +7 (988) 488-70-31
    Начать чат с агентом
    Похожие предложения
    Продается 6-комнатная квартира - Фото 1
    Продается 6-комнатная квартира - Фото 2
    общая площадь 256м², жилая 181м², кухня 20м²

    Предлагается просторная квартира свободной планировки, общей площадью 256,4 кв.м на 6 этаже. Квартира без отделки. Две квартиры на этаже, индивидуальный доступ к лифту. Без отделки, можно спланировать кухню-столовую, гостиную, три спальни, гардеробные,...
    • 256 м²
    • 6-ком
    • 6/17 эт.
    536 189 492 Р
    Агент
    +7 (903) Показать номер
    Посмотреть контакты
    3-к кв. Москва Большой Козихинский пер., 25 (151.1 м) - Фото 1
    3-к кв. Москва Большой Козихинский пер., 25 (151.1 м) - Фото 2
    3-комнатная квартира, общая площадь 151м², кухня 10м²

    ID 496659 Очень красивая и модная квартира площадью 151,1 масположена в элитном клубном доме Булгаков в самом сердце Патриарших прудов.Функциональной планировкой предусмотрена гостиная, объединенная с кухней-столовой, каминная, мастер-спальня с ванной...
    • 151 м²
    • 3-ком
    • 4/10 эт.
    • монолит
    528 850 000 Р
    Агент
    +7 (989) Показать номер
    Посмотреть контакты

    Не нашли подходящего объявления?

    Оставьте заявку, и наши риэлторы подберут квартиру в районе Ялты

    (0)