10 228 938 Р 126 500 $ или 109 500

Информация о квартире

31 м2
Площадь
16 м2
Жилая
6 м2
Кухня
1
Комната
2
Этаж
16
Этажность

Дополнительная информация

Тип дома
монолит
Развернуть
Агент
+7 (918) 251-56-72
Начать чат с агентом

1-к кв. Крым, Ялта ул. Мицко (31.26 м)

Видовая студия в жилом комплексе Комфорт-класса Клубный дом Ялта . Площадью 31,26 кв. м. Из окон открывается завораживающий вид на бескрайнее море и красавицу Ялту. Данное предложение является одним из самых выгодных инвестиций на рынке недвижимости Ялты. Просторная студия, идеально подойдёт как под сдачу, так и под собственное проживание. Строительство ведется по 214-ФЗ, эскроу счет в ПАО Сбербанк России. Действуют следующие программы: -Ипотека IT, военная-Ипотека от СБЕР-Семейная ипотека с господдержкой-Рассрочка от застройщика до конца 2026года. Планировка квартиры: -Гостиная 16,58 м2-Кухня 5,81 м2-Санузел 4,28 м2-Балкон 4,51 м2-Прихожая 3,87 м2Преимущества комплекса: Клубный дом Ялта предлагает к услугам жителей: закрытую территорию без машин, видеонаблюдение, подземный паркинг, а также все необходимое для комфортного проживания консьерж-сервис, кафе, магазин, детская и спортивная площадки, инфинити бассейн, сауна и хамам. В центре жилого комплекса расположен удивительный инфинити-бассейн. Его прозрачные границы создают ощущение бесконечности, а плавные линии гармонично вписываются в архитектуру. Летом здесь можно наслаждаться солнечными ваннами, а зимой теплой водой и шикарным видом. Уютные шезлонги и зелёные насаждения делают это место оазисом спокойствия идеальным для отдыха. Мы позаботились о наших самых маленьких жильцах и предусмотрелидетскую и спортивную площадки для активных игр на свежем воздухе. А современный Маугли-парк для детей всех возрастов поможет укрепить мышцы, а также насладиться активным отдыхом и острыми ощущениями.Резиденты Клубного дома Ялта могут наслаждаться не только панорамными видами на величественные горы, но и испытать себя на современном скаладроме, который интегрирован в концепцию клубного пространства.Для расслабления и восстановления предусмотрены сауна и хамам, где можно снять напряжение и насладиться атмосферой уюта.Подземный паркинг на 100 парковочных мест с келлерами, позволяет больше не беспокоиться о поиске места для своего транспортного средства и хранению вещей или запасной резины.На территории комплекса расположен современный магазин, где можно приобрести все необходимое. А кафе-пекарня порадует с утра свежим ароматным кофе и вкусным завтраком. Внутренняя развитая инфраструктура клубного дома обеспечивает удобство и экономит время наших резидентов, делая повседневную жизнь более комфортной. Клубный дом Ялта жилой комплекс воплощение мечты жизни у моря.

Читать полностью
    Позвонить Написать
    10 228 938 Р126 500 $ или 109 500
    Агент
    +7 (918) 251-56-72
    Начать чат с агентом
    Похожие предложения
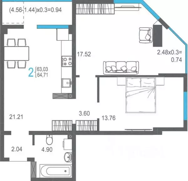
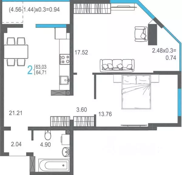
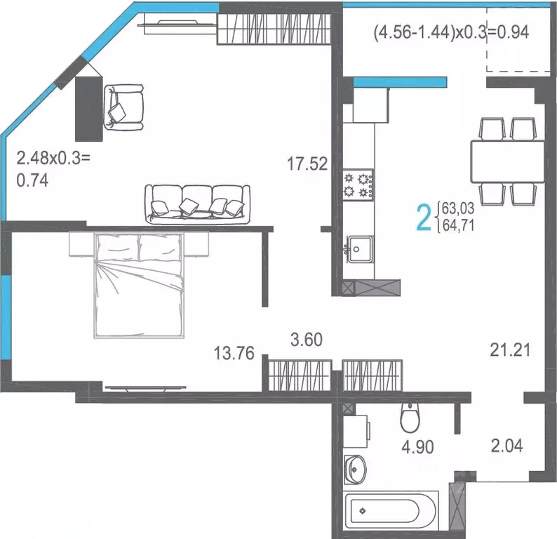
    2-к кв. Крым, Ялта ул. Кирова, 155Ак2 (64.71 м) - Фото 1
    2-к кв. Крым, Ялта ул. Кирова, 155Ак2 (64.71 м) - Фото 2
    2-комнатная квартира, общая площадь 64м²

    Продаётся 2-комнатная квартира в сданном доме (IV очередь), срок сдачи: I-кв. 2024, общей площадью 64.71 кв.м., на 3 этаже. ЖК Вишнёвый сад - это новый объект в сердце Ялты. Целебный воздух черноморского побережья, аромат магнолий и кипарисов, а также...
    • 64 м²
    • 2-ком
    • 3/17 эт.
    • монолит
    10 677 150 Р
    Агент
    +7 (923) Показать номер
    Посмотреть контакты
    1-к кв. Крым, Ялта Ай-Петри жилой комплекс (37.41 м) - Фото 1
    1-к кв. Крым, Ялта Ай-Петри жилой комплекс (37.41 м) - Фото 2
    1-комнатная квартира, общая площадь 37м²

    Продаётся 1-комнатная квартира в строящемся доме (Дом 1), срок сдачи: IV-кв. 2027, общей площадью 37.41 кв.м., на 13 этаже. Новый жилой комплекс Ай-Петри от застройщика Интерстройасположен по адресу Республика Крым, Ялта, улица Кирова
    • 37 м²
    • 1-ком
    • 13/19 эт.
    • монолит
    10 700 700 Р
    Агент
    +7 (994) Показать номер
    Посмотреть контакты
    2-к кв. Крым, Ялта ул. Кирова, 155Ак2 (64.71 м) - Фото 1
    2-к кв. Крым, Ялта ул. Кирова, 155Ак2 (64.71 м) - Фото 2
    2-комнатная квартира, общая площадь 64м²

    Продаётся 2-комнатная квартира в сданном доме (IV очередь), срок сдачи: I-кв. 2024, общей площадью 64.71 кв.м., на 2 этаже. ЖК Вишнёвый сад - это новый объект в сердце Ялты. Целебный воздух черноморского побережья, аромат магнолий и кипарисов, а также...
    • 64 м²
    • 2-ком
    • 2/17 эт.
    • монолит
    10 677 150 Р
    Агент
    +7 (923) Показать номер
    Посмотреть контакты
    2-к кв. Крым, Ялта ул. Кирова, 155Ак2 (64.71 м) - Фото 1
    2-к кв. Крым, Ялта ул. Кирова, 155Ак2 (64.71 м) - Фото 2
    2-комнатная квартира, общая площадь 64м²

    Продаётся 2-комнатная квартира в сданном доме (IV очередь), срок сдачи: I-кв. 2024, общей площадью 64.71 кв.м., на 3 этаже. ЖК Вишнёвый сад - это новый объект в сердце Ялты. Целебный воздух черноморского побережья, аромат магнолий и кипарисов, а также...
    • 64 м²
    • 2-ком
    • 3/17 эт.
    • монолит
    10 677 150 Р
    Агент
    +7 (923) Показать номер
    Посмотреть контакты
    2-к кв. Крым, Ялта ул. Кирова, 155Ак2 (64.71 м) - Фото 1
    2-к кв. Крым, Ялта ул. Кирова, 155Ак2 (64.71 м) - Фото 2
    2-комнатная квартира, общая площадь 64м²

    Продаётся 2-комнатная квартира в сданном доме (IV очередь), срок сдачи: I-кв. 2024, общей площадью 64.71 кв.м., на 3 этаже. ЖК Вишнёвый сад - это новый объект в сердце Ялты. Целебный воздух черноморского побережья, аромат магнолий и кипарисов, а также...
    • 64 м²
    • 2-ком
    • 3/17 эт.
    • монолит
    10 677 150 Р
    Агент
    +7 (923) Показать номер
    Посмотреть контакты

    Не нашли подходящего объявления?

    Оставьте заявку, и наши риэлторы подберут квартиру в новостройке в районе Ялты

    (0)