Реализация объекта недвижимости приостановлена

Информация о квартире

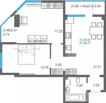
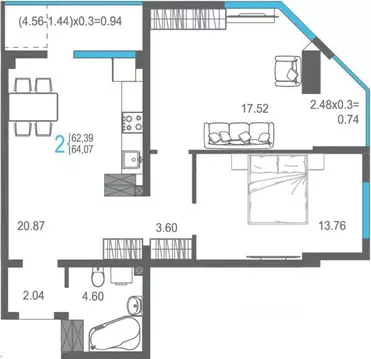
64.0 м2
Площадь
2
Комнаты
13
Этаж
17
Этажность

Дополнительная информация

Тип дома
монолит
Развернуть

2-к кв. Крым, Ялта ул. Кирова, 155Ак2 (64.07 м)

Продаётся 2-комнатная квартира в сданном доме (IV очередь), срок сдачи: I-кв. 2024, общей площадью 64.71 кв.м., на 13 этаже. ЖК Вишнёвый сад - это новый объект в сердце Ялты. Целебный воздух черноморского побережья, аромат магнолий и кипарисов, а также романтическая атмосфера жемчужины Крымского побережья круглый год радуют гостей и жителей курортной столицы. ГОРОД СЧАСТЬЯ Именно Ялта с исторически сложившимся постоянством всегда манила любителей комфортного теплого климата, пейзажных эстетов, романтиков, ценителей как насыщенной культурной жизни, так и умиротворенного релакса. Ласковое море, величественные горы, лес, уникальные памятники архитектуры, превосходные парки, просторные пляжи, многочисленные SPA и здравницы, современная набережная, уютные кафе и ресторации со своей неповторимой атмосферой, бутики и ремесленные лавочки здесь каждый найдет интерес по своему вкусу. СТАНДАРТЫ СТРОИТЕЛЬСТВА Проект предусматривает возведение четырех 16-этажных домов по надежной технологии монолитно-каркасного строительства. Здания отличаются высокой прочностью, сейсмостойкостью и теплоустойчивостью. Летом в квартире не будет жарко, а зимой в помещениях сохранится накопленное тепло. Приобрести подходящее жилье у моря в ЖК Вишнёвый сад сможет широкий круг покупателей. В новом комплексе вы сможете выбрать как компактные студии, так и просторные одно- и двухкомнатные квартиры. ВНУТРЕННЯЯ СРЕДА Теплая курортная атмосфера в полной мере будет продолжена во внутридворовом пространстве. Благоустройство предусматривает оборудование зон отдыха с зелеными насаждениями и современных детских площадок. Для владельцев автомобилей будет возведен крытый паркинг. РАСПОЛОЖЕНИЕ ЖК Вишнёвый сад находится в 7 минутах пешей прогулки от Белой дачи Чехова. Поблизости находится множество достопримечательностей и исторических мест, добраться до любого уголка города можно пешком, на автомобиле, или общественном транспорте. Время в пути на личном транспорте до популярных объектов: набережная им. Ленина - 10 мин;центр города - 10 мин;СПА-салоны и спортклубы - 10 мин;Ливадийский парк - 10 мин;Массандровский парк - 20 мин;океанариум - 20 мин;аэропорт Симферополь - 1,5 часавокзал Симферополь - 1,5 часа;г. Севастополь - 1,5 часа.

Читать полностью

    Реализация объекта недвижимости приостановлена

    Не нашли подходящего объявления?

    Оставьте заявку, и наши риэлторы подберут квартиру в новостройке в районе Ялты

    (0)