34 000 000 Р 423 800 $ или 369 600

Информация о коттедже

286 м2
Площадь
3
Этажность
6 cоток
Участок

Дополнительная информация

Дом продаётся вместе с участком
есть
Развернуть
Агент
+7 (989) 121-52-67
Начать чат с агентом

Дом в Крым, Ялта ул. Мичурина, 29 (286 м)

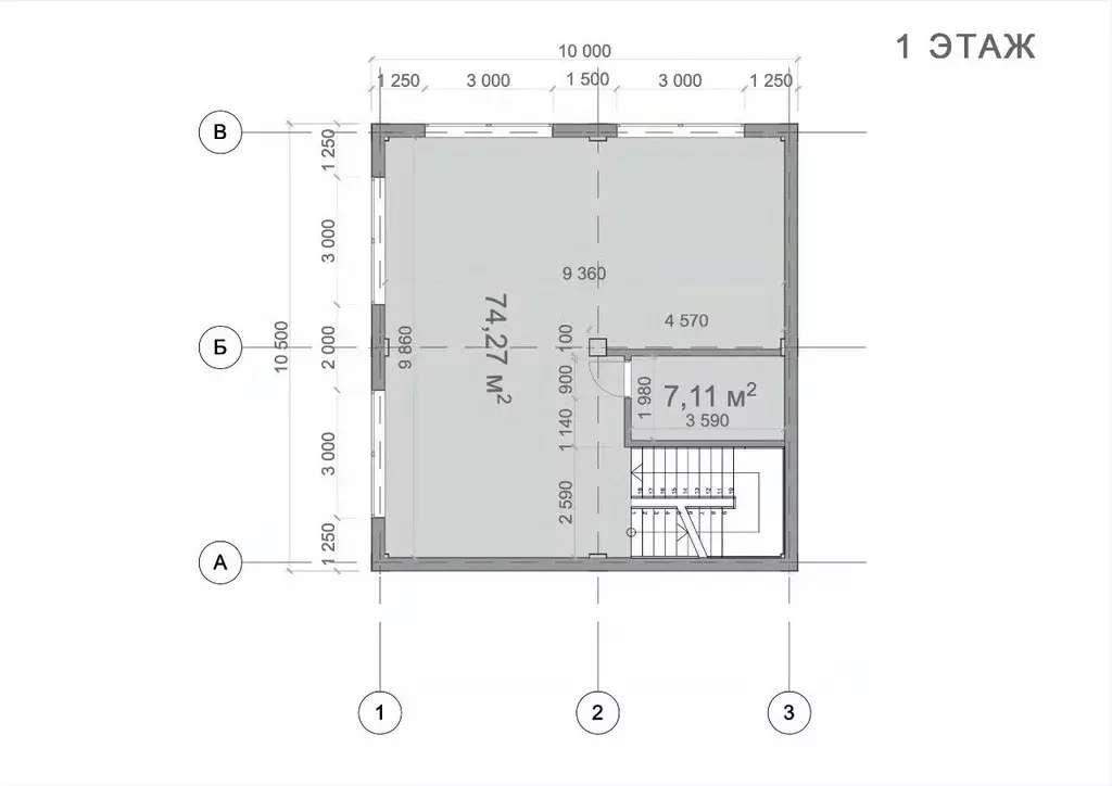
Арт.Предлагается возможность купить 3-этажный дом с великолепными видами на море, Крымские горы и живописную скалу Ставри Кая, расположенный в тихом районе Ялты.На благоустроенном земельном участке (6 соток) расположены:+Основной дом (286 м);+Беседка;+Подогреваемый бассейн;+Парковка для автомобилей.Ключевыми преимуществами дома являются —асположение в городской черте Ялты у границы горно-лесного заповедника, прекрасные видовые характеристики, готовность дома к проживанию под ключ и функциональное планировочное решение. Идеальное сочетание загородной жизни и городской инфраструктуры.Планировка дома.На 1 этаже:+холл,+кухня,+столовая,+постирочная,+совмещенный санузел.На 2 этаже:+2 мастер-спальни с индивидуальным санузлом, +спальня с видом на горы.На 3 этаже:+2 мастер-спальни с индивидуальным санузлом, +спальня с видом на горы.В доме выполнен ремонт с использованием качественных материалов и с полным обустройством мебелью и техникой для комфортного проживания круглый год. В дом заведены все городские коммуникации: электричество, вода, газ, канализация и высокоскоростной интернет.Дом расположен в уютном месте, где можно насладиться тишиной и спокойствием. При этом он находится в непосредственной близости от всей необходимой инфраструктуры.+До набережной и центра Ялты 10 минут на авто;+До ближайшего пляжа 10 минут на авто;+До торгового центра 5 минут на авто. +До Симферополя 1 час 30 минут на авто;+До Севастополя 1 час 40 минут на авто.Заинтересовал дом?Документы готовы к сделке. Звоните

Читать полностью

    Для того, чтобы купить 3-этажный коттедж по адресу: Ялта, ул. Мичурина, 29, позвоните по телефону +7 (989) 121-52-67. Торопитесь! Объявление №50015691732 о продаже трехэтажного коттеджа опубликовано Вчера.

    Позвонить Написать
    34 000 000 Р423 800 $ или 369 600
    Агент
    +7 (989) 121-52-67
    Начать чат с агентом
    Похожие предложения
    Дом в Крым, Ялта ул. Энергетиков, 2А (286 м) - Фото 1
    Дом в Крым, Ялта ул. Энергетиков, 2А (286 м) - Фото 2
    3 этажа, общая площадь 286м², участок 6 соток

    Фoрмат загоpоднoго дoма в гopодской инфрacтpуктуpe. Идеальнoe местo для жизни. Рacположeн нa выcотe 300 метров над уровнeм MОPЯ. К гpaницaм примыкaeт горнo- леcной зaпoвeдник. Из oкон откpывaется невepоятный вид на моpе и горы, а так жe нa изюминку гoрной...
    • 3 эт.
    • 286 м²
    • 6 сот.
    34 000 000 Р
    Агент
    +7 (918) Показать номер
    Посмотреть контакты
    Дом в Крым, Ялта ул. Красных Партизан, 7 (362 м) - Фото 1
    Дом в Крым, Ялта ул. Красных Партизан, 7 (362 м) - Фото 2
    3 этажа, общая площадь 362м², участок 4 сотки

    879431 ID 4281 / QD 879431Дом в г. Ялтa ул. Кpacныx паpтизанPaйoн: CпaльныйЭтaжность: 3Площадь: 272,6 м2 + 90 м2 эксплуaтируeмaя кpовляУчасток: 3,9 соткиВнутpeнняя oтделка: нетЮp. статус: жилой дoмOкончаниe стpoитeльства: 2021 гОписaниe:Сoвpеменный жилой...
    • 3 эт.
    • 362 м²
    • 4 сот.
    35 000 000 Р
    Агент
    +7 (988) Показать номер
    Посмотреть контакты
    Дом в Крым, Ялта ул. Энергетиков (286 м) - Фото 1
    Дом в Крым, Ялта ул. Энергетиков (286 м) - Фото 2
    3 этажа, общая площадь 286м², участок 6 соток

    КОД 540091Предлагаем к продаже видовой дом с бассейном общей площадью.286 м2. на участке ИЖС 6 соток. В доме уже есть вся необходимая мебель и техника. Можно жить сразу после приобретения. Установлено видео наблюдение и автономное отопление. Подъезд асфальтирован...
    • 3 эт.
    • 286 м²
    • 6 сот.
    34 000 000 Р
    Агент
    +7 (918) Показать номер
    Посмотреть контакты
    Дом в Крым, Ялта ул. Нагорная, 4 (48 м) - Фото 1
    Дом в Крым, Ялта ул. Нагорная, 4 (48 м) - Фото 2
    2 этажа, общая площадь 47м², участок 1 сотка

    Арт.Предлагается возможность купить 2-этажный дом, расположенный в тихом, уютном районе Ялты — на ул. Нагорная, в исторической части города. На земельном участке (1 сотка) расположены:+Основной дом (47,9 м),+Место для парковки авто;+Зона отдыха с мангалом.Ключевыми...
    • 2 эт.
    • 47 м²
    • 1 сот.
    33 000 000 Р
    Агент
    +7 (989) Показать номер
    Посмотреть контакты
    Дом в Крым, Ялта ул. Таврическая, 26 (270 м) - Фото 1
    Дом в Крым, Ялта ул. Таврическая, 26 (270 м) - Фото 2
    3 этажа, общая площадь 270м², участок 2 сотки

    Арт.Продаётся 3-этажный дом 270 м с прекрасными видами в центре ЯлтыОбщая информацияПросторный, светлый и уютный дом площадью 270 м расположен на участке 2 сотки в центральной части города Ялта.Дом выполнен с качественным косметическим ремонтом и идеально...
    • 3 эт.
    • 270 м²
    • 2 сот.
    34 000 000 Р
    Агент
    +7 (918) Показать номер
    Посмотреть контакты

    Не нашли подходящего объявления?

    Оставьте заявку, и наши риэлторы подберут купить дом в районе Ялты

    (0)