55 960 000 Р 688 900 $ или 596 400

Информация о квартире

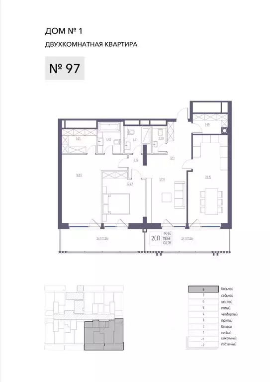
139 м2
Площадь
студия
Комнат
13
Этаж
15
Этажность
Развернуть
Агент
+7 (988) 199-10-93
Начать чат с агентом

Студия Крым, Ялта муниципальный округ, Курпаты пгт Царский берег жилой ...

Продаётся студия-апартаменты в строящемся доме (Корпус 1), срок сдачи: I-кв. 2026, общей площадью 139.9 кв.м., на 13 этаже. Компания Регион-Инвест Недвижимость представляет новый комплекс апартаментов Царский берег в Крыму. Апарт-отель находится в нескольких десятках метров от знаменитой Царской тропы (Солнечная тропа), по которой император регулярно совершал пешие прогулки. Неподалёку, в Ливадии, располагалась императорская резиденция Романовых, а шикарные дачи российской элиты строились вдоль всего южного берега Крыма. Приобретая апартаменты комплекса Царский берег , Вы становитесь не только обладателем элитной недвижимости, в Крыму, на берегу Черного моря, но и имеете возможность приобщится к части российской истории. Горы, море, солнце, мягкий климат делают это место идеальным, чтобы связать с ним свою жизнь. Близость ухоженных и оборудованных мелкогалечных пляжей, чистота приветливого моря, сочетание горного воздуха и морских бризов создают великолепные условия для отдыха и укрепления здоровья. В шаговой доступности от комплекса Царский берегасположен уникальный Золотой пляж, заслуженно считающийся самым чистым в регионе. Находящиеся всего в 100 метрах от комплекса санаторий Горный и санаторий Курпаты , также порадуют широким спектром услуг и помогут разнообразить досуг жителей. Здесь есть ресторан, кафе, теннисные корты, танцплощадки, бильярд, медицинские кабинеты, фитнес-зал и многое другое. Территория же самого апарт-отеля Царский берег сможет похвастаться открытым кафе с потрясающим видом на море и СПА-салоном с оздоровительными процедурами. Немалое удобство для жителей и гостей доставит и вместительный трехуровневый паркинг на нижних этажах комплекса. Панорамный вид (около 270 градусов) на море и отличный вид на горно-лесной заповедник будут радовать Вас постоянно. Комплекс Царский берег - это апартаменты различной площади: от 63 до 140 кв.м. Высота потолков - 3 метра. На Ваш выбор мы представляем 91 апартамент (со 2 по 14 этажи). На каждом этаже запроектировано всего 7 типовых планировок, которые смогут удовлетворить самый взыскательный вкус. Свободная планировка этих апартаментов позволит Вам организовать пространство в любом стиле. Можно спланировать будуар, итальянскую гостиную, японскую спальню и даже тренажерный зал. Открытые террасы, застекленные лоджии, панорамные окна, остекленные от пола до потолка, - всё это даёт отличную возможность жителям комплекса наслаждаться потрясающими панорамами крымских гор и Чёрного моря даже с нижних этажей дома.

Читать полностью
    Позвонить Написать
    55 960 000 Р688 900 $ или 596 400
    Агент
    +7 (988) 199-10-93
    Начать чат с агентом
    Похожие предложения
    Студия Крым, Ялта муниципальный округ, Курпаты пгт Царский берег жилой ... - Фото 1
    Студия Крым, Ялта муниципальный округ, Курпаты пгт Царский берег жилой ... - Фото 2
    студия, общая площадь 139м²

    Продаётся студия-апартаменты в строящемся доме (Корпус 1), срок сдачи: I-кв. 2026, общей площадью 139.9 кв.м., на 13 этаже. Компания Регион-Инвест Недвижимость представляет новый комплекс апартаментов Царский берег в Крыму. Апарт-отель находится в...
    • 139 м²
    • студия-ком
    • 13/15 эт.
    55 960 000 Р
    Агент
    +7 (988) Показать номер
    Посмотреть контакты
    2-к кв. Крым, Саки Птица жилой комплекс (95.15 м) - Фото 1
    2-к кв. Крым, Саки Птица жилой комплекс (95.15 м) - Фото 2
    2-комнатная квартира, общая площадь 95м², кухня 10м²

    СКК Птица — санаторно-курортный комплекс премиум-класса на первой береговой линии Черного моря Локация Комплекс располагается в курортном поселке Саки на западном берегу Крыма35 минут от аэропорта Симферополя40 минут до трассы Таврида 47 минут до Ж/Д...
    • 95 м²
    • 2-ком
    • 4/16 эт.
    • монолит
    55 187 000 Р
    Агент
    +7 (901) Показать номер
    Посмотреть контакты
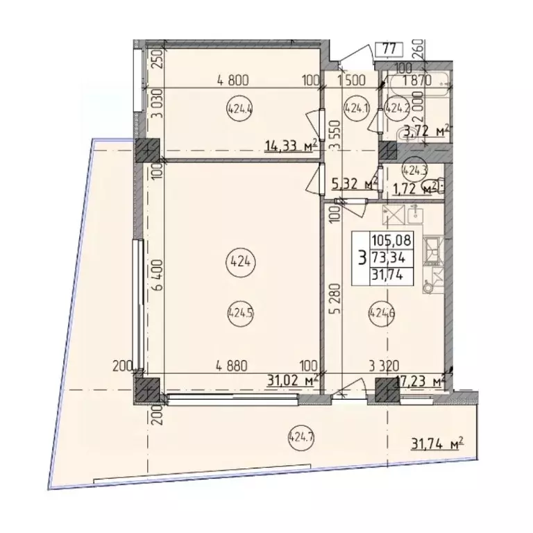
    3-к кв. Крым, Ялта Атлантида жилой комплекс (118.68 м) - Фото 1
    3-к кв. Крым, Ялта Атлантида жилой комплекс (118.68 м) - Фото 2
    3-комнатная квартира, общая площадь 118м², жилая 44м², кухня 20м²

    ЖК Атлантида — не просто жилье. Это приглашение к роскошной жизни на море. В нашем проекте будничность уступает место продуманности и удовольствию: современная архитектура, функциональные планировки квартир и общих пространств, стильное оформление и...
    • 118 м²
    • 3-ком
    • 8/8 эт.
    • монолит
    56 776 512 Р
    Агент
    +7 (968) Показать номер
    Посмотреть контакты
    3-к кв. Крым, Ялта Атлантида жилой комплекс (118.68 м) - Фото 1
    3-к кв. Крым, Ялта Атлантида жилой комплекс (118.68 м) - Фото 2
    3-комнатная квартира, общая площадь 118м²

    Продаётся 3-комнатная квартира в строящемся доме (Дом 1), срок сдачи: III-кв. 2028, общей площадью 118.68 кв.м., на 8 этаже. Новый жилой комплекс Атлантида от застройщика СЗ Аква-Трастасположен по адресуРеспублика Крым, Ялта, улица Коммунаров
    • 118 м²
    • 3-ком
    • 8/8 эт.
    56 776 512 Р
    Агент
    +7 (800) Показать номер
    Посмотреть контакты
    3-к кв. Севастополь ул. Парковая, 5 (105.08 м) - Фото 1
    3-к кв. Севастополь ул. Парковая, 5 (105.08 м) - Фото 2
    3-комнатная квартира, общая площадь 105м²

    Апартаменты в Cosmos Stay Sevastopol Atlant ApartmentsУправляющая компания Cosmos Hotel Group превращает недвижимость в бизнес.Вы получаете не просто апартаменты на первой линии у моря, а готовый инвестиционный объект с ремонтом под ключ, продуманным...
    • 105 м²
    • 3-ком
    • 4/9 эт.
    55 692 400 Р
    Агент
    +7 (934) Показать номер
    Посмотреть контакты

    Не нашли подходящего объявления?

    Оставьте заявку, и наши риэлторы подберут квартиру в новостройке в районе

    (0)