Реализация объекта недвижимости приостановлена

Информация о квартире

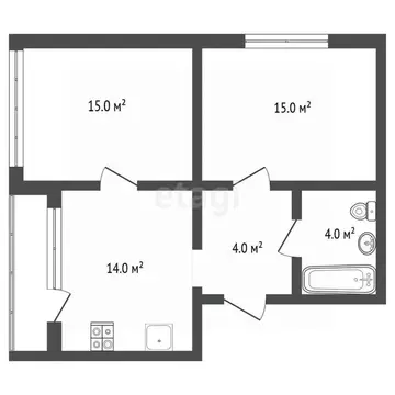
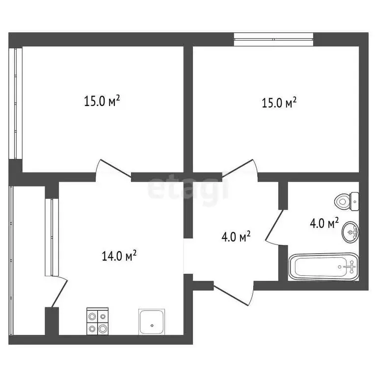
51.0 м2
Площадь
29.0 м2
Жилая
17.0 м2
Кухня
2
Комнаты
3
Этаж
6
Этажность
Развернуть

2-комнатная квартира: Гаспра, Маратовская улица, 3С (51 м)

Продается уникальная квартира с потрясающим видом на Черное море в новом доме в живописном районе Гаспры, площадью 51 кв.м. Это идеальное место для комфортной жизни и незабываемого отдыха Просторная кухня площадью 17 кв.м. станет настоящим центром вашего домашнего уюта, а качественный ремонт и стильная мебель создадут атмосферу современного комфорта. Квартира полностью укомплектована бытовой техникой, что позволит вам сразу же наслаждаться жизнью без лишних хлопот.Все необходимые коммуникации уже подключены: электричество (счетчик), вода (счетчик), спутниковое ТВ и высокоскоростной интернет. Из окон открывается захватывающий вид на море, который будет радовать вас каждый день Расположение квартиры просто великолепное: в шаговой доступности находятся продуктовые магазины, стильные бутики, уютные кафе, аптека и санатории. А до пляжа всего 5 минут прогулочным шагом через живописный парк, где можно насладиться свежим воздухом и красотой природы.На территории дома предусмотрена общая парковка для вашего удобства. Дом уже сдан в эксплуатацию, и вы можете оформить прописку. Все документы готовы, и сделка пройдет быстро и без лишних хлопот. Не упустите шанс стать владельцем этой замечательной квартиры в Гаспре Звоните прямо сейчас, чтобы записаться на просмотр и сделать первый шаг к вашей мечте Код пользователя: 190326Номер в базе: 7648100

Читать полностью

    Реализация объекта недвижимости приостановлена

    Не нашли подходящего объявления?

    Оставьте заявку, и наши риэлторы подберут квартиру в районе

    (0)