Россия, Крым, Судак, Набережная улица, 75
13 000 000 Р 166 900 $ или 142 300

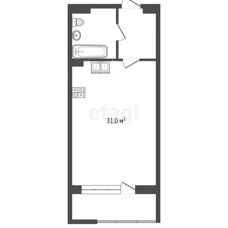
Информация о квартире

41 м2
Площадь
7 м2
Жилая
студия
Комнат
3
Этаж
8
Этажность
Развернуть
Агент
+7 (989) 297-28-94
Начать чат с агентом

Квартира-студия: Судак, Набережная улица, 75 (41.9 м)

Представляем вашему вниманию уникальную возможность стать владельцем современных апартаментов в закрытом комплексе Atlas Apart-Hotel Spa в живописном городе Судак с потрясающим видом на море Эти стильные апартаменты общей площадью 41.9 кв.м. расположены на третьем этаже восьмиэтажного корпуса А с видом на горы . Просторная комната площадью 30 кв.м., уютный санузел и балкон площадью 5.8 кв.м. создают идеальные условия для комфортного проживания.Комплекс предлагает все для вашей комфортной жизни: собственная парковая зона, оборудованный пляж всего в 30 метрах от вашего нового дома, два открытых и один закрытый бассейн с подогревом, панорамный ресторан и кафе с открытой террасой, SPA-центр, различные типы саун и салон красоты. Для активного отдыха предусмотрены тренажерный зал, детские игровые площадки, комната для развития детей с няней, амфитеатр и прогулочные зоны с спортивными площадками. Безопасность и комфорт обеспечиваются охраняемой территорией с видеонаблюдением и управляющей компанией, которая предлагает полный спектр услуг.Вы можете просто приехать со своими вещами Это идеальное предложение для инвесторов и тех, кто мечтает о собственном уголке у моря для жизни и получения стабильного пассивного дохода.В шаговой доступности находятся живописные горы, знаменитая Генуэзская крепость XIV века и современный аквапарк Судак. Не упустите шанс стать частью этого уникального места Приглашаем вас в наш офис в центре города на чашечку ароматного кофе, где наши специалисты помогут вам реализовать вашу мечту Звоните прямо сейчас и записывайтесь на просмотр Ваш новый дом ждет вас Код пользователя: 195546Номер в базе: 9749709

Читать полностью

    Для того, чтобы купить студию по адресу: Судак, Набережная улица, 75, позвоните по телефону +7 (989) 297-28-94. Торопитесь! Объявление №30092307671 о продаже студии опубликовано 08 декабря 2025.

    Позвонить Написать
    13 000 000 Р166 900 $ или 142 300
    Агент
    +7 (989) 297-28-94
    Начать чат с агентом
    Похожие предложения
    Квартира-студия: Судак, Набережная улица, 75 (42.2 м) - Фото 1
    Квартира-студия: Судак, Набережная улица, 75 (42.2 м) - Фото 2
    студия, общая площадь 42м², жилая 6м²

    Представляем вашему вниманию уникальную возможность стать владельцем современных апартаментов в закрытом комплексе Atlas Apart-Hotel Spa в живописном городе Судак с потрясающим видом на море Эти стильные апартаменты общей площадью 42.2 кв.м. расположены...
    • 42 м²
    • студия-ком
    • 6/8 эт.
    13 500 000 Р
    Агент
    +7 (989) Показать номер
    Посмотреть контакты
    1-к кв. Крым, Судак ул. Набережная, 75 (41.8 м) - Фото 1
    1-к кв. Крым, Судак ул. Набережная, 75 (41.8 м) - Фото 2
    1-комнатная квартира, общая площадь 41м², кухня 5м²

    Вы мечтаете о жизни у самого моря, где комфорт и гармония становятся частью повседневности? Мы рады предложить вам уникальные апартаменты в закрытом комплексе Atlas Apart-Hotel Spa Это предложение, от которого невозможно отказаться Наши апартаменты...
    • 41 м²
    • 1-ком
    • 5/8 эт.
    • монолит
    12 500 000 Р
    Агент
    +7 (918) Показать номер
    Посмотреть контакты
    Студия Крым, Судак ул. Ленина, 90А (32.5 м) - Фото 1
    Студия Крым, Судак ул. Ленина, 90А (32.5 м) - Фото 2
    студия, общая площадь 32м², кухня 10м²

    Вашему вниманию предлагается видовая квартира-студия площадью 32,5 кв.м. с лоджией 12,6 кв.м., с современным ремонтом, расположенная в самом центре Судака Объект находится на оживленной центральной улице с полным набором инфраструктуры: магазины, рынок,...
    • 32 м²
    • студия-ком
    • 6/7 эт.
    12 000 000 Р
    Агент
    +7 (918) Показать номер
    Посмотреть контакты
    3-к кв. Крым, Судак пер. Серный, 3 (69.2 м) - Фото 1
    3-к кв. Крым, Судак пер. Серный, 3 (69.2 м) - Фото 2
    3-комнатная квартира, общая площадь 69м², жилая 47м², кухня 7м²

    Ваша Мечта о Крыму: Просторная квартира у моря и гор для жизни и инвестиций Представляем вам уникальное предложение, которое может стать ключом к вашей мечте о Крыме 3-комнатная квартира, расположенная в живописном месте, где величественные горы встречаются...
    • 69 м²
    • 3-ком
    • 3/5 эт.
    • блочный
    12 600 000 Р
    Агент
    +7 (918) Показать номер
    Посмотреть контакты
    3-к кв. Крым, Судак ул. Ленина, 44 (67.4 м) - Фото 1
    3-к кв. Крым, Судак ул. Ленина, 44 (67.4 м) - Фото 2
    3-комнатная квартира, общая площадь 67м², кухня 9м²

    Предлагаем вам уникальную возможность приобрести видовую трехкомнатную квартиру общей площадью 67,4 кв.м. в самом центре города по адресу г. Судак, ул. Ленина 44. Эта квартира расположена на 5 этаже, что гарантирует вам потрясающие виды на крымские горы...
    • 67 м²
    • 3-ком
    • 5/5 эт.
    • блочный
    12 450 000 Р
    Агент
    +7 (918) Показать номер
    Посмотреть контакты

    Не нашли подходящего объявления?

    Оставьте заявку, и наши риэлторы подберут квартиру в районе Судака

    (0)