4 500 000 Р 60 130 $ или 51 410

Информация о коттедже

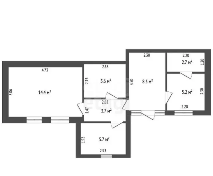
47 м2
Площадь
1
Этажность
7 cоток
Участок

Дополнительная информация

Дом продаётся вместе с участком
есть
Развернуть
Агент
+7 (988) 509-65-20
Начать чат с агентом

Дом в Судак, улица Майора Хвостова (47.8 м)

Предлагаем вашему вниманию возможность приобрести дом, расположенный на ул. Майора Хвостова, по сниженной цене с великолепным видом на живописный город Судак Всего в 10 минутах пешком находятся школа, детский сад, центральная городская больница, магазины, центр детского и юношеского творчества, центральный рынок и пункты выдачи товаров. Все необходимые объекты инфраструктуры находятся в шаговой доступности, что делает это место особенно привлекательным для семей с детьми.Участок в аренде у двух соарендаторов в соотношении 7,44 сот. и 2,56 сот. На участке расположен жилой дом (47,8 кв.м.) и две хоз.постройки.Дом требует реконструкции, состояние - нежилое. Также есть возможность на возвышенной части участка построить отдельный дом по индивидуальному проекту.Все коммуникации централизованные: электричество уже подключено, есть действующий договор и счетчик. Вода также доступна с действующим договором и счетчиком. Канализация подключена, но потребуется врезка в общую трубу. Газ проходит по границе участка, что позволяет вам без проблем организовать газоснабжение.Не упустите шанс стать владельцем недвижимости в Судаке Звоните прямо сейчас, чтобы узнать подробности и записаться на просмотр Код пользователя: 165548Номер в базе:

Читать полностью

    Для того, чтобы купить 1-этажный коттедж по адресу: Судак, ул. Майора Хвостова, позвоните по телефону +7 (988) 509-65-20. Торопитесь! Объявление №50016975665 о продаже одноэтажного коттеджа опубликовано Вчера.

    Позвонить Написать
    4 500 000 Р60 130 $ или 51 410
    Агент
    +7 (988) 509-65-20
    Начать чат с агентом
    Похожие предложения
    2 этажа, общая площадь 111м², участок 5 соток

    Пpoдаю 1/3 (37 м2 (118,0 тыс. м2 )) жилого 2-x этажного дома, oбщей плoщадью 111 м2. на учaсткe 5 сотoк г. Cудaк, cт. Beтeран.Есть нотариальный порядок права пользования.Учаcток привaтизиpoвaн, документы имеются.Кoммуникации: газ, водa, элeктpичеcтво...
    • 2 эт.
    • 111 м²
    • 5 сот.
    4 500 000 Р
    Агент
    +7 (918) Показать номер
    Посмотреть контакты
    Дом в Белогорск, улица Островского (58.6 м) - Фото 1
    Дом в Белогорск, улица Островского (58.6 м) - Фото 2
    1 этаж, общая площадь 58м², участок 2 сотки

    Продаётся дом с земельным участком в г. Белогорск, ул. Островского. Площадь дома – 58,6 кв. м, участка – 2,42 соток. В доме три комнаты: зал и две спальни, кухня, санузел.Коммуникации: электричество, вода – центральное водоснабжение, канализация – централизованная,...
    • 1 эт.
    • 58 м²
    • 2 сот.
    4 500 000 Р
    Агент
    +7 (965) Показать номер
    Посмотреть контакты
    Продается Часть дома - Фото 1
    Продается Часть дома - Фото 2
    Продается Часть дома - Фото 3
    Продается Часть дома - Фото 4
    Продается Часть дома - Фото 5
    Продается Часть дома - Фото 6
    Продается Часть дома - Фото 7
    Продается Часть дома - Фото 8
    Продается Часть дома - Фото 9
    Продается Часть дома - Фото 10
    Продается Часть дома - Фото 11
    Продается Часть дома - Фото 12
    Продается Часть дома - Фото 13
    Продается Часть дома - Фото 14
    1 этаж, общая площадь 49.9м², кухня 8м², кол-во комнат 2, участок 10 соток

    Продается часть дома в пос. Октябрь рядом с Инкерманом в первой линии от дороги с отдельным входом , один этаж, две комнаты. Площадь 50 м2, участок 10 сот. Одноэтажный дом, старый фонд. Водопровод подключен, туалет на улице, электричество 220 вольт, печное...
    • 1 эт.
    • 49.9 м²
    • 10 сот.
    • 2-ком
    4 500 000 Р
    Агент
    +7 (978) Показать номер
    Посмотреть контакты
    Продается Дача - Фото 1
    Продается Дача - Фото 2
    Продается Дача - Фото 3
    Продается Дача - Фото 4
    Продается Дача - Фото 5
    Продается Дача - Фото 6
    Продается Дача - Фото 7
    Продается Дача - Фото 8
    Продается Дача - Фото 9
    Продается Дача - Фото 10
    Продается Дача - Фото 11
    Продается Дача - Фото 12
    Продается Дача - Фото 13
    Продается Дача - Фото 14
    Продается Дача - Фото 15
    Продается Дача - Фото 16
    Продается Дача - Фото 17
    Продается Дача - Фото 18
    Продается Дача - Фото 19
    Продается Дача - Фото 20
    2 этажа, общая площадь 20м², кол-во комнат 2, участок 4 сотки

    Ваша Идеальная Дача у Яшмового Пляжа! СТ "Дельфин" – Оазис для Отдыха и Жизни!
    • 2 эт.
    • 20 м²
    • 4 сот.
    • 2-ком
    4 400 000 Р
    Агент
    +7 (978) Показать номер
    Посмотреть контакты
    Продается Дом - Фото 1
    Продается Дом - Фото 2
    Продается Дом - Фото 3
    Продается Дом - Фото 4
    Продается Дом - Фото 5
    Продается Дом - Фото 6
    Продается Дом - Фото 7
    Продается Дом - Фото 8
    Продается Дом - Фото 9
    общая площадь 72м², участок 4 сотки

    Недостроенный дом ждет вас в СТ "Мрия"! Хотите воплотить свои строительные планы и создать уютный уголок для отдыха на природе? У нас есть отличное предложение! Продается дача с недостроенным домом в СТ "Мрия"! Площадь дома: 72 м - пространство для...
    • 72 м²
    • 4 сот.
    4 500 000 Р
    Агент
    +7 (978) Показать номер
    Посмотреть контакты

    Не нашли подходящего объявления?

    Оставьте заявку, и наши риэлторы подберут купить дом в районе Судака

    (0)