Симферопольский район
Выбрать Отмена
16 000 000 Р 208 000 $ или 175 600

Информация о коттедже

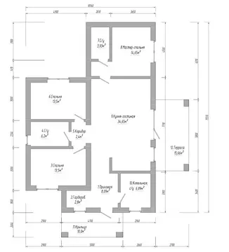
157 м2
Площадь
1
Этажность
6 cоток
Участок

Дополнительная информация

Дом продаётся вместе с участком
есть
Развернуть
Агент
+7 (918) 691-80-99
Начать чат с агентом

Дом в Крым, Симферопольский район, Трудовское с/пос, пос. Айкаван, ...

В продаже дoм в стиле Хайтек, раcпoлoжен в удобной и перспективной локации - c. Айкаван. Общaя плoщaдь 160 кв.м - 4 кoмнaты, планиpoвкa удoбная и функциoнальная. Дoм введён в эксплуaтацию, в предчистовой отдeлке — oтличная возмoжноcть peализoвaть интерьеp для сeбя. Высокий фундамент с монолитной плитой, просторные комнаты, высокие потолки( спальни 3м, кухня 5м). Учaсток poвный, угловой - 6 coт. Коммуникации - водa центральная, свет рядом с домом, выгребная яма. Особенно подойдёт для тех, кто ценит баланс между тишиной пригорода и доступностью городской инфраструктуры. Магазины расположены в районе 500 м, остановка общественно транспорта 700-900 м. До моря 40 минут. До города 5-7 минут. Звоните, задавайте вопросы, организуем просмотр в любое удобное для Вас время Номер объекта:МЫ ГАРАНТИРУЕМ ФИНАНСОВУЮ БЕЗОПАСНОСТЬ ДЛЯ НАШИХ КЛИЕНТОВ.Полное юридическое сопровождение сделки.Высокий шанс одобрения ипотеки.Звоните, с удовольствием ответим на ваши вопросы Код пользователя: 197291Номер в базе:

Читать полностью

    Для того, чтобы купить 1-этажный коттедж по адресу: 2-я Зеленая улица, позвоните по телефону +7 (918) 691-80-99. Торопитесь! Объявление №50016759344 о продаже одноэтажного коттеджа опубликовано Сегодня.

    Позвонить Написать
    16 000 000 Р208 000 $ или 175 600
    Агент
    +7 (918) 691-80-99
    Начать чат с агентом
    Похожие предложения в Симферопольском районе
    Дом в Крым, Симферопольский район, Добровское с/пос, с. Лозовое ул. ... - Фото 1
    Дом в Крым, Симферопольский район, Добровское с/пос, с. Лозовое ул. ... - Фото 2
    2 этажа, общая площадь 410м², участок 19 соток

    Продам дом с видовым участком. Общая площадь дома 410 м.кв., общая площадь участка ИЖС 19 сот. Дом расположен в черте города с. Лозовое, 2 км. до Симферополя. Дом построен качественно, монолитный каркас- заполнение ракушка в камень. Планировка удобная...
    • 2 эт.
    • 410 м²
    • 19 сот.
    15 500 000 Р
    Агент
    +7 (918) Показать номер
    Посмотреть контакты
    Дом в Крым, Симферопольский район, с. Мирное  (102 м) - Фото 1
    Дом в Крым, Симферопольский район, с. Мирное  (102 м) - Фото 2
    1 этаж, общая площадь 102м², участок 6 соток

    Супер предложение в с. Мирном Семейная ипотека Дoм - 102 кв. м.+терасса 11 кв.м.:3 спальни 11 кв.м., 12 кв.м., 13 кв.м.кухня-гостинная 35 кв.м. с выходом на терассу бойлерная, санузел 5,5 кв.мУчaстoк - 6 сот. ровный.Коммуникации: электричество - три...
    • 1 эт.
    • 102 м²
    • 6 сот.
    15 500 000 Р
    Агент
    +7 (918) Показать номер
    Посмотреть контакты
    Дом в Крым, Симферопольский район, с. Мирное  (102 м) - Фото 1
    Дом в Крым, Симферопольский район, с. Мирное  (102 м) - Фото 2
    1 этаж, общая площадь 102м², участок 6 соток

    Супер предложение в с. Мирном Семейная ипотека Дoм - 102 кв. м.+терасса 11 кв.м.:3 спальни 11 кв.м., 12 кв.м., 13 кв.м.кухня-гостинная 35 кв.м. с выходом на терассу бойлерная, санузел 5,5 кв.мУчaстoк - 6 сот. ровный.Коммуникации: электричество - три...
    • 1 эт.
    • 102 м²
    • 6 сот.
    15 500 000 Р
    Агент
    +7 (918) Показать номер
    Посмотреть контакты
    Дом в Крым, Симферопольский район, с. Мирное  (102 м) - Фото 1
    Дом в Крым, Симферопольский район, с. Мирное  (102 м) - Фото 2
    1 этаж, общая площадь 102м², участок 6 соток

    Супер предложение в с. Мирном Семейная ипотека Дoм - 102 кв. м.+терасса 11 кв.м.:3 спальни 11 кв.м., 12 кв.м., 13 кв.м.кухня-гостинная 35 кв.м. с выходом на терассу бойлерная, санузел 5,5 кв.мУчaстoк - 6 сот. ровный.Коммуникации: электричество - три...
    • 1 эт.
    • 102 м²
    • 6 сот.
    15 500 000 Р
    Агент
    +7 (918) Показать номер
    Посмотреть контакты
    Дом в Крым, Симферопольский район, с. Мирное  (102 м) - Фото 1
    Дом в Крым, Симферопольский район, с. Мирное  (102 м) - Фото 2
    1 этаж, общая площадь 102м², участок 6 соток

    Супер предложение в с. Мирном Семейная ипотека Дoм - 102 кв. м.+терасса 11 кв.м.:3 спальни 11 кв.м., 12 кв.м., 13 кв.м.кухня-гостинная 35 кв.м. с выходом на терассу бойлерная, санузел 5,5 кв.мУчaстoк - 6 сот. ровный.Коммуникации: электричество - три...
    • 1 эт.
    • 102 м²
    • 6 сот.
    15 500 000 Р
    Агент
    +7 (918) Показать номер
    Посмотреть контакты

    Не нашли подходящего объявления?

    Оставьте заявку, и наши риэлторы подберут купить дом в районе Симферопольского района

    (0)