Реализация объекта недвижимости приостановлена

Информация о квартире

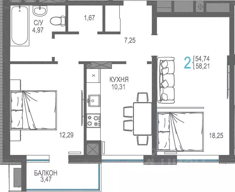
57.0 м2
Площадь
2
Комнаты
5
Этаж
8
Этажность
Развернуть

2-к кв. Крым, Симферопольский район, Гвардейское пгт, Республика жилой ...

Продаётся 2-комнатная квартира в строящемся доме (Дом 3), срок сдачи: III-кв. 2026, общей площадью 57.49 кв.м., на 5 этаже. Жилой комплекс от застройщика Интерстрой в п.г.т. Гвардейское Симферопольского района на улице Курганная.

Читать полностью

    Реализация объекта недвижимости приостановлена

    Не нашли подходящего объявления?

    Оставьте заявку, и наши риэлторы подберут квартиру в новостройке в районе

    (0)