200 000 Р 2 590 $ или 2 200

Информация о помещении и здании

2
Этаж
2
Этажность
Развернуть
Агент
+7 (918) 433-14-12
Начать чат с агентом

Офис в Крым, Симферополь ул. Героев Сталинграда, 12А (200 м)

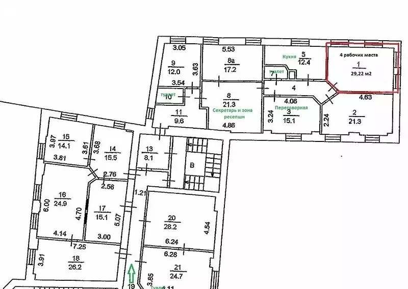
Для Вас Аренда современного торгово-офисного помещения, 1ая линия Героев Сталинграда.Характеристика: общая площадь 200 м.кв., панорамное остекление.Расположено на втором этаже 2х эт здания. Отдельный вход.Планировка: состоит из большого торгового зала, подсобного помещения и раздевалки.Коммуникации: отопление центральное, сан. узел расположен на этаже.Рекомендуемое назначение: офис, студия.Инфраструктура района: Гагаринский парк, большой густо-населенный спальный район домов бизнесс-класса.Документы РФ, ИП, оплата первого и последнего месяца, расчёт безналичный.Одноразово оплата 25 -комиссия риелтора.Ваш комфорт-наша работа Атлас-лучшее возможно Номер объекта: 1/544531/14415

Читать полностью
    Позвонить Написать
    200 000 Р2 590 $ или 2 200
    Агент
    +7 (918) 433-14-12
    Начать чат с агентом
    Похожие предложения
    Офис в Крым, Симферополь ул. Зои Жильцовой (122 м) - Фото 1
    Офис в Крым, Симферополь ул. Зои Жильцовой (122 м) - Фото 2
    1-й этаж, всего 1 этаж

    Сдается помещение в самом центре города Симферополь, на ул. Зои Жильцовой. Одноэтажное ,отдельно стоящее здание площадью 112,2 кв.м: три кабинета , кухня, санузел. Свой собственный двор и парковка. Сделан косметический ремонт. Автономное отопление. Помещение...
    • 1/1 эт.
    200 000 Р
    Агент
    +7 (988) Показать номер
    Посмотреть контакты
    Офис в Крым, Симферополь ул. Зои Жильцовой, 16 (122 м) - Фото 1
    Офис в Крым, Симферополь ул. Зои Жильцовой, 16 (122 м) - Фото 2
    1-й этаж, всего 1 этаж

    Сдается помещение под офис,либо что другое,3 кабинета,кухня, санузел,большой двор на 6 машин. 200 000 в месяц
    • 1/1 эт.
    200 164 Р
    Агент
    +7 (918) Показать номер
    Посмотреть контакты
    Офис в Севастополь ул. Ленина, 70 (250 м) - Фото 1
    Офис в Севастополь ул. Ленина, 70 (250 м) - Фото 2
    1-й этаж, всего 3 этажа

    На Первой линии ул Ленина Сдается в аренду помещение с отдельным входом под Офис, Специализированный магазин или Банк, Финансовую организацию и т.д. Первый этаж отдельный вход, состоит из двух этажей с тремя входами. Первая линия от Центральной улицы...
    • 1/3 эт.
    200 000 Р
    Агент
    +7 (918) Показать номер
    Посмотреть контакты
    Офис в Мордовия, Саранск ул. Терешковой, 18А (142 м) - Фото 1
    Офис в Мордовия, Саранск ул. Терешковой, 18А (142 м) - Фото 2
    1-й этаж, всего 5 этажей

    Коммерческое помещение свободного назначения площадью 142,2 кв. м. расположено в центре города. Объект находится на первой линии с высокой проходимостью, что обеспечивает постоянный поток потенциальных клиентов. Выгодное расположение объекта подходит...
    • 1/5 эт.
    200 000 Р
    Агент
    +7 (901) Показать номер
    Посмотреть контакты
    Офис в Нижегородская область, Богородск ул. Свердлова, 23А (320 м) - Фото 1
    Офис в Нижегородская область, Богородск ул. Свердлова, 23А (320 м) - Фото 2
    1-й этаж, всего 3 этажа

    Аренда офиса на ул. Свердлова 23А, отдельно-стоящее административное здание 3 этажа и подвал, открытая планировка, отделка под чистовую, мощность сети 400кВт.Асфальтированная площадка, тихое место.
    • 1/3 эт.
    192 000 Р
    Агент
    +7 (987) Показать номер
    Посмотреть контакты

    Не нашли подходящего объявления?

    Оставьте заявку, и наши риэлторы подберут офис в районе Симферополя

    (0)