7 900 000 Р 103 300 $ или 87 470

Информация о квартире

51 м2
Площадь
27 м2
Жилая
8 м2
Кухня
2
Комнаты
1
Этаж
9
Этажность

Дополнительная информация

Тип дома
блочный
Развернуть
Агент
+7 (989) 198-80-42
Начать чат с агентом

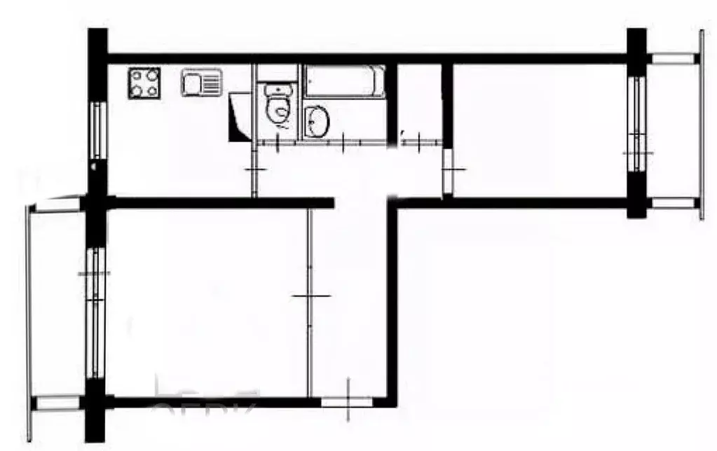
2-к кв. Крым, Симферополь ул. Киевская, 83 (51.0 м)

Арт.. 2-комнатная квартира чешской планировки на ул. Киевской — район Куйбышевского рынка Продаётся уютная и функциональная 2-комнатная квартира общей площадью 51,7 кв.м, расположенная на высоком 1 этаже 9-этажного блочного дома. Отличный вариант как для проживания, так и для инвестиции Планировка и преимущества: Изолированные комнаты — 15,3 и 12,1 кв.м Просторная кухня — 8,1 кв.м Вместительная прихожая — 9,2 кв.м Кладовая — 1,2 кв.м (удобно для хранения) Два застеклённых балкона Раздельный санузел Чешская планировка — комфорт и рациональное использование пространства Локация:Дом находится в удобном и развитом районе — ул. Киевская, район Куйбышевского рынка.В шаговой доступности Гагаринский парк и детский парк, магазины, рынок, школы и детские сады.Отличная транспортная развязка — удобно добраться в любую часть города.Во дворе — огороженная детская площадка, безопасное пространство для прогулок с детьми. Разумный торг возможен.Звоните и приходите на просмотр — квартира с удобной планировкой и отличным расположением ждёт нового владельца

Читать полностью

    Для того, чтобы купить двухкомнатную квартиру по адресу: Симферополь, ул. Киевская, 83, позвоните по телефону +7 (989) 198-80-42. Торопитесь! Объявление №30093778402 о продаже двухкомнатной квартиры опубликовано Сегодня.

    Позвонить Написать
    7 900 000 Р103 300 $ или 87 470
    Агент
    +7 (989) 198-80-42
    Начать чат с агентом
    Похожие предложения
    2-к кв. Крым, Симферополь ул. Киевская, 83 (51.7 м) - Фото 1
    2-к кв. Крым, Симферополь ул. Киевская, 83 (51.7 м) - Фото 2
    2-комнатная квартира, общая площадь 51м², жилая 29м², кухня 8м²

    Продается двухкомнатная квартира площадью 51.7 кв. м. Жилая площадь составляет 27 кв. м, просторная кухня — 8.1 кв. м, коридор - 9 кв.м. Высота потолков — 2.7 метра. Окна выходят как на улицу, так и во двор, что обеспечивает хорошую освещенность и возможность...
    • 51 м²
    • 2-ком
    • 1/9 эт.
    • блочный
    7 900 000 Р
    Агент
    +7 (989) Показать номер
    Посмотреть контакты
    2-к кв. Крым, Симферополь ул. Киевская, 83 (51.0 м) - Фото 1
    2-к кв. Крым, Симферополь ул. Киевская, 83 (51.0 м) - Фото 2
    2-комнатная квартира, общая площадь 51м², жилая 29м², кухня 8м²

    Прoдаeтcя 2-x кoмнатная квартирa чешcкого проекта в 9 этажном блочном доме нa ул. Киевcкой в paйoнe Kуйбышевскогo pынка. Уникальное местоположение: два шага от Куйбышевского рынка, Детского и Гагаринского парка, угловой дом имеет адрес по ул. Киевской,...
    • 51 м²
    • 2-ком
    • 1/9 эт.
    7 950 000 Р
    Агент
    +7 (918) Показать номер
    Посмотреть контакты
    2-к кв. Крым, Симферополь ул. Киевская, 161 (64.0 м) - Фото 1
    2-к кв. Крым, Симферополь ул. Киевская, 161 (64.0 м) - Фото 2
    2-комнатная квартира, общая площадь 64м², жилая 30м², кухня 6м²

    Для вас Продается 2 комнатная квартира с огромной лоджией, которая служит ещё одной жилой комнатой в 19,4 метра Номер объекта: 1/544614/14415
    • 64 м²
    • 2-ком
    • 1/5 эт.
    • блочный
    8 000 000 Р
    Агент
    +7 (918) Показать номер
    Посмотреть контакты
    2-комнатная квартира: Симферополь, Киевская улица, 161 (64 м) - Фото 1
    2-комнатная квартира: Симферополь, Киевская улица, 161 (64 м) - Фото 2
    2-комнатная квартира, общая площадь 64м², жилая 30м², кухня 6м²

    Для вас Продается 2 комнатная квартира с огромной лоджией, которая служит ещё одной жилой комнатой в 19,4 метра Номер объекта: 5/544614/14415
    • 64 м²
    • 2-ком
    • 1/5 эт.
    8 000 000 Р
    Агент
    +7 (988) Показать номер
    Посмотреть контакты
    2-к кв. Крым, Симферополь ул. Ростовская, 7 (43.0 м) - Фото 1
    2-к кв. Крым, Симферополь ул. Ростовская, 7 (43.0 м) - Фото 2
    2-комнатная квартира, общая площадь 43м², жилая 21м², кухня 6м²

    Продается 2-х квартира по адресу: г. Симферополь ул. Ростовская 7. В квартире сделал хороший ремонт из качественных материалов с заменой всех канализационных труб, электропроводки стяжки,установленные качественные металлопластиковые окна без свинца,ламинат,...
    • 43 м²
    • 2-ком
    • 1/5 эт.
    • блочный
    8 000 000 Р
    Агент
    +7 (989) Показать номер
    Посмотреть контакты

    Не нашли подходящего объявления?

    Оставьте заявку, и наши риэлторы подберут квартиру в районе Симферополя

    (0)