Реализация объекта недвижимости приостановлена

Информация о квартире

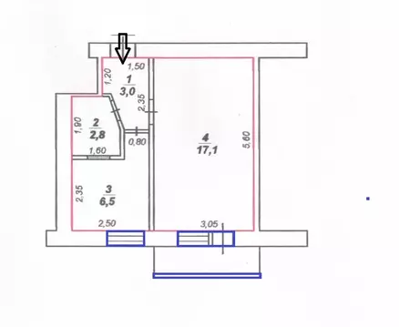
43.0 м2
Площадь
17.0 м2
Жилая
12.0 м2
Кухня
1
Комната
6
Этаж
9
Этажность

Дополнительная информация

Тип дома
монолит
Развернуть

1-к кв. Крым, Симферополь ул. Дзюбанова, 11 (43.2 м)

Арт.Просторная Однокомнатная квартира в ЖК Гармония Симферополь, ул. Дзюбанова, д. 11 литера В.Расположена на 6-м этаже 9-ти этажного монолитного дома 2022 года постройки. Общая площадь 43,2 кв, м. (с учетом балкона и лоджии), жилая 17 кв. м, кухня 12,7 кв, м. Гардеробная комната 3,2 кв, м. Санузел совмещенный 3,9 кв, м. Все коммуникации: газ, свет, вода, электричество. Установлены приборы учета: газ, свет, вода. Автономное газовое отопление. Охранная сигнализация Планировка продумана с точки зрения эргономики, комфорта и функциональности. Современные инженерные и архитектурные решения, качественная шумоизоляция, высокие потолки, большие окна, автоматизированная система передачи показаний приборов учета.Инфраструктура дома: - домофон, организовано пространство для консьержа.Инфраструктура ЖК: - на территории организовано озеленение, детские и спортивные площадки с зонами для отдыха. Предусмотрены гостевые автостоянки и наземный паркинг. В шаговой доступности находятся школы, детские сады, медицинские учреждения, фитнес-клуб, торговый центр и супермаркеты.Инфраструктура района: - Железнодорожный вокзал, автостанция Курортная Медицинская академия имени С.И. Георгиевского, детская поликлиника 1, школа 5, детский ясли-сад 13 Ромашка, детский сад 48 Пчелка, парк культуры и отдыха Гагаринский , парикмахерские, магазины.Право собственности РФ. Один собственник. Квартира под ваш эксклюзивный ремонтвозможность продажи в ипотеку/военную ипотеку/материнский капитал.Район пользуется спросом при сдаче квартиры в аренду Звоните

Читать полностью

    Реализация объекта недвижимости приостановлена

    Не нашли подходящего объявления?

    Оставьте заявку, и наши риэлторы подберут квартиру в районе Симферополя

    (0)