Россия, Крым, Симферополь, Центральный район
7 685 000 Р 96 390 $ или 82 140

Информация о квартире

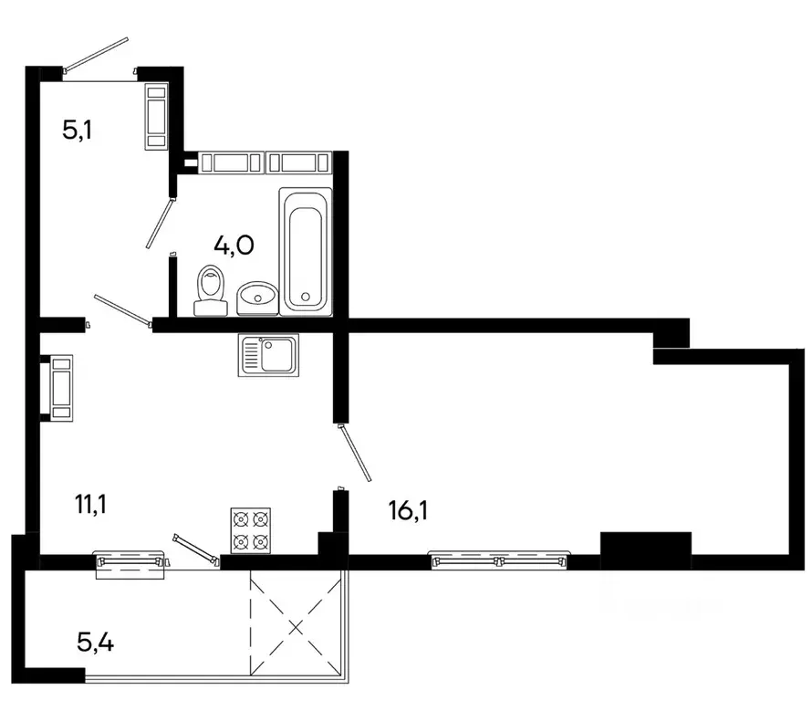
40 м2
Площадь
9 м2
Жилая
17 м2
Кухня
1
Комната
7
Этаж
9
Этажность
Развернуть
Агент
+7 (918) 059-69-05
Начать чат с агентом

1-комнатная квартира: Симферополь, Центральный район (40.44 м)

Apт.2517799. 1-комн. квартира с предчистовой отделкой в ЖМ Город Мира на 7 этаже. Общая площадь: 40.44 кв.м., жилая: 9.92 кв.м., площадь просторной кухни-столовой: 17.25 кв.м. Все окна выходят на одну сторону. В квартире один балкон, один совмещенный санузел. Высота потолков 2.7 м. Квартиры в ЖК Город Мира ваш комфорт начинается здесь Город Мира – это масштабный жилой комплекс, созданный для тех, кто ценит комфорт, безопасность и гармонию с природой. Здесь продумана каждая деталь: от удобной инфраструктуры до эргономичных планировок квартир. В 2024 году микрорайон Город Мира победил в номинации Лучший экологический проект года в сфере строительства по версии премии Crimea Urban Awards. Почему выбирают наш комплекс: - Зеленый оазис живите среди природы в черте города.- Всё под рукой 2 детских сада, магазины, фитнес, медицина. - Безопасность: закрытая территория с видеонаблюдением. Наши квартиры: - Просторные планировки с кладовыми. - Автономное отопление: платите только за реальное потребление. - Готовая предчистовая отделка: стяжка пола, штукатурка стен (кроме 3, 4 домов, где нет штукатурки стен). - Консьерж-сервис и подземный паркинг. Инфраструктура комплекса: - Детские и спортивные площадки. - Зоны отдыха с беседками. - Фитнес-клубы и салоны красоты. - Будущая школа на территории, уже функционируют два детских сада. Выгодные условия покупки: - Ипотека от 5,5 , военная ипотека от 5,5 . - Рассрочка. - Материнский капитал на первоначальный взнос. Квартира находится в корпусе 5_3.2. Дом монолитный, одноподъездный, высотой 9 этажей. В подъезде 1 грузовой лифт. Окончание строительства - 4 квартал 2026 года. Оформление сделки по договору долевого участия.

Читать полностью
    Позвонить Написать
    7 685 000 Р96 390 $ или 82 140
    Агент
    +7 (918) 059-69-05
    Начать чат с агентом
    Похожие предложения в Симферополе
    Студия Крым, Симферополь ул. Трубаченко, 21 (41.3 м) - Фото 1
    Студия Крым, Симферополь ул. Трубаченко, 21 (41.3 м) - Фото 2
    студия, общая площадь 41м²

    Продаётся студия в строящемся доме (Дом 1), срок сдачи: II-кв. 2026, общей площадью 41.7 кв.м., на 10 этаже. Жилой комплекс бизнес-класса Поэма от застройщика ИнтерСтрой в городе Ялта на улице Трубаченко
    • 41 м²
    • студия-ком
    • 10/16 эт.
    7 739 620 Р
    Агент
    +7 (901) Показать номер
    Посмотреть контакты
    Студия Крым, Симферополь ул. Балаклавская, 10 (41.4 м) - Фото 1
    Студия Крым, Симферополь ул. Балаклавская, 10 (41.4 м) - Фото 2
    студия, общая площадь 41м²

    Продаётся студия в строящемся доме (Дом 2), срок сдачи: II-кв. 2026, общей площадью 41.8 кв.м., на 12 этаже. Жилой комплекс бизнес-класса Поэма от застройщика ИнтерСтрой в городе Ялта на улице Трубаченко
    • 41 м²
    • студия-ком
    • 12/16 эт.
    7 758 360 Р
    Агент
    +7 (901) Показать номер
    Посмотреть контакты
    1-комнатная квартира: Симферополь, Центральный район (40.73 м) - Фото 1
    1-комнатная квартира: Симферополь, Центральный район (40.73 м) - Фото 2
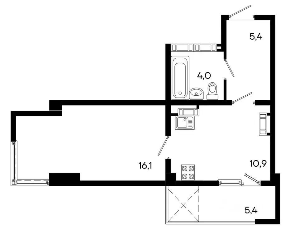
    1-комнатная квартира, общая площадь 40м², жилая 9м², кухня 17м²

    Apт.2531597. Продается однокомнатная квартира от застройщика с предчистовой отделкой в ЖМ Город Мира на 4 этаже. Общая площадь: 40.73 кв.м., жилая: 9.92 кв.м., площадь просторной кухни-столовой: 17.54 кв.м. Все окна выходят на одну сторону. В квартире...
    • 40 м²
    • 1-ком
    • 4/9 эт.
    7 740 000 Р
    Агент
    +7 (918) Показать номер
    Посмотреть контакты
    1-к кв. Крым, Симферополь ул. Батурина (40.44 м) - Фото 1
    1-к кв. Крым, Симферополь ул. Батурина (40.44 м) - Фото 2
    1-комнатная квартира, общая площадь 40м², жилая 9м², кухня 17м²

    1-комн. квартира с предчистовой отделкой в ЖМ Город Мира на 7 этаже. Общая площадь: 40.44 кв.м., жилая: 9.92 кв.м., площадь просторной кухни-столовой: 17.25 кв.м. Все окна выходят на одну сторону. В квартире один балкон, один совмещенный санузел. Высота...
    • 40 м²
    • 1-ком
    • 7/9 эт.
    • монолит
    7 685 000 Р
    Агент
    +7 (994) Показать номер
    Посмотреть контакты
    1-к кв. Крым, Симферополь ул. Батурина (40.73 м) - Фото 1
    1-к кв. Крым, Симферополь ул. Батурина (40.73 м) - Фото 2
    1-комнатная квартира, общая площадь 40м², жилая 9м², кухня 17м²

    Просторная однокомнатная квартира с предчистовой отделкой в ЖМ Город Мира на 4 этаже. Общая площадь: 40.73 кв.м., жилая: 9.92 кв.м., площадь просторной кухни-столовой: 17.54 кв.м. Все окна выходят на одну сторону. В квартире один балкон, один совмещенный...
    • 40 м²
    • 1-ком
    • 4/9 эт.
    • монолит
    7 740 000 Р
    Агент
    +7 (994) Показать номер
    Посмотреть контакты

    Не нашли подходящего объявления?

    Оставьте заявку, и наши риэлторы подберут квартиру в новостройке в районе Симферополя

    (0)