12 173 490 Р 155 600 $ или 134 000

Информация о квартире

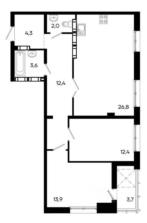
79 м2
Площадь
2
Комнаты
12
Этаж
16
Этажность
Развернуть
Агент
+7 (977) 091-22-01
Начать чат с агентом

2-к кв. Крым, Симферополь ул. Севастопольская, 41/8 (79.1 м)

Продаётся 2-комнатная квартира в строящемся доме (Корпус 1), срок сдачи: III-кв. 2026, общей площадью 79.3 кв.м., на 12 этаже. Клубный дом Моне от группы компаний ИнтерСтрой Образ клубного дома Моне в сердце крымской столицы вдохновлен творчеством гениального основоположника импрессионизма, живописца Клода Моне. Будучи необычайно талантливым художником, он работал в особом стиле, главная цель которого передать впечатление, характер, атмосферу... Локация клубного дома Моне - удивительна. Рядом находится живописное озеро. Прогулки здесь позволят резидентам насладиться красотой природы, расслабиться, вдохновиться прекрасными пейзажами, словно сошедшими с картин Клода Моне. Клубный дом Моне отличается многофункциональностью, стильным архитектурным обликом. Он станет архитектурной доминантой города и его украшением. Объект имеет великолепное расположение - это центральная часть столицы Крыма, где есть абсолютно вся инфраструктура. Монолитно-каркасный 16-этажный дом выполнен в современном стиле. Фасад из керамогранита светлых тонов с витражными системами остекления подчеркивает непринуждённый и гармоничный внешний вид здания. В клубном доме комфорт-класса представлены наиболее востребованные планировки квартир: - компактные студии от 34,9 м - универсальные однокомнатные от 38,9 м - удобные двухкомнатные от 64,6 м - просторные трёхкомнатные - 87,7 м Из окон откроются панорамные виды на городские пейзажи, парковую зону, озеро. Дом отделен от окружающей застройки стилобатной частью, что вместе с небольшим количеством квартир и локацией у озера, создает особенную атмосферу и обеспечивает оазис спокойствия загородного дома в самой центральной части города... - закрытая территория - приватность, безопасность и Ваш комфорт - охраняемый паркинг, в котором жильцы могут приобрести машиноместо для своего автомобиля - места для мототранспорта, велосипедов и самокатов - современная спортивная площадка - яркая детская игровая зона - дизайнерские холлы - система умный дом - уютный, благоустроенный двор - ландшафтное озеленение территории На первом этаже предусмотрены встроенные коммерческие помещения. В шаговой доступности находится всё необходимое для комфортной жизни: - остановки общественного транспорта и отделения банков - два торговых центра, супермаркеты, магазины, кафе, и кинотеатр - фермерские лавки - детские сады и школы - аптеки и медицинский центр - спортивная школа - досуговый клуб - конный клуб - парк имени Тренева Объект расположен в центральном районе города с великолепной транспортной развязкой. От клубного дома Моне удобно добираться как в центральную часть, так и на выезд из города.

Читать полностью
    Позвонить Написать
    12 173 490 Р155 600 $ или 134 000
    Агент
    +7 (977) 091-22-01
    Начать чат с агентом
    Похожие предложения в Симферополе
    3-к кв. Крым, Симферополь ул. Севастопольская, 41/8 (87.7 м) - Фото 1
    3-к кв. Крым, Симферополь ул. Севастопольская, 41/8 (87.7 м) - Фото 2
    3-комнатная квартира, общая площадь 87м²

    Продаётся 3-комнатная квартира в строящемся доме (Корпус 1), срок сдачи: III-кв. 2026, общей площадью 87.7 кв.м., на 4 этаже. Клубный дом Моне от группы компаний ИнтерСтрой Образ клубного дома Моне в сердце крымской столицы вдохновлен творчеством...
    • 87 м²
    • 3-ком
    • 4/16 эт.
    12 663 880 Р
    Агент
    +7 (977) Показать номер
    Посмотреть контакты
    3-к кв. Крым, Симферополь ул. Севастопольская, 41/8 (87.7 м) - Фото 1
    3-к кв. Крым, Симферополь ул. Севастопольская, 41/8 (87.7 м) - Фото 2
    3-комнатная квартира, общая площадь 87м²

    Продаётся 3-комнатная квартира в строящемся доме (Корпус 1), срок сдачи: III-кв. 2026, общей площадью 87.7 кв.м., на 3 этаже. Клубный дом Моне от группы компаний ИнтерСтрой Образ клубного дома Моне в сердце крымской столицы вдохновлен творчеством...
    • 87 м²
    • 3-ком
    • 3/16 эт.
    12 663 880 Р
    Агент
    +7 (977) Показать номер
    Посмотреть контакты
    3-к кв. Крым, Симферополь ул. Севастопольская, 41/8 (87.7 м) - Фото 1
    3-к кв. Крым, Симферополь ул. Севастопольская, 41/8 (87.7 м) - Фото 2
    3-комнатная квартира, общая площадь 87м²

    Продаётся 3-комнатная квартира в строящемся доме (Корпус 1), срок сдачи: III-кв. 2026, общей площадью 87.7 кв.м., на 4 этаже. Клубный дом Моне от группы компаний ИнтерСтрой Образ клубного дома Моне в сердце крымской столицы вдохновлен творчеством...
    • 87 м²
    • 3-ком
    • 4/16 эт.
    12 663 880 Р
    Агент
    +7 (977) Показать номер
    Посмотреть контакты
    2-к кв. Крым, Симферополь ул. Севастопольская, 41/8 (79.1 м) - Фото 1
    2-к кв. Крым, Симферополь ул. Севастопольская, 41/8 (79.1 м) - Фото 2
    2-комнатная квартира, общая площадь 79м²

    Продаётся 2-комнатная квартира в строящемся доме (Корпус 1), срок сдачи: III-кв. 2026, общей площадью 79.1 кв.м., на 10 этаже. Клубный дом Моне от группы компаний ИнтерСтрой Образ клубного дома Моне в сердце крымской столицы вдохновлен творчеством...
    • 79 м²
    • 2-ком
    • 10/16 эт.
    12 173 490 Р
    Агент
    +7 (977) Показать номер
    Посмотреть контакты
    2-к кв. Крым, Симферополь ул. Севастопольская, 41/8 (79.1 м) - Фото 1
    2-к кв. Крым, Симферополь ул. Севастопольская, 41/8 (79.1 м) - Фото 2
    2-комнатная квартира, общая площадь 79м²

    Продаётся 2-комнатная квартира в строящемся доме (Корпус 1), срок сдачи: III-кв. 2026, общей площадью 79.1 кв.м., на 11 этаже. Клубный дом Моне от группы компаний ИнтерСтрой Образ клубного дома Моне в сердце крымской столицы вдохновлен творчеством...
    • 79 м²
    • 2-ком
    • 11/16 эт.
    12 173 490 Р
    Агент
    +7 (977) Показать номер
    Посмотреть контакты

    Не нашли подходящего объявления?

    Оставьте заявку, и наши риэлторы подберут квартиру в новостройке в районе Симферополя

    (0)