Реализация объекта недвижимости приостановлена

Информация о квартире

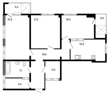
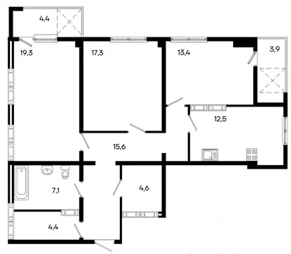
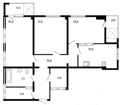
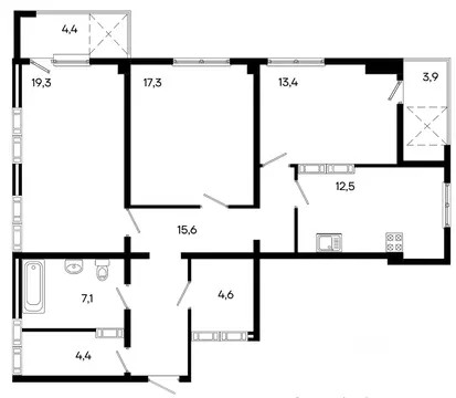
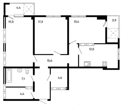
102.0 м2
Площадь
3
Комнаты
15
Этаж
16
Этажность
Развернуть

3-к кв. Крым, Симферополь ул. Балаклавская, 10 (102.5 м)

Продаётся 3-комнатная квартира в строящемся доме (Дом 2), срок сдачи: II-кв. 2026, общей площадью 102.5 кв.м., на 15 этаже. Жилой комплекс бизнес-класса Поэма от застройщика ИнтерСтрой в городе Ялта на улице Трубаченко

Читать полностью

    Реализация объекта недвижимости приостановлена

    Не нашли подходящего объявления?

    Оставьте заявку, и наши риэлторы подберут квартиру в новостройке в районе Симферополя

    (0)