Реализация объекта недвижимости приостановлена

Информация о квартире

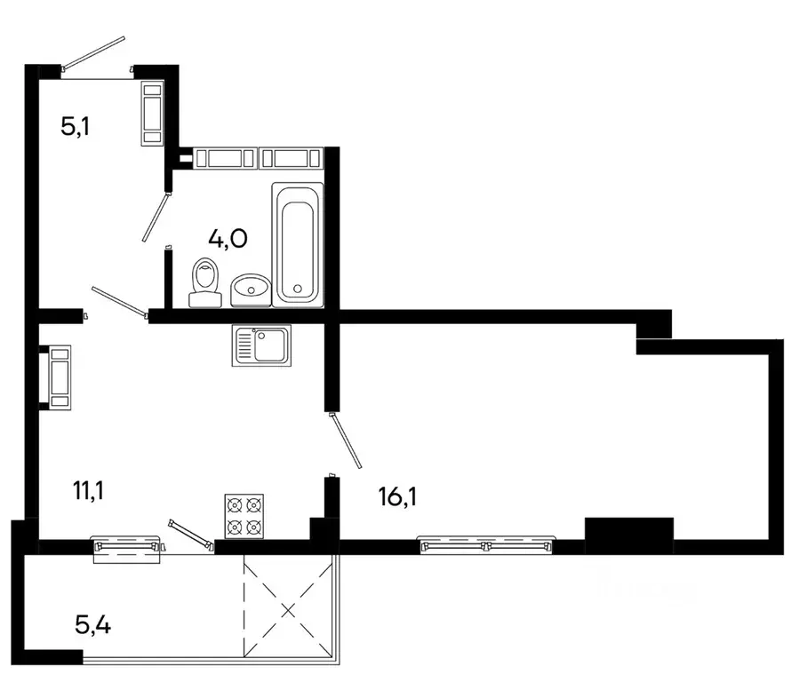
41.0 м2
Площадь
студия
Комнат
3
Этаж
16
Этажность
Развернуть

Студия Крым, Симферополь ул. Трубаченко, 21 (41.7 м)

Продаётся студия в строящемся доме (Дом 1), срок сдачи: II-кв. 2026, общей площадью 41.7 кв.м., на 3 этаже. Жилой комплекс бизнес-класса Поэма от застройщика ИнтерСтрой в городе Ялта на улице Трубаченко

Читать полностью

    Реализация объекта недвижимости приостановлена

    Не нашли подходящего объявления?

    Оставьте заявку, и наши риэлторы подберут квартиру в новостройке в районе Симферополя

    (0)