3 000 000 Р 38 930 $ или 32 950

Информация об помещении

2
Этаж

Состояние и оснащение

Количество этажей
2
Развернуть
Агент
+7 (918) 181-34-61
Начать чат с агентом

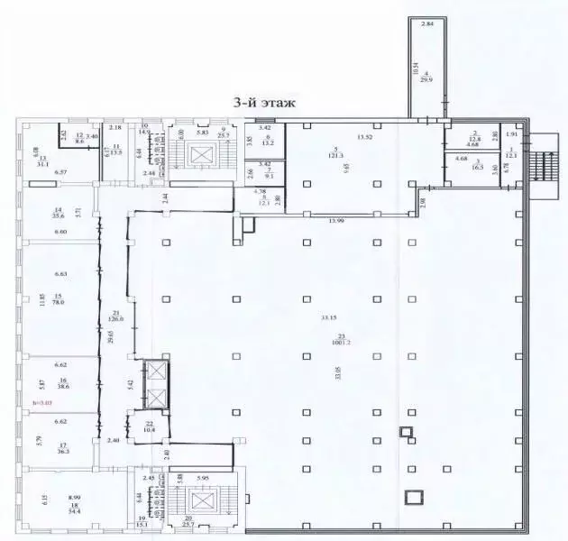
Помещение свободного назначения в Севастополь ул. Ковпака, 3 (3000 м)

Объект 7833. Помещение в ТЦ ГурманСдается помещение ТЦ Гурман на ул. Ковпака, д. 3. Помещениерасположено на 2 этаже торгового центра. Помещение общей площадью 3000 м2, openspace, возможна любая перепланировка по потребностям арендатора. Имеются подсобные помещения, санузел. Первый этаж занимает якорный арендатор Фуршет , а так же другие сетевые арендаторы. Своя большая парковка. Есть возможность снять часть помещения. Отличная транспортная доступность, высокий рекламный потенциал, развитая инфраструктура. Параметры объекта:- Адрес: г. Севастополь, Гагаринский р-н, ул. Ковпака, д. 3. - Этаж/этажность: 2/2- Площадь: 3000 м2- Высота потолка: 4м- Планировка: openspace- Санузел: отдельный- Готовность объекта: с ремонтом- Вход: общий- Парковка: свой паркингТехнические характеристики:- Мощность 100 кВт- Интернет: есть- Вентиляция: естьВозможные виды деятельности: отличный вариант для общепита, спортивного клуба, развлекательного центра, сферы услугили офисной деятельности.Инфраструктура: помещение расположено в современном ТЦ в густонаселенном жилом массиве, рядом остановка общественного транспорта,отличная транспортная доступность, пешеходный и автомобильный трафик.Без комиссии для арендатора Позвоните нам, чтобы назначить просмотр

Читать полностью
    Позвонить Написать
    3 000 000 Р38 930 $ или 32 950
    Агент
    +7 (918) 181-34-61
    Начать чат с агентом
    Похожие предложения
    Помещение свободного назначения в Севастополь ул. Ковпака, 3 (3000 м) - Фото 1
    Помещение свободного назначения в Севастополь ул. Ковпака, 3 (3000 м) - Фото 2
    Объект 7833. Помещение в ТЦ ГурманСдается помещение ТЦ Гурман на ул. Ковпака, д. 3. Помещениерасположено на 2 этаже торгового центра. Помещение общей площадью 3000 м2, openspace, возможна любая перепланировка по потребностям арендатора. Имеются подсобные...
    • 2/2 эт.
    3 000 000 Р
    Агент
    +7 (918) Показать номер
    Посмотреть контакты
    Помещение свободного назначения (3000 м) - Фото 1
    Помещение свободного назначения (3000 м) - Фото 2
    Объект №7833. Помещение в ТЦ ГурманСдается помещение ТЦ Гурман на ул. Ковпака, д. 3. Помещениерасположено на 2 этаже торгового центра. Помещение общей площадью 3000 м2, openspace, возможна любая перепланировка по потребностям арендатора. Имеются подсобные...
    • 2/2 эт.
    3 000 000 Р
    Агент
    +7 (965) Показать номер
    Посмотреть контакты
    Помещение свободного назначения в Севастополь просп. Октябрьской ... - Фото 1
    Помещение свободного назначения в Севастополь просп. Октябрьской ... - Фото 2
    Сдается эксклюзивное коммерческое помещение на 1-ой линии в одном из самых густонаселенных районов Севастополя на проспекте Октябрьской Революции, 38/12, в ТЦ Тут же. Общая площадь помещения: 2017, 3 м2. Помещение имеет большой торговый зал со вспомогательными...
    • 1/3 эт.
    2 990 000 Р
    Агент
    +7 (918) Показать номер
    Посмотреть контакты
    Помещение свободного назначения в Ленинградская область, Всеволожский ... - Фото 1
    Помещение свободного назначения в Ленинградская область, Всеволожский ... - Фото 2
    Арт.Аренда здания 3742 м2.Ленинградская область, Всеволожский район, Октябрьская набережная, 48, ст. метро Ломоносовская.S здания 3742 м2, из них:1-й этаж 2961 м2,2-й этаж 781 м2.Высота переменная от 4 до 8 м.Выделенные э/мощности - 150 кВт. (возможно...
    • 2/2 эт.
    3 000 000 Р
    Агент
    +7 (981) Показать номер
    Посмотреть контакты
    Помещение свободного назначения в Москва Бумажный проезд, 19с2 (330 м) - Фото 1
    Помещение свободного назначения в Москва Бумажный проезд, 19с2 (330 м) - Фото 2
    ПЛАТИМ АГЕНТАМ. Поможем с планом рассадки, ремонтом, мебелью. Stone Towers - премиальный бизнес-квартал класса А со всеми видами транспортной доступности. В состав БЦ входят четыре офисных здания высотой до 23 этажей. Здания объединены одним стилобатом,...
    • 1/23 эт.
    3 025 000 Р
    Агент
    +7 (933) Показать номер
    Посмотреть контакты

    Не нашли подходящего объявления?

    Оставьте заявку, и наши риэлторы подберут псн в районе Севастополя

    (0)