145 400 Р 1 860 $ или 1 580

Информация об помещении

2
Этаж

Состояние и оснащение

Количество этажей
3
Развернуть
Агент
+7 (918) 181-34-61
Начать чат с агентом

Помещение свободного назначения в Севастополь просп. Генерала ...

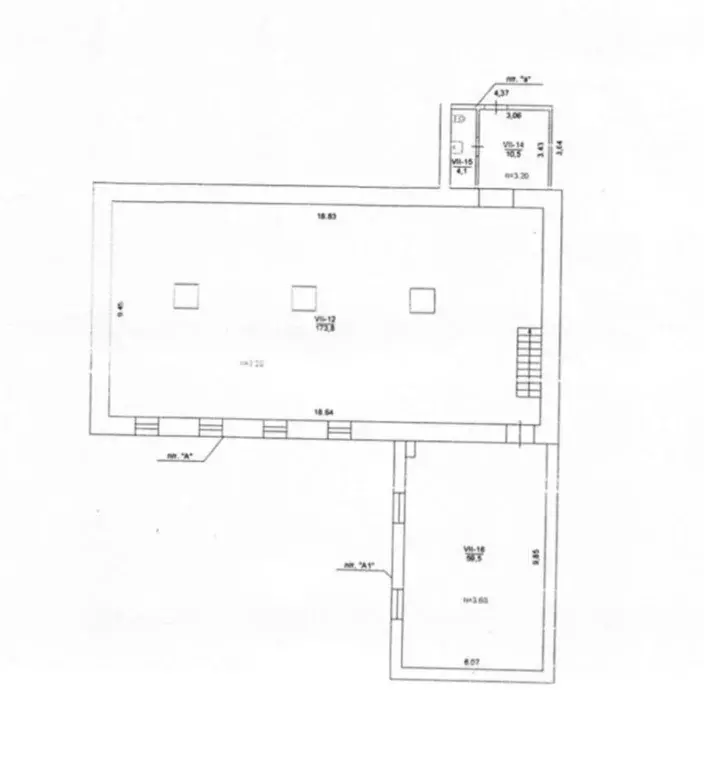
Объект 8070. Помещение в ТЦ SeaMollСдается торговое помещение ТЦ SeaMoll на пр. Генерала Острякова, д. 260. Помещениерасположено на 2 этаже торгового центра. Помещение общей площадью 72,7 м2. Второй этаж ТЦ активно заселены магазинами. Санузел на этаже. Общая система отопления/кондиционирования, два дополнительных кондиционера, пожарная и охранная сигнализации, парковки наземная и подземная, высокоскоростной интернет. Отличная транспортная доступность, высокий рекламный потенциал, развитая инфраструктура. Параметры объекта:- Адрес: г. Севастополь, Ленинский р-н, пр-т Ген. Острякова, д.260- Этаж/этажность: 2/3- Площадь: 72,7 м2- Высота потолка: 4м- Планировка: openspace- Санузел: общий- Готовность объекта: с ремонтом- Вход: общий- Парковка: свой паркингТехнические характеристики:- Интернет: есть- Вентиляция: есть- кондиционирование: есть- отопление: естьВозможные виды деятельности: отличный вариант для торговли, сферы услуг, офиса.Инфраструктура: помещение расположено в современном ТЦ в густонаселенном жилом массиве, рядом остановка общественного транспорта,отличная транспортная доступность, пешеходный и автомобильный трафик.Без комиссии для арендатора Позвоните нам, чтобы назначить просмотр

Читать полностью
    Позвонить Написать
    145 400 Р1 860 $ или 1 580
    Агент
    +7 (918) 181-34-61
    Начать чат с агентом
    Похожие предложения
    Помещение свободного назначения в Севастополь просп. Генерала ... - Фото 1
    Помещение свободного назначения в Севастополь просп. Генерала ... - Фото 2
    Объект 7959. Помещение на ОстряковаСдается помещение на пр-кте Генерала Острякова 202а.Помещение расположено на первом этаже отдельностоящего здания. Состоит из одного зала, двух кабинетов исанузла.Отличная транспортная доступность, высокий рекламный...
    • 1/1 эт.
    150 000 Р
    Агент
    +7 (918) Показать номер
    Посмотреть контакты
    Помещение свободного назначения в Севастополь наб. Адмирала ... - Фото 1
    Помещение свободного назначения в Севастополь наб. Адмирала ... - Фото 2
    Сдаётся в аренду двухэтажное помещение в самом центре города на Набережной Адмирала Перелешина. Помещение включает в себя 2 полноценных и цокольный этажи (подсобные помещения, кладовки, кухня).Общая площадь 422кв.м. Помещение идеально подойдёт под клуб....
    • 1/3 эт.
    150 000 Р
    Агент
    +7 (939) Показать номер
    Посмотреть контакты
    Помещение свободного назначения в Севастополь ул. Костомаровская, 3 ... - Фото 1
    Помещение свободного назначения в Севастополь ул. Костомаровская, 3 ... - Фото 2
    Объект 736. СДАЕТСЯ БЕЗ КОМИССИИ АГЕНТСТВУ Предлагается в длительную аренду нежилые помещения нежилого здания общей площадью 250 кв.м, расположенные в центре Севастополя- в районе рынка ,,Чайка,, (в 70 метрах).Помещения свободного назначения (сейчас используется...
    • 1/1 эт.
    150 000 Р
    Агент
    +7 (988) Показать номер
    Посмотреть контакты
    Помещение свободного назначения в Севастополь ул. Генерала Петрова, ... - Фото 1
    Помещение свободного назначения в Севастополь ул. Генерала Петрова, ... - Фото 2
    Объект 8820. Сдаетсяпомещение с отдельным входом в г. Севастополь, Ленинский район, ул. Генерала Петрова 29/67. Площадь 265м, расположено на цокольном (высоком первом) этаже жилого здания. Состоит из зала, площадью 220 кв.м и кабинета 45 кв.м. Отдельный...
    • -1/3 эт.
    150 000 Р
    Агент
    +7 (918) Показать номер
    Посмотреть контакты
    Помещение свободного назначения в Севастополь ул. Льва Толстого, 64 ... - Фото 1
    Помещение свободного назначения в Севастополь ул. Льва Толстого, 64 ... - Фото 2
    Объект 1210. Помещение в торговом комплексеСдается помещение торговом комплексе на ул. Льва Толстова, д. 64. Помещениерасположено на 3 этаже 4- этажного торгового комплекса. Помещение общей площадью 230 м2, openspace, возможна любая перепланировка по...
    • 3/4 эт.
    150 000 Р
    Агент
    +7 (918) Показать номер
    Посмотреть контакты

    Не нашли подходящего объявления?

    Оставьте заявку, и наши риэлторы подберут псн в районе Севастополя

    (0)