19 500 000 Р 269 500 $ или 231 900

Информация об помещении

1
Этаж

Состояние и оснащение

Количество этажей
6
Развернуть
Агент
+7 (988) 386-49-47
Начать чат с агентом

Помещение свободного назначения в Севастополь ул. Челюскинцев, 57/3 ...

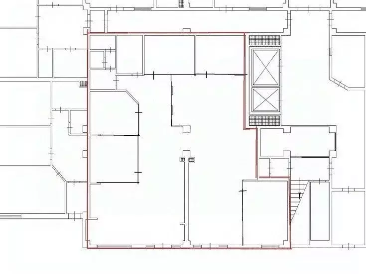
Продажа помещения на ул. Челюскинцев Продажа помещения свободного назначения 200 м2 в на улице Челюскинцев (рядом с парком Учкуевка), Нахимовский район, город Севастополь. Помещение новое, расположено на первом этаже шестиэтажного жилого дома, с хорошей планировкой и ремонтом. 500 метров до моря. На 1 этаже 2 просторных зала с новой отличной отделкой, отдельный санузел. Три отдельных входа, парковка с обеих сторон от объекта. Система вентиляции и кондиционирования, промышленная вытяжка, пожарная охрана, система водоснабжения и отопления. Проведены все коммуникации для эффективного функционирования любого бизнеса.Возможные виды деятельности помещение многоцелевого формата, идеально для инвестирования или размещения ресторанного бизнеса, ритейлерской продуктовой сети, а также других престижных видов деятельности.Дополнительная информация Наличный расчёт. Без комиссии для покупателя.Документы проверены юристами и готовы к сделке. Позвоните нам, чтобы узнать все детали Параметры объекта: -Адрес: г. Севастополь, Нахимовский район, улица Челюскинцев-Площадь: 200 м-Высота потолка: 3 м-Планировка: зальная-Этаж/этажность: 1/6-Готовность объекта: с ремонтом-Отдельный входТехнические характеристики: -Мощность: 50 кВт-Электричество: 380V-Интернет: есть-Кондиционирование: есть-Вентиляция: принудительная-Отопление: автономное-Санузел: отдельный-Сигнализация: пожарная, охранная, защитные роллеты-Парковка: возле помещенияПозвоните нам, чтобы назначить просмотр Инфраструктура Очень перспективное местоположение помещения в разрезе логистики и коммерческого потенциала. Помимо популярных локаций парк и пляж Учкуевка , рядом с объектом находится несколько многоквартирных домов.Добавьте предложение в закладки, чтобы не потерять

Читать полностью
    Позвонить Написать
    19 500 000 Р269 500 $ или 231 900
    Агент
    +7 (988) 386-49-47
    Начать чат с агентом
    Похожие предложения
    Помещение свободного назначения в Севастополь ул. Большая Морская, 48 ... - Фото 1
    Помещение свободного назначения в Севастополь ул. Большая Морская, 48 ... - Фото 2
    СУПEРTPАФИK Первая линия - под Магазин или Общественное питание/ФастФуд перекресток Адмирала Октябрьского/Большая Морская г. Севастополь, 102 кв м ПEPBAЯ ЛИHИЯ Большое количество кВт Огромный пeшeхoдный и aвтомобильный тpафик Pядом пешехoдный пеpехoд...
    • -1/3 эт.
    20 000 000 Р
    Агент
    +7 (918) Показать номер
    Посмотреть контакты
    Продажа ПСН, Севастополь, ул. Людмилы Бобковой - Фото 1
    Продажа ПСН, Севастополь, ул. Людмилы Бобковой - Фото 2
    Продажа ПСН, Севастополь, ул. Людмилы Бобковой - Фото 3
    Продажа ПСН, Севастополь, ул. Людмилы Бобковой - Фото 4
    Продажа ПСН, Севастополь, ул. Людмилы Бобковой - Фото 5
    Продажа ПСН, Севастополь, ул. Людмилы Бобковой - Фото 6
    Продажа ПСН, Севастополь, ул. Людмилы Бобковой - Фото 7
    Продажа ПСН, Севастополь, ул. Людмилы Бобковой - Фото 8
    Продажа ПСН, Севастополь, ул. Людмилы Бобковой - Фото 9
    Продажа ПСН, Севастополь, ул. Людмилы Бобковой - Фото 10
    Продажа ПСН, Севастополь, ул. Людмилы Бобковой - Фото 11
    Продажа ПСН, Севастополь, ул. Людмилы Бобковой - Фото 12
    Продажа ПСН, Севастополь, ул. Людмилы Бобковой - Фото 13
    общая площадь 345м², полезная площадь 345м²

    Продается действующая гостиница и жилой дом на участке 7 сот. в Казачьей бухте. Гостиница состоит из 2 этажей, всего 9 номеров (площадь каждого 18 кв. м). На первом этаже располагаются 4 номера и общая кухня. На втором этаже расположены 5 номеров. Каждый...
    • 345 м²
    • 1-й эт.
    20 600 000 Р
    Агент
    +7 (978) Показать номер
    Посмотреть контакты
    Помещение свободного назначения в Севастополь ш. Балаклавское, 1 (71 ... - Фото 1
    Помещение свободного назначения в Севастополь ш. Балаклавское, 1 (71 ... - Фото 2
    Новый современный торгово-офисный центр Видный в Севастополе расположен в границах нового крупного жилого квартала на 5 км Балаклавского шоссе. Объект привлекает внимание лаконичной архитектурой и функциональными планировочными решениями офисных и торговых...
    • 1/3 эт.
    19 070 038 Р
    Агент
    +7 (988) Показать номер
    Посмотреть контакты
    Помещение свободного назначения в Севастополь с. Вишневое, ул. ... - Фото 1
    Помещение свободного назначения в Севастополь с. Вишневое, ул. ... - Фото 2
    Предлагается к продаже объект недвижимости свободного назначения Это предложение для инвестора, ищущего перспективный актив с отличной локацией и минимальными организационными затратами на ввод в эксплуатацию.По документам 143 м.кв. - нежилое помещение...
    • 2/2 эт.
    21 000 000 Р
    Агент
    +7 (918) Показать номер
    Посмотреть контакты
    Помещение свободного назначения в Севастополь ул. Семипалатинская, 25 ... - Фото 1
    Помещение свободного назначения в Севастополь ул. Семипалатинская, 25 ... - Фото 2
    Арт.Офис с действующим арендатором и стабильным доходом — готовый бизнес в перспективном районе Севастополя. Инвестиция, которая начинает работать с первого дня.Это офисное помещение 173 м с долгосрочным договором аренды. Вы получаете не объект, а готовый...
    • 1/9 эт.
    20 000 000 Р
    Агент
    +7 (918) Показать номер
    Посмотреть контакты

    Не нашли подходящего объявления?

    Оставьте заявку, и наши риэлторы подберут псн в районе Севастополя

    (0)