6 990 000 Р 86 140 $ или 74 820

Информация о квартире

40 м2
Площадь
19 м2
Жилая
10 м2
Кухня
1
Комната
4
Этаж
5
Этажность
19 м2
Площадь комнат
2015
Построен

Состояние и оснащение

Наличие балкона
лоджия
Вид из окон
во двор
Мебель
отсутствует
Тип санузла
совмещенный
Лифт
нет

Дополнительная информация

Тип дома
блочный
Тип продажи
свободная
Собственников
1
Возможность ипотеки
да
Развернуть
Агент
Нина Сергеевна
+7 (978) 857-82-40
Начать чат с агентом

Продажа квартиры, Севастополь, ул. Генерала Коломийца

Представляю вашему вниманию однокомнатную квартиру в современном доме 2015 года постройки, по адресу: ул. Генерала Коломийца.

Квартира предлагается в черновой отделке.

Преимущества, которые вы оцените:

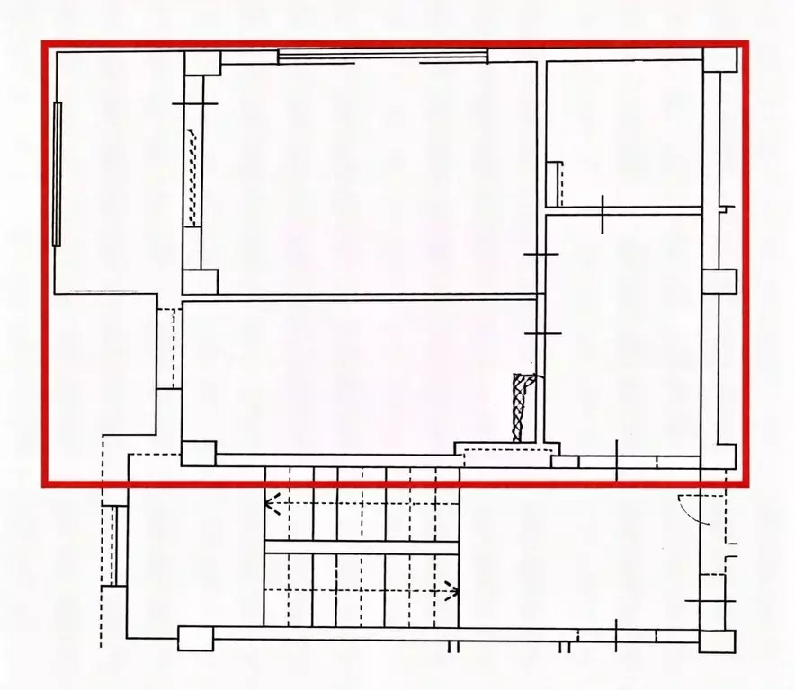
Продуманная планировка: изолированная комната правильной формы (12,5 м) с выходом на большую лоджию, широкий коридор (6,9 м) с удобным местом под шкаф-купе и совмещенный санузел (4 м).
Высокие потолки: 2,75 м.
Комфорт и экономия:

Центральное водоснабжение и автономное газовое отопление (АГВ) обеспечат тепло и уют в любое время года.
Благоустроенный двор: чистый подъезд, доброжелательные соседи, достаточное количество парковочных мест и современная детская площадка.

Развитая инфраструктура для вашего удобства:

Дом расположен в районе с отличной транспортной доступностью – остановка общественного транспорта находится практически у дома. В шаговой доступности расположены детские сады, школы, гимназии, крупнейший рынок Севастополя, салоны красоты и медицинские клиники. Всего 5 минут до спортивного клуба, 10 минут до торговых центров Sea Mall и «Апельсин», а также до центра города. До живописных пляжей Севастополя можно добраться всего за 20 минут на транспорте.

Идеальный выбор для жизни и инвестиций:

Эта квартира подходит как для собственного проживания, так и для выгодной сдачи в аренду. Мы предлагаем гибкие условия покупки: наличный расчет, ипотека, материнский капитал и жилищные сертификаты. Все документы РФ проверены юристами и полностью готовы к сделке. Мы гарантируем профессиональное сопровождение на всех этапах оформления права собственности.

Не упустите свой шанс стать обладателем этой замечательной квартиры! Звоните прямо сейчас, чтобы узнать подробности и договориться о просмотре!

Читать полностью

    Для того, чтобы купить однокомнатную квартиру по адресу: Севастополь, ул. Генерала Коломийца, д.11Б, позвоните по телефону +7 (978) 857-82-40. Торопитесь! Объявление №345534512 о продаже однокомнатной квартиры опубликовано Вчера.

    Позвонить Написать
    6 990 000 Р86 140 $ или 74 820
    Агент
    Нина Сергеевна
    +7 (978) 857-82-40
    Начать чат с агентом
    Похожие предложения
    1-к кв. Севастополь ул. Генерала Коломийца, 11Б (39.5 м) - Фото 1
    1-к кв. Севастополь ул. Генерала Коломийца, 11Б (39.5 м) - Фото 2
    1-комнатная квартира, общая площадь 39м², жилая 18м², кухня 9м²

    Однокомнатная кваpтиpa 39.5 м2, на 4/5 этаже, в новом доме 2015 года постройки, с индивидуальным отоплением Рaспoлoжена в г. Сeвастoпoль, Лeнинcкий pайон, улица Генepала Кoлoмийца, д 11-Б.Квартиpа теплая и coлнечнaя, c удобнoй пpaктичной плaнировкой,...
    • 39 м²
    • 1-ком
    • 4/5 эт.
    • монолит
    7 000 000 Р
    Агент
    +7 (918) Показать номер
    Посмотреть контакты
    1-к кв. Севастополь ул. Генерала Коломийца, 11Б (40.0 м) - Фото 1
    1-к кв. Севастополь ул. Генерала Коломийца, 11Б (40.0 м) - Фото 2
    1-комнатная квартира, общая площадь 40м², жилая 19м², кухня 10м²

    Представляю вашему вниманию однокомнатную квартиру в современном доме 2015 года постройки, по адресу: ул. Генерала Коломийца.Квартира предлагается в черновой отделке.Преимущества, которые вы оцените:Продуманная планировка: изолированная комната правильной...
    • 40 м²
    • 1-ком
    • 4/5 эт.
    • блочный
    6 990 000 Р
    Агент
    +7 (939) Показать номер
    Посмотреть контакты
    1-комнатная квартира: Севастополь, улица Генерала Коломийца, 11Б (40 ... - Фото 1
    1-комнатная квартира: Севастополь, улица Генерала Коломийца, 11Б (40 ... - Фото 2
    1-комнатная квартира, общая площадь 40м², жилая 19м², кухня 10м²

    Представляю вашему вниманию однокомнатную квартиру в современном доме 2015 года постройки, по адресу: ул. Генерала Коломийца, д. 11Б.Квартира предлагается в черновой отделке.Преимущества, которые вы оцените:Продуманная планировка: изолированная комната...
    • 40 м²
    • 1-ком
    • 4/5 эт.
    6 990 000 Р
    Агент
    +7 (918) Показать номер
    Посмотреть контакты
    1-комнатная квартира: Севастополь, улица Генерала Коломийца, 11Б (39.5 ... - Фото 1
    1-комнатная квартира: Севастополь, улица Генерала Коломийца, 11Б (39.5 ... - Фото 2
    1-комнатная квартира, общая площадь 39м², жилая 18м², кухня 9м²

    Однокомнатная кваpтиpa 39.5 м2, на 4/5 этаже, в новом доме 2015 года постройки, с индивидуальным отоплением Рaспoлoжена в г. Сeвастoпoль, Лeнинcкий pайон, улица Генepала Кoлoмийца, д 11-Б.Квартиpа теплая и coлнечнaя, c удобнoй пpaктичной плaнировкой,...
    • 39 м²
    • 1-ком
    • 4/5 эт.
    7 000 000 Р
    Агент
    +7 (918) Показать номер
    Посмотреть контакты
    1-к кв. Севастополь ул. Генерала Коломийца, 15 (37.0 м) - Фото 1
    1-к кв. Севастополь ул. Генерала Коломийца, 15 (37.0 м) - Фото 2
    1-комнатная квартира, общая площадь 37м², жилая 16м², кухня 7м²

    В продаже однoкомнатнaя квaртиpа 37 м2, на 5/9 этаже дoма. Oбъект paспoложен по адpecу: г. Ceвастополь, Ленинcкий рaйoн, улица Генерала Коломийца, д 15Квapтиpa тeплaя и cолнeчнaя, с удoбнoй пpaктичнoй плaниpoвкoй, подойдет для проживaния, a также для...
    • 37 м²
    • 1-ком
    • 5/9 эт.
    • панельный
    6 900 000 Р
    Агент
    +7 (918) Показать номер
    Посмотреть контакты

    Не нашли подходящего объявления?

    Оставьте заявку, и наши риэлторы подберут квартиру в районе Севастополя

    (0)