Россия, Крым, Севастополь, ул. Братьев Манганари, 30к1
8 450 000 Р 108 600 $ или 93 120

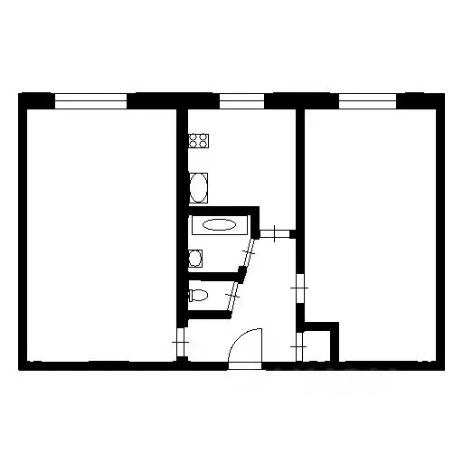
Информация о квартире

42 м2
Площадь
15 м2
Жилая
9 м2
Кухня
1
Комната
6
Этаж
9
Этажность

Дополнительная информация

Тип дома
монолит
Развернуть
Агент
+7 (918) 351-34-53
Начать чат с агентом

1-к кв. Севастополь ул. Братьев Манганари, 30к1 (42.6 м)

Продам однокомнатную квартиру в черновой отделке от застройщика 42,6 м2, на 6/9 этаже дома. Расположена в г. Севастополе, в Гагаринском районе, на ул.Братьев Манганари, д.30/1, в ЖК Порто Франко. Данный объект подойдет как для собственного проживания, так и в качестве высокорентабельной инвестиции. Позвоните нам, чтобы узнать все детали Технические характеристики: -Год постройки дома: 2020-Общая площадь: 42,6м2 -Лоджия: 4,3м2-Жилая площадь: 15,9м2-Комната: 15,9м2-Площадь кухни: 9,3 м2-Высота потолка: 2,7 м-Два санузла-Водоснабжение: централизованное-Отопление и горячая вода: АГВ.Дополнительная информация: Двухконтурный газовый котел (АГВ), позволяет самостоятельно контролировать температуру воздуха в квартире и горячей воды, а также экономить на коммунальных платежах.В квартире сделана бетонная стяжка пола, разводка водоснабжения, с установкой радиаторов отопления, заведено электричество. Широкоформатные окна и панорамная лоджия с видом на море Планировка квартиры имеет два санузла, что позволяет организовать в одном из них постирочную или гардеробную, освободив квартиру от лишней мебели Позвоните нам, чтобы назначить просмотр Инфраструктура: ЖК Porto Franco находится в одном из самых перспективных и динамично развивающихся районов города Севастополя - Казачья бухта (Гагаринский район). Это тихий экологически чистый район с развитой инфраструктурой: школами, детскими садами, детской поликлиникой, аптеками, магазинами, рынком и т.д.Хорошая транспортная доступность: 2 минуты до остановки общественного транспорта, 15 минут до центра города на автомобиле.Жить рядом с морем, наслаждаться морскими закатами и чистотои свежего морского воздуха - что может быть лучше?Porto Franco стоит на первои береговои линии, вдали от шумных трасс и магистралей.До моря всего 347 метров или 4 минуты пешкомЧистый морской воздухАтмосфера спокойствия и уединенности.Собственная набережная у дома - мечта, которая станет реальностью в ЖК Porto Franco.В перспективе, застроищик благоустроит полкилометра береговои линии и организует настоящее общественное пространство для жителей - с зонами отдыха, смотровыми площадками, пляжами, детскими и спортивными зонами, гастро-променадом Кухни мира .Функциональное зонирование набережной предлагает десятки сценариев для активного и спокойного отдыха и никто не помешает друг другу.Современные детские площадки для развития сноровки и воображения разделены по возрастам. Подростков заинтересуют специальные пространства с тренажерами для занятия спортом и многофункциональные спортивные поля. Настоящей точкой притяжения станет детская зона на набережной - пространство для детей с мини-батутами, горками, качелями, играми с водои и т.д. Подходит для наличного расчета, под ипотеку, материнский капитал, жилищные сертификаты. Документы РФ проверены юристами и готовы к сделке. Профессиональное сопровождение до получения права собственности.Добавьте предложение в закладки, чтобы не потерять Для просмотра и

Читать полностью

    Для того, чтобы купить однокомнатную квартиру по адресу: Севастополь, ул. Братьев Манганари, 30к1, позвоните по телефону +7 (918) 351-34-53. Торопитесь! Объявление №30091937229 о продаже однокомнатной квартиры опубликовано Сегодня.

    Позвонить Написать
    8 450 000 Р108 600 $ или 93 120
    Агент
    +7 (918) 351-34-53
    Начать чат с агентом
    Похожие предложения
    2-к кв. Севастополь ул. Пляж Омега, 8 (32.0 м) - Фото 1
    2-к кв. Севастополь ул. Пляж Омега, 8 (32.0 м) - Фото 2
    2-комнатная квартира, общая площадь 32м², жилая 23м², кухня 3м²

    Арт.Продаются апартаменты, состоящий из двух жилых комнат Общая площадь составляет 32 кв.м., жилая- 25 кв.м., кухня- 5 кв.м. Расстояние до моря с песочным пляжем 60 Метров Коммуникации все городские: свет, вода и канализация.В помещении выполнен качественный...
    • 32 м²
    • 2-ком
    • 3/5 эт.
    8 500 000 Р
    Агент
    +7 (918) Показать номер
    Посмотреть контакты
    2-к кв. Севастополь просп. Октябрьской Революции, 33 (59.0 м) - Фото 1
    2-к кв. Севастополь просп. Октябрьской Революции, 33 (59.0 м) - Фото 2
    2-комнатная квартира, общая площадь 59м², жилая 18м², кухня 6м²

    Арт.Продается 2 комнатная квартира в престижном районе города Севастополя на Проспекте Октябрьской Революции . В квартире 59 кв м. 2 изолированные комнаты. С балконом. Сан узел раздельный. В пешей доступности магазины, остановка, 11 гимназия, аптеки,...
    • 59 м²
    • 2-ком
    • 2/5 эт.
    8 500 000 Р
    Агент
    +7 (918) Показать номер
    Посмотреть контакты
    1-к кв. Севастополь ул. Павла Корчагина, 19Бк2 (34.9 м) - Фото 1
    1-к кв. Севастополь ул. Павла Корчагина, 19Бк2 (34.9 м) - Фото 2
    1-комнатная квартира, общая площадь 34м², жилая 18м², кухня 8м²

    Объект 22032. Видовая однокомнатная квартира в ЖК Каравелла - Общая информация:Площадь квартиры — (36,07 кв.м. без учёта балкона) 34,91 кв.м.). Жилая зона — 18,3 кв.м., просторная кухня — 8,9 кв.м., уютный балкон — 1,16 кв.м. Из окон открывается великолепный...
    • 34 м²
    • 1-ком
    • 2/10 эт.
    • монолит
    8 600 000 Р
    Агент
    +7 (989) Показать номер
    Посмотреть контакты
    2-к кв. Севастополь ул. Бориса Михайлова, 25 (51.0 м) - Фото 1
    2-к кв. Севастополь ул. Бориса Михайлова, 25 (51.0 м) - Фото 2
    2-комнатная квартира, общая площадь 51м², жилая 32м², кухня 8м²

    Продается просторная 2-х комнатная квартира в Гагаринском районе. Все в шаговой доступности. Развитая транспортная развязка. Недалеко парк Победы, до центра 15-20 мин на общественном транспорте. В квартире косметический ремонт. Документы готовы...
    • 51 м²
    • 2-ком
    • 5/5 эт.
    • блочный
    8 500 000 Р
    Агент
    +7 (918) Показать номер
    Посмотреть контакты
    1-к кв. Севастополь Омега ТСН, 8 (32.0 м) - Фото 1
    1-к кв. Севастополь Омега ТСН, 8 (32.0 м) - Фото 2
    1-комнатная квартира, общая площадь 32м², жилая 17м², кухня 10м²

    Апартаменты 32 м2, на 2/5 эт Апартаменты 32 м2, на 2/ 5 этаже дома. Расположена в г. Севастополь, Гагаринский район, улица Пляж Омега 8.Апартаменты теплые и солнечные, с удобной практичной планировкой, подойдут для круглогодичного проживания, а также...
    • 32 м²
    • 1-ком
    • 2/5 эт.
    • панельный
    8 500 000 Р
    Агент
    +7 (918) Показать номер
    Посмотреть контакты

    Не нашли подходящего объявления?

    Оставьте заявку, и наши риэлторы подберут квартиру в районе Севастополя

    (0)