Россия, Крым, Севастополь, Подорожник садоводческое товарищество, 42
8 100 000 Р 100 500 $ или 86 680

Информация о коттедже

73 м2
Площадь
1
Этажность
8 cоток
Участок

Дополнительная информация

Дом продаётся вместе с участком
есть
Развернуть
Агент
+7 (918) 081-62-73
Начать чат с агентом

Дом в Севастополь Подорожник садоводческое товарищество, 42 (73 м)

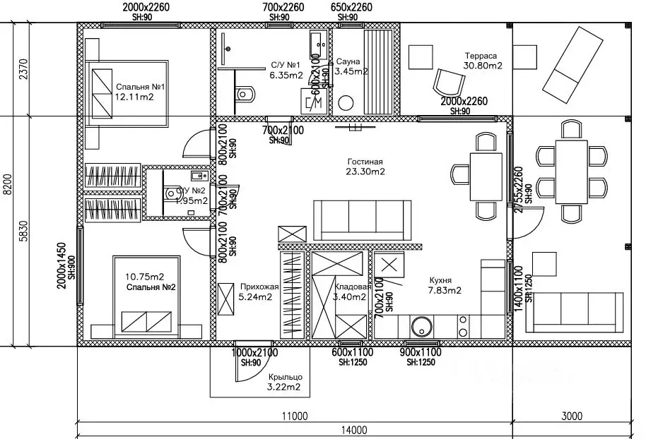
Арт.Арт.Всё готово к проживанию — ремонт, мебель, коммуникации Просторный участок, живописный вид и тишина...Продается уютный дом общей площадью 73 м..Дом новый, построен в 2019 году из качественных каркасных материалов, надежное строительство позволяет при необходимости построить второй этаж.Дом тёплый, светлый, с качественным ремонтом и высокими потолками.Продуманная планировка: просторная кухня-гостиная, 2 спальни, совмещенный санузел с душевой, гардеробная.Дом подходит для постоянного проживания и круглогодичного отдыха.Продаётся с мебелью и техникой — можно сразу заехать и жить.Участок:Площадь по документам: 7,3 сотки, есть уникальная возможность перераспределить до 8 соток.Категория: ИЖС, межевание проведеноУчасток ровный, сухой, правильной формыЕсть плодовые деревья, зона отдыха, хозблокУчасток огорожен забором, сделан въезд под автоКоммуникации:Электричество: подключено, 15 кВтВода: скважина собственнаяОтопление: электрический тёплый пол в каждом помещении + бойлер на горячую водуГаз: природный для газовой плитыКанализация: септик (или центральная при наличии)Интернет: проведён (оптоволокно или 4G)Инфраструктура:До города — 1015 минут на машинеВ пешей доступности: магазин, остановка, аптекаВ радиусе 3-5 км: школа, детский сад, почта, рынокАсфальт: большая часть дороги до участка, соседи живут круглый годТихая улица, рядом лес — чистый воздухПреимущества:Дом строился для себя — не экономили на материалахПодходит под ипотеку, материнский капиталОдин взрослый собственник, документы готовыНет обременений, чистая продажаОтлично подойдёт для семьи или для сдачиИдеальный вариант — заезжай с чемоданами Звоните прямо сейчас — такой дом долго не задержится С удовольствием покажу дом лично — он действительно стоит вашего внимания.На все вопросы отвечу по телефону или в сообщениях.____________________купить дом, дом с участком, дом в городе, дача, дом для ПМЖ, таунхаус, коттедж, дом у моря, дом с ремонтом, дом под маткапитал, дом в деревне, дом в селе, дом на берегу, дом с газом, дом с баней, дом с мансардой, дом с гаражом, дом без посредников, дом от собственника, продажа домов, частный дом, дом рядом с городом, дом с участком 10 соток, дом в черте города, зимний дом, тёплый дом, кирпичный дом, дом из бруса, дом из газоблоков, двухэтажный дом, дом 100 м2, дом 150 м2, дом с коммуникациями, дом срочно, недорогой дом, дом в ипотеку, новый дом, дом под ключ, коттедж с отделкой, дом Возможен Обмен.Приватизирован возможна прописка.

Читать полностью

    Для того, чтобы купить 1-этажный коттедж по адресу: Севастополь, Подорожник садоводческое товарищество, 42, позвоните по телефону +7 (918) 081-62-73. Торопитесь! Объявление №50016912870 о продаже одноэтажного коттеджа опубликовано Сегодня.

    Позвонить Написать
    8 100 000 Р100 500 $ или 86 680
    Агент
    +7 (918) 081-62-73
    Начать чат с агентом
    Похожие предложения
    Дом в Севастополь Подорожник садоводческое товарищество, 42 (73 м) - Фото 1
    Дом в Севастополь Подорожник садоводческое товарищество, 42 (73 м) - Фото 2
    1 этаж, общая площадь 73м², участок 7 соток

    В продаже уютный одноэтажный дом 73 м2. Дом расположен на участке 7.3 сотки. Есть возможность построить еще один дом Идеальная локация. Рядом вся необходимая инфраструктура, тихий район с транспортной доступность.Участок ухоженный с зелеными клумбами,...
    • 1 эт.
    • 73 м²
    • 7 сот.
    8 100 000 Р
    Агент
    +7 (988) Показать номер
    Посмотреть контакты
    Дом в Севастополь Огонек СТ,  (81 м) - Фото 1
    Дом в Севастополь Огонек СТ,  (81 м) - Фото 2
    1 этаж, общая площадь 81м², участок 4 сотки

    Дом 81м в Огоньке Предчистовая + разводка коммуникаций. Семейная ипотека Продается дом в ст. Огонёк. 81 м на участке 5 соток. Выполнена предчистовая отделка и полная разводка всех коммуникаций по дому — осталось сделать финишный ремонт Готовность:...
    • 1 эт.
    • 81 м²
    • 4 сот.
    8 200 000 Р
    Агент
    +7 (918) Показать номер
    Посмотреть контакты
    Дом в Севастополь уч6 (90 м) - Фото 1
    Дом в Севастополь уч6 (90 м) - Фото 2
    1 этаж, общая площадь 90м², участок 4 сотки

    Дом в семейную ипотеку 90 м на ухоженном участке 4 сотки - В стоимость включено: Качественный дом площадью 90 м Теплый пол по всему дому Земельный участок 4 сотки Собственная скважина с чистой водой Современный септик - автономная канализация...
    • 1 эт.
    • 90 м²
    • 4 сот.
    8 200 000 Р
    Агент
    +7 (918) Показать номер
    Посмотреть контакты
    Дом в Севастополь ул. Дениса Ракицкого (115 м) - Фото 1
    Дом в Севастополь ул. Дениса Ракицкого (115 м) - Фото 2
    1 этаж, общая площадь 115м², участок 5 соток

    Ваш семейный дом мечты УЖЕ ЖДЁТ ВАС Ипотека 6 — не упустите шанс Хватит мечтать о собственном доме — пора в него переезжать Представьте утро за чашкой кофе на просторной террасе, вечера в светлой гостиной с панорамными окнами и настоящую баню...
    • 1 эт.
    • 115 м²
    • 5 сот.
    8 200 000 Р
    Агент
    +7 (918) Показать номер
    Посмотреть контакты
    Дом в Севастополь Огонек садоводческое товарищество, 83 (71 м) - Фото 1
    Дом в Севастополь Огонек садоводческое товарищество, 83 (71 м) - Фото 2
    1 этаж, общая площадь 70м², участок 5 соток

    Продается дом Севастополь, Гагаринский р-н, ТСН СНТ Огонек, д.81Дом c отличным расположением, в уже сложившейся жилой застройке, участок ровный.Кадастровый номер ЗУ: 91:02:006014:1019, КН дома: 91:02:06014:1040.Про дом:- Одноэтажный дом, 2024 года постройки...
    • 1 эт.
    • 70 м²
    • 5 сот.
    8 200 000 Р
    Агент
    +7 (918) Показать номер
    Посмотреть контакты

    Не нашли подходящего объявления?

    Оставьте заявку, и наши риэлторы подберут купить дом в районе Севастополя

    (0)