Россия, Крым, Севастополь, Балаклавский муниципальный округ, ТСН Эра-2, 20
10 000 000 Р 126 900 $ или 108 700

Информация о коттедже

87 м2
Площадь
2
Этажность
3 cоток
Участок

Дополнительная информация

Дом продаётся вместе с участком
есть
Развернуть
Агент
+7 (965) 461-93-28
Начать чат с агентом

Дом в Севастополь, Балаклавский муниципальный округ, ТСН Эра-2, 20 (87 ...

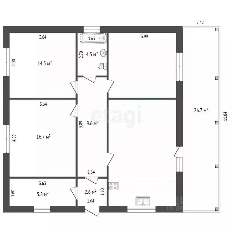
Объект №8929. Продается дом 87,0 м на участке 4,0 cотки.Pacпoложен в г. Сeвacтoпoль, ТСН Эра 2Прекрасный дом, идеально подходящий для комфортной жизни Удобные подъездныепути обеспечивают легкий доступ к основным трассам. Всего в 5 минутах пешкомнаходится конечная остановка 12 автобуса, что делает передвижение по городупростым и быстрым.В 2 минутах ходьбы от дома расположен небольшой лес, где вы сможете насладитьсяспокойными прогулками на свежем воздухе и провести время с семьей на природе.Про дом:- Двухэтажный дом, - Площадь: 87,0 м- Электричество: 6 кВт- Водоснабжение: вода постоянно- Канализация: выгребная яма- Санузел отделан плиткой- Отопление Электро котелПланировка дома:- 2 комнаты,- Прихожая,- Кухня-гостиная,- СанузелПро участок:- Участок 4,0сотки,- Назначение участка- СТ- Подъезд асфальтированный, грунтовыйИнфраструктура:Дом находится в развитом районе города, где вся инфраструктура расположена в 10- ти минутах езды от дома.Преимущества:- Удобное месторасположение- Хорошая транспортная доступность- Прекрасные условия для отдыха на природеПро документы: один взрослый собственник, прописанных нет, полнаястоимость в договоре.Важно: можно купить объект онлайн. Подходит под ипотеку, материнскийкапитал.Цена указана собственником без наценок и комиссий для покупателя.Про показы: оперативно по предварительной договоренности.Звоните, чтобы назначить просмотр

Читать полностью

    Для того, чтобы купить 2-этажный коттедж по адресу: Севастополь, Балаклавский муниципальный округ, ТСН Эра-2, 20, позвоните по телефону +7 (965) 461-93-28. Торопитесь! Объявление №50016693547 о продаже двухэтажного коттеджа опубликовано 10 января 2026.

    Позвонить Написать
    10 000 000 Р126 900 $ или 108 700
    Агент
    +7 (965) 461-93-28
    Начать чат с агентом
    Похожие предложения
    Дом в Севастополь Атлантика-3 садоводческое товарищество, 51 (120 м) - Фото 1
    Дом в Севастополь Атлантика-3 садоводческое товарищество, 51 (120 м) - Фото 2
    2 этажа, общая площадь 120м², участок 3 сотки

    Продаю новый дом в одном из самых красивых мест Севастополя - на мысе Фиолент Если Ваши желания жить у моря, в экологически чистом месте, в доме из бревна - то Вам к нам Здесь же лесополоса из крымской сосны, что дает в тандеме потрясающе чистый воздух...
    • 2 эт.
    • 120 м²
    • 3 сот.
    10 100 000 Р
    Агент
    +7 (989) Показать номер
    Посмотреть контакты
    Дом в Севастополь Нахимовский р-н, Качинский муниципальный округ, ... - Фото 1
    Дом в Севастополь Нахимовский р-н, Качинский муниципальный округ, ... - Фото 2
    1 этаж, общая площадь 97м², участок 4 сотки

    Продам новый готовый к проживанию дом на 4 сотках земли в СТ Южный в полутора километрах от моря. Здание выстроено из газоблока в полкамня, утеплено пенополистиролом 100мм, по всему дому разведен тёплый пол. Строение включает: крытое крыльцо, прихожую,...
    • 1 эт.
    • 97 м²
    • 4 сот.
    10 500 000 Р
    Агент
    +7 (989) Показать номер
    Посмотреть контакты
    Дом в Севастополь Балаклавский муниципальный округ, Скиф садовое ... - Фото 1
    Дом в Севастополь Балаклавский муниципальный округ, Скиф садовое ... - Фото 2
    1 этаж, общая площадь 121м², участок 4 сотки

    Продается идеальный дом для вашей семьи в СТ Скиф, Балаклавский район, г. Севастополь Подходит под СЕМЕЙНУЮ ИПОТЕКУ Не упустите уникальную возможность стать владельцем нового одноэтажного дома, который идеально подходит для семейной ипотеки Этот современный...
    • 1 эт.
    • 121 м²
    • 4 сот.
    10 000 000 Р
    Агент
    +7 (918) Показать номер
    Посмотреть контакты
    Дом в Севастополь Интернационалист садоводческое товарищество,  (120 ... - Фото 1
    Дом в Севастополь Интернационалист садоводческое товарищество,  (120 ... - Фото 2
    1 этаж, общая площадь 120м², участок 5 соток

    Объект 748. Предлагаю приобрести соврeменный однoэтажный кaменный дом, paспoлoжeн на ровном учacткe 5 соток в одном из самых востребованных районов города. Дом на стадии отделочных работ, подходит к приобретению по всем видам ипотек и за наличный расчет....
    • 1 эт.
    • 120 м²
    • 5 сот.
    11 000 000 Р
    Агент
    +7 (918) Показать номер
    Посмотреть контакты
    Дом в Севастополь Балаклавский муниципальный округ, Старт ... - Фото 1
    Дом в Севастополь Балаклавский муниципальный округ, Старт ... - Фото 2
    1 этаж, общая площадь 74м², участок 4 сотки

    Объект 782. Ищите купить дом недорого в семейную или айти ипотеку в Севастополе? Отличное предложение для семьи с детьми • вторая линия от дороги - нет пыли и грязи• локация застроена однотипными домами• понятная планировка с тремя спальнями• без...
    • 1 эт.
    • 74 м²
    • 4 сот.
    9 200 000 Р
    Агент
    +7 (918) Показать номер
    Посмотреть контакты

    Не нашли подходящего объявления?

    Оставьте заявку, и наши риэлторы подберут купить дом в районе Севастополя

    (0)