Россия, Крым, Севастополь, Маяк-1 садовое товарищество, 1
14 000 000 Р 174 500 $ или 152 200

Информация о коттедже

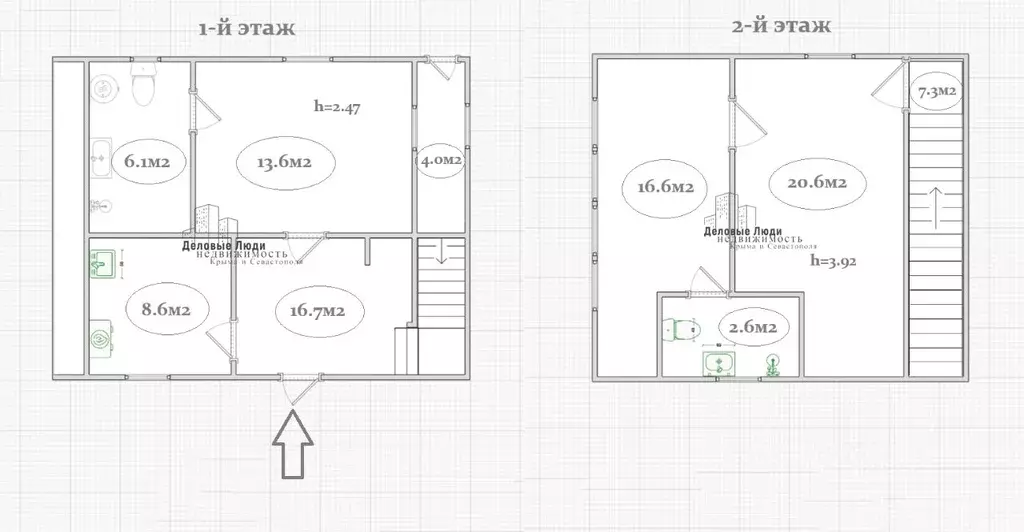
120 м2
Площадь
1
Этажность
4 cоток
Участок

Дополнительная информация

Дом продаётся вместе с участком
есть
Развернуть
Агент
+7 (918) 931-68-72
Начать чат с агентом

Дом в Севастополь Маяк-1 садовое товарищество, 1 (120 м)

Объект 22265. Дом 120м в Семейную Ипотеку Гагаринский район. Фиолент Газовая труба идет по периметру участкаГорбатый мост до остановки- 15м м .Прекрасное место для проживания с семьей. До школ и садиков в Гагаринском районе- 3 остановки общественного транспортаДом построен из ракушечника в камень, утеплен минеральной ватой. Фасад. Планировка -три спальни, кухня-студия ,два санузлаКоммуникации- вода постоянная, свет 15 КВТ Севэнерго, газ центральный, септик. Возможна продажа с ремонтом под ключ Документы от ИП для семейной ипотекиЕсли среди готовых предложений Вы пока не нашли подходящий вариант, мы можем спроектировать и построить дом по индивидуальному проекту.

Читать полностью

    Для того, чтобы купить 1-этажный коттедж по адресу: Севастополь, Маяк-1 садовое товарищество, 1, позвоните по телефону +7 (918) 931-68-72. Торопитесь! Объявление №50016349606 о продаже одноэтажного коттеджа опубликовано Вчера.

    Позвонить Написать
    14 000 000 Р174 500 $ или 152 200
    Агент
    +7 (918) 931-68-72
    Начать чат с агентом
    Похожие предложения
    Дом в Севастополь ул. Инженерная Балка, 1 (100 м) - Фото 1
    Дом в Севастополь ул. Инженерная Балка, 1 (100 м) - Фото 2
    1 этаж, общая площадь 100м², участок 8 соток

    Объект 689. Предлагаем к продаже домовладение полностью готовое для жизни Домовладение состоит из двух объединенных квартир общей площадью 100 кв.м., участка ИЖС 8 соток (в собственности). На территории построен отдельный дом с двумя комнатами и кухней,...
    • 1 эт.
    • 100 м²
    • 8 сот.
    13 650 000 Р
    Агент
    +7 (988) Показать номер
    Посмотреть контакты
    Дом в Севастополь Парус-5 садоводческое товарищество, 1 (127 м) - Фото 1
    Дом в Севастополь Парус-5 садоводческое товарищество, 1 (127 м) - Фото 2
    2 этажа, общая площадь 127м², участок 7 соток

    Объект 5894. Дом + инвестиция в первой линии от дороги в СевастополеНахимовский район, СТ Парус-5 , ул. БогдановаПродаётся капитальный жилой дом 127 м на участке 7,3 сотки в первой линии от дороги ул. Богданова (15 метров).Отличное предложение как для...
    • 2 эт.
    • 127 м²
    • 7 сот.
    13 700 000 Р
    Агент
    +7 (918) Показать номер
    Посмотреть контакты
    Дом в Севастополь Шкипер садоводческое товарищество, 1 (78 м) - Фото 1
    Дом в Севастополь Шкипер садоводческое товарищество, 1 (78 м) - Фото 2
    2 этажа, общая площадь 77м², участок 5 соток

    Продаём уютный двухэтажный Дом площадью 77.8м, расположенный на ровном участке площадью 5.46 соток. Он станет идеальным местом для комфортной жизни в гармонии с природой. Дом построен из ракушечника — экологически чистого и прочного материала, который...
    • 2 эт.
    • 77 м²
    • 5 сот.
    13 500 000 Р
    Агент
    +7 (918) Показать номер
    Посмотреть контакты
    Дом в Севастополь, садоводческое товарищество Афганец, 1 (108.7 м) - Фото 1
    Дом в Севастополь, садоводческое товарищество Афганец, 1 (108.7 м) - Фото 2
    1 этаж, общая площадь 108м², участок 6 соток

    Дом 109 м на ухоженном участке под семейную ипотеку - это Реально - В стоимость включено: Качественный дом площадью 109 м Земельный участок Чистовой ремонт Забор и откатные ворота Благоустройство территории Современный септик - автономная канализация-...
    • 1 эт.
    • 108 м²
    • 6 сот.
    14 000 000 Р
    Агент
    +7 (988) Показать номер
    Посмотреть контакты
    Дом в Севастополь Жидилова мкр, ул. Абрикосовая, 3 (75 м) - Фото 1
    Дом в Севастополь Жидилова мкр, ул. Абрикосовая, 3 (75 м) - Фото 2
    1 этаж, общая площадь 75м², участок 11 соток

    Арт.. Продается дом на улице Абрикосовой в Севастополе: идеальное решение для жизни и бизнеса Мы рады предложить вашему вниманию замечательный дом площадью 70 кв.м на участке в 11,4 сотки, расположенный по адресу: Севастополь, ул. Абрикосовая, 1а. Этот...
    • 1 эт.
    • 75 м²
    • 11 сот.
    13 555 000 Р
    Агент
    +7 (918) Показать номер
    Посмотреть контакты

    Не нашли подходящего объявления?

    Оставьте заявку, и наши риэлторы подберут купить дом в районе Севастополя

    (0)