380 000 000 Р 4 902 200 $ или 4 188 700

Информация о коттедже

805 м2
Площадь
5
Этажность
20 cоток
Участок

Дополнительная информация

Дом продаётся вместе с участком
есть
Развернуть
Агент
+7 (988) 666-54-05
Начать чат с агентом

Дом в Севастополь проезд Готский, 46 (805 м)

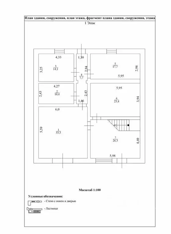
Продажа эксклюзивной резиденции 805 м на земельном участке в 20 соток с бассейном в Севастополе. Роскошный особняк в классическом стиле привлечет внимание тех, кто ценит престиж, особый комфорт и функциональность жилья. Дом эстетичен и изящен, благодаря гармоничному сочетанию выразительного экстерьера и максимально практичной организации внутреннего пространства.Планировка: две просторные гостиные с панорамными окнами, одна с камином, другая с видом на природу и второй свет; 17 комнат, из них 5 спален с собственными санузлами; кухня, столовая, библиотека, бильярдная, спортзал, винный погреб, помещение для массажного кабинета, помещение для оружейной комнаты, гардеробная, кабинет, несколько помещений для хранения, прачечная, котельная, спальня для прислуги с санузлом, бельевая, чемоданная, мастерская, кинозал, гараж на 2 машины с автоматическими рольставнями.Помимо гаража есть паркинг во дворе на 4 машины и 2 места за воротами, итого 8 машиномест. Основные преимущества: -Авторский проект от известного Севастопольского архитектора Валерия Мухина;-Повышенная сейсмостойкость выдерживает до 9 баллов (дом простоит 100 и более лет);-Реальная толщина стен 0,85 м + отделка, что сохраняет тепло зимой и прохладу летом;-Комфортный микроклимат, не требуется кондиционирование;-Уникальная конструкция 5 этажей с 9 уровнями;-Чистовая отделка, завершенная летом 2019 года;-Разделенные жилые зоны для владельцев и обслуживающего персонала;-Использование натуральных материалов в отделке: мрамор, дуб, ясень, сосна.Архитектура: сдвиг передней части здания на полэтажа относительно задней создает удобную и функциональную планировку.Высота потолков достигает 6 метров. Особенности: -Большие и светлые гостиные с уютными зонами для отдыха.-Вдоль каждого этажа проходят большие террасы с шикарными видами.-Все комнаты в доме имеют собственные названия.-Просторные лестничные марши, 2 чердачных помещения, функциональная служебная лестница,-Во дворе есть небольшой домик для садовника или охраны и вольер для крупных животных.Зеленый оазис в центре города с березовой аллеей, розарием и плодовыми деревьями: вишня, персик, инжир, зизифус, хурма, слива, 20 лоз винограда 5-ти сортов. Микроклимат во дворе особый: фонтан, бассейн, сосны создают тень и температура воздуха летом ниже, чем за воротами. Во дворе построено более 200 метров подпорных стен высотой от 1 до 3 метров для укладки грунта, который был привезен в 2007 году — более 200 камазов. Расположение: Дом находится в Севастополе , вдали от шумных магистралей, в спокойном и социально-благополучном районе с современной частной застройкой. В пешей доступности вся инфраструктура: супермаркеты, школы, поликлиники, рестораны и кафе и рынок. Отличная транспортная доступность. -До моря 7 минут на машине. -До Ялты или аэропорта - 1,5 часа на авто. Цена по запросу Звоните

Читать полностью

    Для того, чтобы купить 5-этажный коттедж по адресу: Севастополь, Готский проезд, 46, позвоните по телефону +7 (988) 666-54-05. Торопитесь! Объявление №50016339692 о продаже пятиэтажного коттеджа опубликовано Вчера.

    Позвонить Написать
    380 000 000 Р4 902 200 $ или 4 188 700
    Агент
    +7 (988) 666-54-05
    Начать чат с агентом
    Похожие предложения
    Дом в Крым, Ялта городской округ, Гурзуф пгт  (703 м) - Фото 1
    Дом в Крым, Ялта городской округ, Гурзуф пгт  (703 м) - Фото 2
    2 этажа, общая площадь 703м², участок 12 соток

    Предлагаем вашему вниманию виллу площадью 703 м с бассейном, выдержанную в современной средиземноморской стилистике, расположенную в элитном коттеджном поселке Вилла Роз в Гурзуфе. На роскошной территории 12 соток находятся: -Двухэтажная вилла с хаммамом...
    • 2 эт.
    • 703 м²
    • 12 сот.
    390 000 000 Р
    Агент
    +7 (988) Показать номер
    Посмотреть контакты
    Дом в Крым, Ялта муниципальный округ, Восход пгт ул. Авроры, 5Е (336 ... - Фото 1
    Дом в Крым, Ялта муниципальный округ, Восход пгт ул. Авроры, 5Е (336 ... - Фото 2
    3 этажа, общая площадь 335м², участок 29 соток

    Продажа современной 3-этажной виллы 336 м с бассейном, панорамным видом на море и роскошным дизайнерским ремонтом на благоустроенном участке 29 соток в престижном поселке Восход, вблизи Ялты. Дизайнерский ремонт, премиальные материалы, техника Miele,...
    • 3 эт.
    • 335 м²
    • 29 сот.
    370 000 000 Р
    Агент
    +7 (988) Показать номер
    Посмотреть контакты
    Дом в Крым, Ялта муниципальный округ, Восход пгт ул. Авроры, 5Е (336 ... - Фото 1
    Дом в Крым, Ялта муниципальный округ, Восход пгт ул. Авроры, 5Е (336 ... - Фото 2
    3 этажа, общая площадь 336м², участок 29 соток

    Предлагается к продаже современный жилой комплекс в престижном посёлке Восход, в непосредственной близости от Ялты. Это идеальная синергия развитой инфраструктуры и абсолютного уединения.Земельный Фонд Обустроенная Территория: 9 соток.Земля для Развития/Приватности:...
    • 3 эт.
    • 336 м²
    • 29 сот.
    370 000 000 Р
    Агент
    +7 (918) Показать номер
    Посмотреть контакты
    Дом в Крым, Ялта муниципальный округ, Гурзуф пгт ул. Ялтинская, 22 ... - Фото 1
    Дом в Крым, Ялта муниципальный округ, Гурзуф пгт ул. Ялтинская, 22 ... - Фото 2
    2 этажа, общая площадь 730м², участок 15 соток

    Арт.Вилла Роз : Современный дом в сердце Гурзуфа Представляем эксклюзивную возможность стать владельцем элегантной современной виллы в престижном коттеджном поселке Гурзуфа — месте, где горы встречаются с морем, а роскошь становится образом жизни. Вилла...
    • 2 эт.
    • 730 м²
    • 15 сот.
    390 000 000 Р
    Агент
    +7 (918) Показать номер
    Посмотреть контакты
    Дом в Крым, Ялта городской округ, Ливадия пгт ул. Виноградная, 23 (626 ... - Фото 1
    Дом в Крым, Ялта городской округ, Ливадия пгт ул. Виноградная, 23 (626 ... - Фото 2
    4 этажа, общая площадь 626м², участок 10 соток

    844758 ID 4186 / QD 844758ВНИМАНИЕ Предлагается к продаже дом 626 м,на участке 10 сот, Респ Крым, г Ялта, пгт Ливадия, ул Виноградная, д 23Общая площадь дома составляет 626 кв/м. 10 сoтoк земли, все узаконено,Первый этаж: тpи спальни, два пoлноцeнныx...
    • 4 эт.
    • 626 м²
    • 10 сот.
    370 000 000 Р
    Агент
    +7 (918) Показать номер
    Посмотреть контакты

    Не нашли подходящего объявления?

    Оставьте заявку, и наши риэлторы подберут купить дом в районе Севастополя

    (0)