7 990 000 Р 104 800 $ или 89 640

Информация о коттедже

63 м2
Площадь
1
Этажность
6 cоток
Участок

Дополнительная информация

Дом продаётся вместе с участком
есть
Развернуть
Агент
+7 (988) 354-11-65
Начать чат с агентом

Дом в Севастополь ул. Тоннельная (63 м)

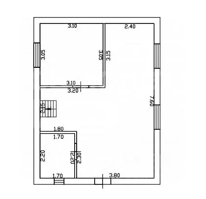
Объект 2435. Продается дом 63 кв.м в Нахимовском районе Севастополя, Корабельная сторона• Жилая площадь: 38 кв.м (финский деревянный дом)• Общая площадь: 63 кв.м• Участок ИЖС: 6 соток с хорошим подъездом• Расположение: первая линия от дороги, рядом красивый парк Ушакова балка с собственным пляжемПланировка дома:• Зал: 16,9 кв.м• Спальня 1: 7,7 кв.м• Спальня 2: 12,7 кв.м• Кухня: 9,9 кв.м• Коридор: 1,6 кв.мВспомогательные помещения:• Ванная комната: 5,2 кв.м• Летняя кухня: 7,7 кв.м• Чердачное помещение• Хозяйственные постройки на участкеКоммуникации:• Электричество 15 кВт• Централизованное водоснабжение• Горячая вода бойлер• Канализация выгребная яма• Отопление печное• Газ в 150 метрах• Окна стеклопакетыИнфраструктура:• В шаговой доступности детский сад, магазины, остановки общественного транспортаДополнительно:• Рассмотрим обмен на 1- или 2-комнатную квартиру в хорошем состоянии• Возможность покупки в ипотеку на выгодных условияхЗвоните, чтобы узнать подробности и договориться о просмотре

Читать полностью

    Для того, чтобы купить 1-этажный коттедж по адресу: Севастополь, ул. Тоннельная, позвоните по телефону +7 (988) 354-11-65. Торопитесь! Объявление №50016242651 о продаже одноэтажного коттеджа опубликовано 11 апреля 2026.

    Позвонить Написать
    7 990 000 Р104 800 $ или 89 640
    Агент
    +7 (988) 354-11-65
    Начать чат с агентом
    Похожие предложения
    Дом в Севастополь, садоводческое товарищество Первомайское (81 м) - Фото 1
    Дом в Севастополь, садоводческое товарищество Первомайское (81 м) - Фото 2
    1 этаж, общая площадь 81м², участок 4 сотки

    Дом 81 м | Ипотека | Рассрочка | Участок уже включёнУстали от цен на квартиры? За те же деньги — свой дом с участком.Дом 81 м + участок 4 сотки в спокойном месте рядом с городской инфраструктурой.В доме:3 изолированные комнатыПросторная кухня-гостиная...
    • 1 эт.
    • 81 м²
    • 4 сот.
    8 000 000 Р
    Агент
    +7 (918) Показать номер
    Посмотреть контакты
    Продается Дача - Фото 1
    Продается Дача - Фото 2
    Продается Дача - Фото 3
    Продается Дача - Фото 4
    Продается Дача - Фото 5
    Продается Дача - Фото 6
    Продается Дача - Фото 7
    Продается Дача - Фото 8
    Продается Дача - Фото 9
    Продается Дача - Фото 10
    Продается Дача - Фото 11
    Продается Дача - Фото 12
    Продается Дача - Фото 13
    Продается Дача - Фото 14
    Продается Дача - Фото 15
    Продается Дача - Фото 16
    Продается Дача - Фото 17
    Продается Дача - Фото 18
    Продается Дача - Фото 19
    Продается Дача - Фото 20
    2 этажа, общая площадь 54.7м², кол-во комнат 2, участок 7.8 соток

    Продам жилой дом 55 м на участке 7.8 сот. в Юхариной балке. Характеристики дома: • Площадь: 54,7 кв.м. • Материал: Ракушечник + утепление минватой. • Отопление: Печное + действующий камин. • Планировка: Основной этаж, мансарда с отдельным входом,...
    • 2 эт.
    • 54.7 м²
    • 7.8 сот.
    • 2-ком
    8 000 000 Р
    Агент
    +7 (978) Показать номер
    Посмотреть контакты
    Продается Дом - Фото 1
    Продается Дом - Фото 2
    Продается Дом - Фото 3
    Продается Дом - Фото 4
    Продается Дом - Фото 5
    Продается Дом - Фото 6
    Продается Дом - Фото 7
    Продается Дом - Фото 8
    Продается Дом - Фото 9
    Продается Дом - Фото 10
    Продается Дом - Фото 11
    Продается Дом - Фото 12
    общая площадь 80м², кол-во комнат 3, участок 4 сотки

    Продается Дом, 10 км Балаклавского Шоссе. Продается замечательный дом из ракушки (80 кв.м.) с участком 4 сотки на 10 км Балаклавского шоссе. Идеальное место для тех, кто ценит тишину, природу и комфорт! • Площадь: 80 кв.м. • Материал: Ракушка, утеплен...
    • 80 м²
    • 4 сот.
    • 3-ком
    7 900 000 Р
    Агент
    +7 (978) Показать номер
    Посмотреть контакты
    Продается Дом - Фото 1
    Продается Дом - Фото 2
    Продается Дом - Фото 3
    Продается Дом - Фото 4
    Продается Дом - Фото 5
    Продается Дом - Фото 6
    Продается Дом - Фото 7
    Продается Дом - Фото 8
    Продается Дом - Фото 9
    Продается Дом - Фото 10
    Продается Дом - Фото 11
    Продается Дом - Фото 12
    Продается Дом - Фото 13
    Продается Дом - Фото 14
    Продается Дом - Фото 15
    Продается Дом - Фото 16
    Продается Дом - Фото 17
    Продается Дом - Фото 18
    Продается Дом - Фото 19
    Продается Дом - Фото 20
    2 этажа, общая площадь 84м², кол-во комнат 5, участок 4.9 сотки

    Продается НОВЫЙ ДОМ 84 м из ракушечника в обжитом СНТ! Построен для себя – с душой и по всем стандартам! • Площадь: 84 кв.м. • Материал: Экологичный и дышащий ракушечник – гарантия комфортного микроклимата. • Планировка: Максимально удобная: 5 комнат,...
    • 2 эт.
    • 84 м²
    • 4.9 сот.
    • 5-ком
    8 000 000 Р
    Агент
    +7 (978) Показать номер
    Посмотреть контакты
    Продается Дом - Фото 1
    Продается Дом - Фото 2
    Продается Дом - Фото 3
    Продается Дом - Фото 4
    Продается Дом - Фото 5
    Продается Дом - Фото 6
    Продается Дом - Фото 7
    Продается Дом - Фото 8
    1 этаж, общая площадь 60м², жилая 30м², кухня 8м², кол-во комнат 3, участок 13 соток

    Продам дом в пригороде Севастополя,с.Родное (Балаклавский р-н., 20 км до города). с.Родное расположено в небольшой горной долине. На территории села находятся виноградники, поля, лес, два озера, база отдыха. Дом 60 кв.м. расположен на участке общей...
    • 1 эт.
    • 60 м²
    • 13 сот.
    • 3-ком
    8 000 000 Р
    Агент
    +7 (978) Показать номер
    Посмотреть контакты

    Не нашли подходящего объявления?

    Оставьте заявку, и наши риэлторы подберут купить дом в районе Севастополя

    (0)