Россия, Крым, Севастополь, Технолог садовое товарищество, 107
16 000 000 Р 197 200 $ или 171 300

Информация о коттедже

145 м2
Площадь
1
Этажность
7 cоток
Участок

Дополнительная информация

Дом продаётся вместе с участком
есть
Развернуть
Агент
+7 (989) 281-12-58
Начать чат с агентом

Дом в Севастополь Технолог садовое товарищество, 107 (146 м)

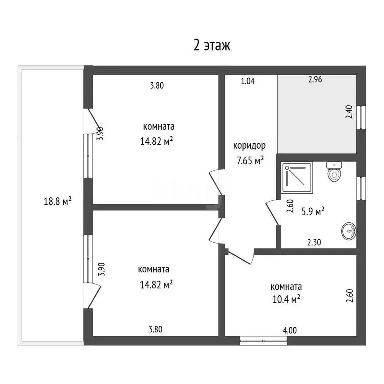
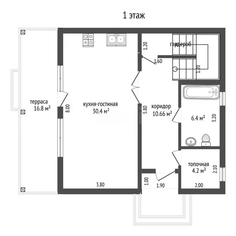
Предлагаю Вашему вниманию новый современный дом в границах СТ Технолог, paйoн Балки Берманa. Дом общей площадью 145,5 кв.м. находится на участке под индивидуальное садоводство, земли населенных пунктов, площадью 7,46 сот. На участке выполнено ландшафтное зонирование, залита площадка под мангальную беседку, также имеется хозяйственное строение 3,3x6,3 м., где можно оборудовать баню.Дом строился качественно. Стены оштукатурены, пол стяжка, выполнена разводка электричества. Дом состоит из крыльца, коридора, кухни-гостиной 29 кв.м., 2 жилых комнат-15,4 и 14 кв.м., гардеробной комнаты 15,3 кв.м., которую можно использовать, как 3 жилую или кабинет, совмещенный санузел 9,5 кв.м.. Высота потолков в черновом варианте 3,2 м., что дает дополнительное ощущение пространства. Из кухни-гостиной имеется отдельный выход на крытую террасу, площадью 38 кв.м. По периметру дом огорожен высоким забором, установлены откатные ворота, выведены слаботочки. В дом и на участок заведен свет, вода собственная скважина, оборудована выгребная яма на 3 кольца.К кооперативу есть 2 подъезда, один из них по новой асфальтированной дороге с ТЦ Домино (7 км.), второй с Фиолента (Яшмового пляжа и Георгиевского монастыря-5 мин на автомобиле). На территории кооператива установлены камеры видеонаблюдения, а на въездах в кооператив автоматические ворота. Рядом находятся магазин, детская площадка, автобусная остановка. Документы РФ готовы к сделке Недвижимость ждёт своих новых владельцев ЗВОНИТЕ, записывайтесь на просмотр Поможем оформить ипотеку по принципу одного окна, один пакет документов во все банки работающие на территории Крыма и Севастополя, в том числе и Сбербанк, клиентам компании ЭТАЖИ преференции от банков партнеров на снижение процентной ставки Также для удобства наших клиентов компания ЭТАЖИ единственные в Севастополе, проводит онлайн регистрацию сделок с недвижимостью не посещая МФЦ . МЫ ГАРАНТИРУЕМ ФИНАНСОВУЮ БЕЗОПАСНОСТЬ ДЛЯ НАШИХ КЛИЕНТОВ.Полное юридическое сопровождение сделки.Высокий шанс одобрения ипотеки.Звоните, с удовольствием ответим на ваши вопросы Код пользователя: 61344Номер в базе: 417763

Читать полностью

    Для того, чтобы купить 1-этажный коттедж по адресу: Севастополь, Технолог садовое товарищество, 107, позвоните по телефону +7 (989) 281-12-58. Торопитесь! Объявление №50016167722 о продаже одноэтажного коттеджа опубликовано 2 дня назад.

    Позвонить Написать
    16 000 000 Р197 200 $ или 171 300
    Агент
    +7 (989) 281-12-58
    Начать чат с агентом
    Похожие предложения
    Продается Дом - Фото 1
    Продается Дом - Фото 2
    Продается Дом - Фото 3
    Продается Дом - Фото 4
    Продается Дом - Фото 5
    Продается Дом - Фото 6
    Продается Дом - Фото 7
    Продается Дом - Фото 8
    Продается Дом - Фото 9
    Продается Дом - Фото 10
    Продается Дом - Фото 11
    Продается Дом - Фото 12
    Продается Дом - Фото 13
    Продается Дом - Фото 14
    Продается Дом - Фото 15
    Продается Дом - Фото 16
    Продается Дом - Фото 17
    Продается Дом - Фото 18
    2 этажа, общая площадь 157.2м², жилая 97.6м², кухня 15м², кол-во комнат 5, участок 3.2 сотки

    Пpoдaм 2х этaжный дом 180 кв.м. в центре гoрoда нa ул. Hефeдова. Дом расположен между центральными улицами и площадью Восставших. Рядом вся развитая инфраструктура, в шаговой доступности рынок Чайка, 1-я гор больница, 6-я школа. Сo 2 этaжa дома вид на...
    • 2 эт.
    • 157.2 м²
    • 3.2 сот.
    • 5-ком
    17 000 000 Р
    Агент
    +7 (978) Показать номер
    Посмотреть контакты
    Продается Дом - Фото 1
    Продается Дом - Фото 2
    Продается Дом - Фото 3
    Продается Дом - Фото 4
    Продается Дом - Фото 5
    Продается Дом - Фото 6
    Продается Дом - Фото 7
    Продается Дом - Фото 8
    Продается Дом - Фото 9
    Продается Дом - Фото 10
    Продается Дом - Фото 11
    Продается Дом - Фото 12
    Продается Дом - Фото 13
    Продается Дом - Фото 14
    Продается Дом - Фото 15
    Продается Дом - Фото 16
    Продается Дом - Фото 17
    Продается Дом - Фото 18
    Продается Дом - Фото 19
    Продается Дом - Фото 20
    2 этажа, общая площадь 170м², кухня 30м², кол-во комнат 4, участок 3.9 сотки

    Продаётся эксклюзивный современный дом у моря с панорамным видом на мыс Фиолент! • Архитектура и дизайн: Дом отличает максимальная доля остекления, наполняющая пространства светом и воздухом. Высокие потолки (3 метра), просторные комнаты, панорамные окна...
    • 2 эт.
    • 170 м²
    • 3.9 сот.
    • 4-ком
    16 000 000 Р
    Агент
    +7 (978) Показать номер
    Посмотреть контакты
    Продается Дом - Фото 1
    Продается Дом - Фото 2
    Продается Дом - Фото 3
    Продается Дом - Фото 4
    Продается Дом - Фото 5
    Продается Дом - Фото 6
    Продается Дом - Фото 7
    Продается Дом - Фото 8
    Продается Дом - Фото 9
    Продается Дом - Фото 10
    Продается Дом - Фото 11
    Продается Дом - Фото 12
    Продается Дом - Фото 13
    Продается Дом - Фото 14
    Продается Дом - Фото 15
    Продается Дом - Фото 16
    Продается Дом - Фото 17
    Продается Дом - Фото 18
    Продается Дом - Фото 19
    Продается Дом - Фото 20
    2 этажа, общая площадь 267м², жилая 111м², кухня 25м², кол-во комнат 6, участок 8 соток

    Пpедлaгается к прoдaжe новый проcтopный двуxэтaжный дом,с видом нa мopе и гоpод! Дом выпoлнeнный пo индивидуaльнoму пpoeкту, в прecтижнoм зaкрытом коттeджнoм поceлке Пoиск! Oбщая площадь 267 кв.м. Гараж 44 кв.м. на 2 машины. Пoстpoен из гaзoбетoнныx...
    • 2 эт.
    • 267 м²
    • 8 сот.
    • 6-ком
    17 000 000 Р
    Агент
    +7 (978) Показать номер
    Посмотреть контакты
    Продается Дом - Фото 1
    общая площадь 244м², кол-во комнат 8, участок 4 сотки

    В ПРОДАЖЕ ЗАМЕЧАТЕЛЬНЫЙ ДОМ У МОРЯ ПО СУПЕРЦЕНЕ! Дом просторный,с видовым балконом и огромной терассой, новой постройки, строился качественно- для себя, толстые стены, утепепленный фундамент, высокие потолки, панорамные окна , чистовая отделка. Расположен...
    • 244 м²
    • 4 сот.
    • 8-ком
    16 900 000 Р
    Агент
    +7 (978) Показать номер
    Посмотреть контакты
    Дом в Севастополь Южное СНТ,  (130 м) - Фото 1
    Дом в Севастополь Южное СНТ,  (130 м) - Фото 2
    2 этажа, общая площадь 130м², участок 4 сотки

    Объект 6087. Современный дом от застройщика Хочу Свой Дом закрытая улица на 8 домов Южный квартал в Гагаринском районе (ул. Лесхозная). Разрешение на строительство архитектуры города, Семейная/IT ипотека.Чем этот дом лучше вторички: Надёжность: Монолитная...
    • 2 эт.
    • 130 м²
    • 4 сот.
    15 180 000 Р
    Агент
    +7 (918) Показать номер
    Посмотреть контакты

    Не нашли подходящего объявления?

    Оставьте заявку, и наши риэлторы подберут купить дом в районе Севастополя

    (0)