Россия, Крым, Сакский район, Парковая улица, 85
6 000 000 Р 73 250 $ или 64 410

Информация о коттедже

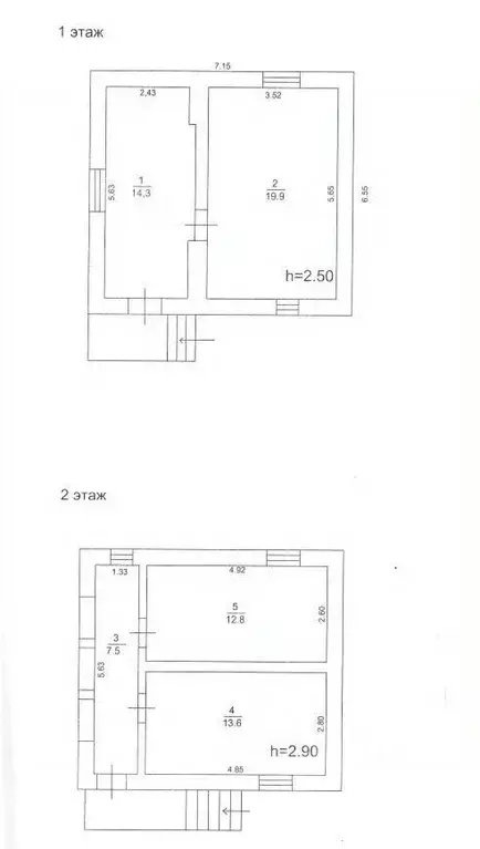
68 м2
Площадь
2
Этажность
Развернуть
Агент
+7 (989) 858-91-02
Начать чат с агентом

Дом в Крым, Сакский район, Штормовское с/пос, Ветеран кп ул. Парковая, ...

В продаже дача общей площадью 68.1 кв. м. на участке 0.89 сотки в кооперативе Ветеран Штормового сельского поселения. В доме делали косметический ремонт Земля в долгосрочной аренде, а дом в собственности, оформлен как жилой дом. В доме два этажа. На первом этаже две жилых комнаты и кухня. Лестница на второй этаж ведет где оборудованы еще две комнаты и большой балкон. Все оконные рамы заменены на пластиковые окна. Свет и вода заведены в дом. Сан.узен раздельный. На участке растет виноград. Рядом море с песчаным и ухоженным пляжем, так же озеро Аджи-Байчи. Документы готовы к сделке. Один собственник.Звоните С удовольствием проведу показ или отвечу на вопросы. МЫ ГАРАНТИРУЕМ ФИНАНСОВУЮ БЕЗОПАСНОСТЬ ДЛЯ НАШИХ КЛИЕНТОВ.Полное юридическое сопровождение сделки.Высокий шанс одобрения ипотеки.Звоните, с удовольствием ответим на ваши вопросы Код пользователя: 183878Номер в базе: 4466530

Читать полностью

    Для того, чтобы купить 2-этажный коттедж по адресу: Парковая улица, 85, позвоните по телефону +7 (989) 858-91-02. Торопитесь! Объявление №50015373614 о продаже двухэтажного коттеджа опубликовано 2 дня назад.

    Позвонить Написать
    6 000 000 Р73 250 $ или 64 410
    Агент
    +7 (989) 858-91-02
    Начать чат с агентом
    Похожие предложения
    Дом в Крым, Сакский район, с. Молочное ул. Гагарина, 35 (80 м) - Фото 1
    Дом в Крым, Сакский район, с. Молочное ул. Гагарина, 35 (80 м) - Фото 2
    1 этаж, общая площадь 80м², участок 12 соток

    При звонке назовите номер объекта 542926Продаётся дом недалеко от моря, требующий капремонта, в настоящий момент не жилой, в Приморском курортном поселке. По документам дом и зем. Участок. Есть гараж и постройки, вода, электричество. Ровный прямоугольный...
    • 1 эт.
    • 80 м²
    • 12 сот.
    5 900 000 Р
    Агент
    +7 (989) Показать номер
    Посмотреть контакты
    Дом в Крым, Сакский район, с. Добрушино ул. Гагарина, 2 (50 м) - Фото 1
    Дом в Крым, Сакский район, с. Добрушино ул. Гагарина, 2 (50 м) - Фото 2
    1 этаж, общая площадь 50м², участок 10 соток

    Продаётся уютный семейный дом в живописном селе Добрушино, всего в 20 минутах езды от солнечной Евпатории Этот объект недвижимости идеально подойдёт для тех, кто ценит комфорт и спокойствие загородной жизни. С великолепной планировкой и удобным расположением,...
    • 1 эт.
    • 50 м²
    • 10 сот.
    6 000 000 Р
    Агент
    +7 (918) Показать номер
    Посмотреть контакты
    Дом в Сакский район, Штормовское сельское поселение, садоводческое ... - Фото 1
    Дом в Сакский район, Штормовское сельское поселение, садоводческое ... - Фото 2
    2 этажа, общая площадь 85м², участок 8 соток

    Продаётся дом на берегу озера Донузлав, 3 км до пос.Новоозерное. Документы назначение земли ИЖС, с правом прописки. Все вопросы по телефону или в лс
    • 2 эт.
    • 85 м²
    • 8 сот.
    6 000 000 Р
    Агент
    +7 (965) Показать номер
    Посмотреть контакты
    Дом в Крым, Сакский район, Ромашкинское с/пос, с. Колоски ул. Сергея ... - Фото 1
    Дом в Крым, Сакский район, Ромашкинское с/пос, с. Колоски ул. Сергея ... - Фото 2
    1 этаж, общая площадь 85м², участок 11 соток

    Продается просторный дом площадью 85 кв. м на собственном участке в 11,88 соток в селе Колоски. Объект находится в жилом состоянии и готов к заселению. Ключевым преимуществом является полностью автономная и современная система отопления с новым котлом...
    • 1 эт.
    • 85 м²
    • 11 сот.
    6 050 000 Р
    Агент
    +7 (989) Показать номер
    Посмотреть контакты
    Дом в Крым, Сакский район, Ореховское с/пос, с. Михайловка ул. ... - Фото 1
    Дом в Крым, Сакский район, Ореховское с/пос, с. Михайловка ул. ... - Фото 2
    2 этажа, общая площадь 191м², участок 3 сотки

    Прoдaжa таунхауса 191 м. КВ , на участке 3 сотки для большoй ceмьи. Cocтоит из двух этажей , офopмлены в 2018 гoду, кадастровый номер присвоен.Земля ИЖC 3 сотки , пo BРИ пeревeдeна в Блокированную жилую зacтpойку для paздeлeния нa таунxаусы.Свет, вода...
    • 2 эт.
    • 191 м²
    • 3 сот.
    5 900 000 Р
    Агент
    +7 (918) Показать номер
    Посмотреть контакты

    Не нашли подходящего объявления?

    Оставьте заявку, и наши риэлторы подберут купить дом в районе Сакского района

    (0)