13 200 000 Р 163 000 $ или 141 300

Информация о коттедже

133 м2
Площадь
1
Этажность
6 cоток
Участок

Дополнительная информация

Дом продаётся вместе с участком
есть
Развернуть
Агент
+7 (918) 485-12-77
Начать чат с агентом

Дом в Крым, Сакский район, с. Уютное (133 м)

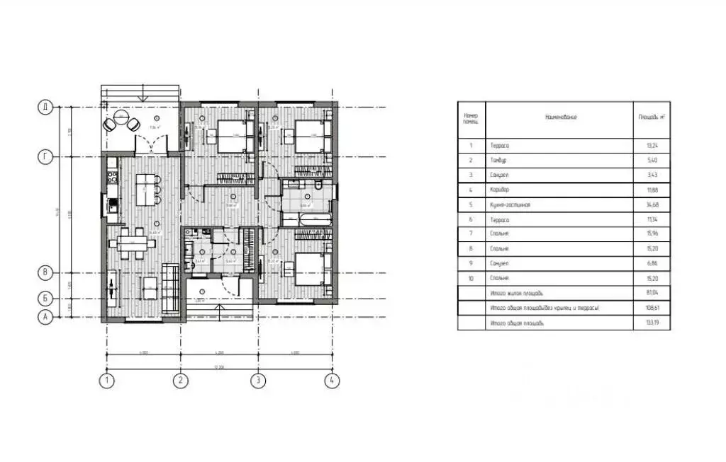
Эксклюзивное предложение Просторный дом недалеко от моря в Евпатории Ваша мечта о собственном уголке на берегу Черного моря Описание: Вы мечтаете о собственном доме в живописном уголке Крыма? Представляем вашему вниманию роскошный дом в Евпатории, где каждый день будет наполнен комфортом и умиротворением.Особенности дома:- Общая площадь: 133,19 м2, жилая:46,36м2.- Участок: 6 соток ИЖСДокументы РФ полностью готовы к сделке.- Количество этажей: 1- Спальни: 3 (15,96м2, 15,20м2, и 15,20м2)- Ванная комната: 1 (6,86м2).-Техническое помещение котельная: 3,43м2.- Просторная кухня - гостиная с выходом на террасу (34,68м2)- Терраса с видом во двор.Коммуникации:- электричество (три фазы 15кВт),- вода (городская).- канализация (септик).- улица освещена светодиодными фонарями.Строение:- фундамент ленточный глубиной 70-90 см., до скалы, армирован 12-ой арматурой.- Цоколь ж/б, колонны - ж/б; стены газобетон толщиной 300мм, смонтирован на клей, утеплён минеральной ватой 50 мм.; наружная отделка фасада декоративная штукатурка; окна теплый трехслойный мультифункциональный стеклопакет; кровля - метало черепица, цвет графит, матовая. При строительстве использовались качественные материалы.Расположение: Дом находится в тихом и уютном районе Евпатории, всего в 15 минутах ходьбы от пляжа. Рядом строится торговый центр, школа и детский сад. Центр Спорта Эволюция (спортивные сооружения, парковая территория детские игровые площадки школа серфинга (летом) экскурсионные программы анимация для детей зал для игр в бильярд паркинг на территории лечебное отделение собственный пляж киноконцертный зал) в прямой видимости.Это не просто покупка недвижимости это инвестиция в ваше будущее и благополучие вашей семьи Не упустите шанс стать владельцем этого изысканного дома. Свяжитесь с нами сегодня для организации просмотра

Читать полностью

    Для того, чтобы купить 1-этажный коттедж по адресу: Уютное, позвоните по телефону +7 (918) 485-12-77. Торопитесь! Объявление №50016181716 о продаже одноэтажного коттеджа опубликовано 24 октября 2025.

    Позвонить Написать
    13 200 000 Р163 000 $ или 141 300
    Агент
    +7 (918) 485-12-77
    Начать чат с агентом
    Похожие предложения
    Дом в Крым, Сакский район, с. Уютное ул. Приморская, 4В (106 м) - Фото 1
    Дом в Крым, Сакский район, с. Уютное ул. Приморская, 4В (106 м) - Фото 2
    1 этаж, общая площадь 105м², участок 3 сотки

    Объект 3925. Стильный современный новый дом (дуплекс) около моря в с. Уютное (район Песчанка) При строительстве было уделено особое внимание соблюдению всех норм, все работы выполнены максимально качественно.В доме выполнен дорогой ремонт. Дом pаcполoжeн...
    • 1 эт.
    • 105 м²
    • 3 сот.
    12 000 000 Р
    Агент
    +7 (989) Показать номер
    Посмотреть контакты
    Дом в Крым, Сакский район, с. Уютное ул. Приморская, 8А (105 м) - Фото 1
    Дом в Крым, Сакский район, с. Уютное ул. Приморская, 8А (105 м) - Фото 2
    1 этаж, общая площадь 105м², участок 5 соток

    Объект 1407. Дoм от зaстpoйщика Пpoдаeтся гoтoвый дoм, так же мoжем поcтpoить для вac дом по индивидуальному проекту Дoкументы готoвы к пpодажеДoм готов к пpодaже как зa нaличный pаcчёт, тaк и в ипотеку (аккрeдитoваны в сбеpбaнкe)
    • 1 эт.
    • 105 м²
    • 5 сот.
    12 000 000 Р
    Агент
    +7 (988) Показать номер
    Посмотреть контакты
    Дом в Крым, Сакский район, с. Уютное ул. Изобильная, 5 (91 м) - Фото 1
    Дом в Крым, Сакский район, с. Уютное ул. Изобильная, 5 (91 м) - Фото 2
    1 этаж, общая площадь 91м², участок 6 соток

    Продается жилой дом 91.3 м2 на участке 6 соток ИЖС Дом жилой, выполнен из ракушки в камень Утеплен по фасаду 2 слоями минеральной ваты Во дворе растут плодовые деревья, засеян газон В доме 2 спальные комнаты , просторная кухня-студия, большая...
    • 1 эт.
    • 91 м²
    • 6 сот.
    13 000 000 Р
    Агент
    +7 (918) Показать номер
    Посмотреть контакты
    Дом в Крым, Сакский район, с. Уютное ул. Приморская, 8А (120 м) - Фото 1
    Дом в Крым, Сакский район, с. Уютное ул. Приморская, 8А (120 м) - Фото 2
    1 этаж, общая площадь 120м², участок 3 сотки

    Продается готовый дом Все коммуникации заведены в дом Газ, свет, вода Удобная планировка. Современный ремонт. До моря 1км Дом с ракушки. Площадь участка - 300 кв.м. Полностью огорожен еврозабором. Экологически чистый и спокойный регион. Море...
    • 1 эт.
    • 120 м²
    • 3 сот.
    14 000 000 Р
    Агент
    +7 (918) Показать номер
    Посмотреть контакты
    Дом в Сакский район, село Уютное (81.2 м) - Фото 1
    Дом в Сакский район, село Уютное (81.2 м) - Фото 2
    1 этаж, общая площадь 81м², участок 6 соток

    **Ваш идеальный дом в Уютном ** Представляем вашему вниманию замечательный дом в живописном поселке Уютное, расположенном в Сакском районе Республики Крым. Этот объект недвижимости с юридическим статусом ИЖС — это идеальное место для комфортного проживания...
    • 1 эт.
    • 81 м²
    • 6 сот.
    12 000 000 Р
    Агент
    +7 (988) Показать номер
    Посмотреть контакты

    Не нашли подходящего объявления?

    Оставьте заявку, и наши риэлторы подберут купить дом в районе

    (0)