15 445 500 Р 195 500 $ или 170 600

Информация о квартире

88 м2
Площадь
студия
Комнат
8
Этаж
8
Этажность
Развернуть
Агент
+7 (988) 199-03-91
Начать чат с агентом

Студия Крым, Сакский район, Лесновское с/пос, с. Прибрежное Розовое ...

Продаётся студия в сданном доме (Секция 2), срок сдачи: IV-кв. 2024, общей площадью 88.26 кв.м., на 8 этаже. Жилой комплекс Розовое озеро расположен на западном побережье Крыма между городами Саки и Евпатория и входит в состав курортного комплекса Прибрежный. Экологически чистое место находится на косе между Чёрным морем и розовым озером Сасык-Сиваш в непосредственной близости к Сакским лечебным грязевым лиманам. Проект включает в себя современные квартиры в ЖК Розовое озеро и комплекс апартаментов Ола-апарт в прибрежной зоне с полным спектром курортной инфраструктуры. КОМФОРТНЫЕ ОБЩЕСТВЕННЫЕ ЗОНЫ ОТДЫХА Внутренние пространства дворов ЖК приватны и безопасны. Можно с комфортом провести время в тенистых беседках или прогуляться по променадной площади с фонтаном. Мы позаботились и о наших маленьких жильцах, специально для них будут построены современные игровые комплексы. Уличный стрит-ритейл насыщает жизнь в жилом комплексе в течение дня. Кафе и рестораны могут размещать посадочные места вдоль фасадов, привлекая посетителей. Благоустройство является важным элементом комфортной среды для отдыха, поэтому в ЖК предусмотрено комплексное озеленение. АРХИТЕКТУРНАЯ КОНЦЕПЦИЯ Сочетание разных типов фасадов и переменная этажность зданий создают уникальный образ каждой улицы. Остекление выполнено в алюминиевом профиле. Квартальная застройка комплекса защищает внутренние дворы от случайных гостей и делает их более уютными. Став резидентом КК Прибрежный, Вы приобретаете не просто квадратные метры , а особый образ жизни.

Читать полностью
    Позвонить Написать
    15 445 500 Р195 500 $ или 170 600
    Агент
    +7 (988) 199-03-91
    Начать чат с агентом
    Похожие предложения
    1-комнатная квартира, общая площадь 87м²

    Продаётся 1-комнатная квартира в сданном доме (Секция 5), срок сдачи: IV-кв. 2024, общей площадью 87.66 кв.м., на 8 этаже. Жилой комплекс Розовое озеро расположен на западном побережье Крыма между городами Саки и Евпатория и входит в состав курортного...
    • 87 м²
    • 1-ком
    • 8/8 эт.
    14 726 880 Р
    Агент
    +7 (988) Показать номер
    Посмотреть контакты
    Студия Крым, Сакский район, Лесновское с/пос, с. Прибрежное Розовое ... - Фото 1
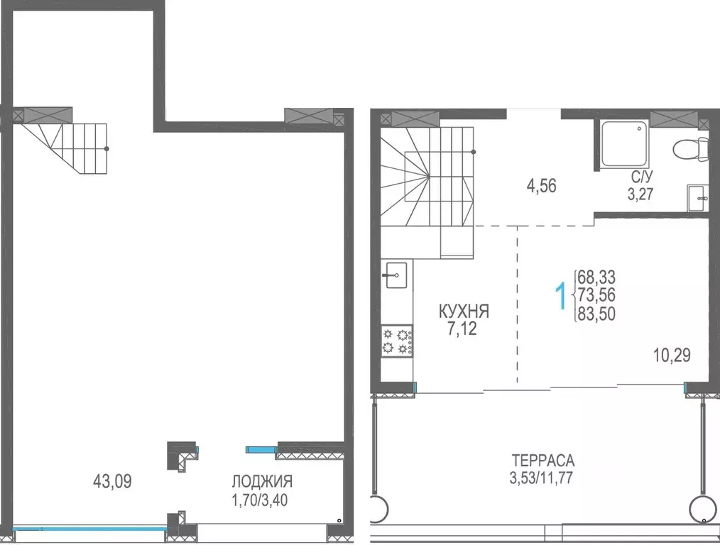
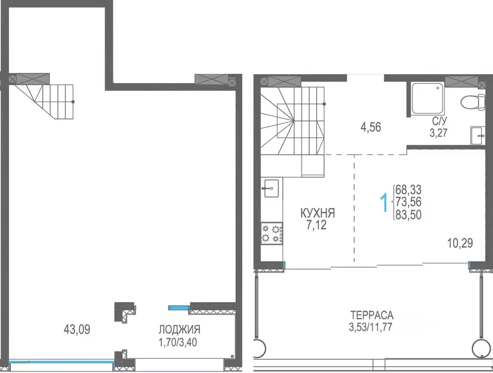
    студия, общая площадь 83м²

    Продаётся студия в сданном доме (Секция 7), срок сдачи: IV-кв. 2024, общей площадью 83.5 кв.м., на 8 этаже. Жилой комплекс Розовое озеро расположен на западном побережье Крыма между городами Саки и Евпатория и входит в состав курортного комплекса Прибрежный....
    • 83 м²
    • студия-ком
    • 8/8 эт.
    14 195 000 Р
    Агент
    +7 (988) Показать номер
    Посмотреть контакты
    1-к кв. Крым, Сакский район, Лесновское с/пос, с. Прибрежное Розовое ... - Фото 1
    1-к кв. Крым, Сакский район, Лесновское с/пос, с. Прибрежное Розовое ... - Фото 2
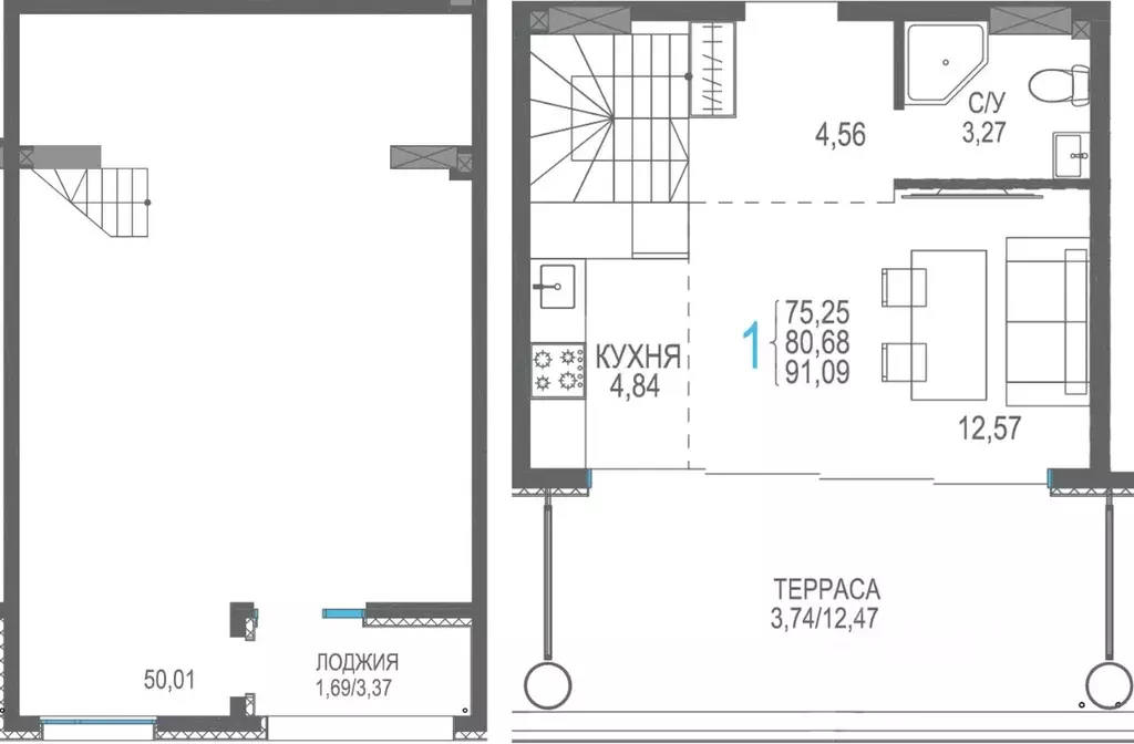
    1-комнатная квартира, общая площадь 91м²

    Продаётся 1-комнатная квартира в сданном доме (Секция 6), срок сдачи: IV-кв. 2024, общей площадью 91.09 кв.м., на 9 этаже. Жилой комплекс Розовое озеро расположен на западном побережье Крыма между городами Саки и Евпатория и входит в состав курортного...
    • 91 м²
    • 1-ком
    • 9/9 эт.
    15 485 300 Р
    Агент
    +7 (932) Показать номер
    Посмотреть контакты
    Студия Крым, Сакский район, Лесновское с/пос, с. Прибрежное Розовое ... - Фото 1
    Студия Крым, Сакский район, Лесновское с/пос, с. Прибрежное Розовое ... - Фото 2
    студия, общая площадь 83м²

    Продаётся студия в сданном доме (Секция 7), срок сдачи: IV-кв. 2024, общей площадью 83.5 кв.м., на 8 этаже. Жилой комплекс Розовое озеро расположен на западном побережье Крыма между городами Саки и Евпатория и входит в состав курортного комплекса Прибрежный....
    • 83 м²
    • студия-ком
    • 8/8 эт.
    14 195 000 Р
    Агент
    +7 (932) Показать номер
    Посмотреть контакты
    1-к кв. Крым, Сакский район, Лесновское с/пос, с. Прибрежное ул. ... - Фото 1
    1-к кв. Крым, Сакский район, Лесновское с/пос, с. Прибрежное ул. ... - Фото 2
    1-комнатная квартира, общая площадь 84м²

    Продаётся 1-комнатная квартира в сданном доме (Секция 5), срок сдачи: IV-кв. 2024, общей площадью 84.09 кв.м., на 8 этаже. Жилой комплекс Розовое озеро расположен на западном побережье Крыма между городами Саки и Евпатория и входит в состав курортного...
    • 84 м²
    • 1-ком
    • 8/8 эт.
    14 127 120 Р
    Агент
    +7 (932) Показать номер
    Посмотреть контакты

    Не нашли подходящего объявления?

    Оставьте заявку, и наши риэлторы подберут квартиру в новостройке в районе

    (0)