14 113 400 Р 174 200 $ или 150 300

Информация о квартире

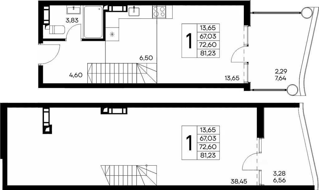
83 м2
Площадь
студия
Комнат
8
Этаж
8
Этажность
Развернуть
Агент
+7 (932) 506-54-00
Начать чат с агентом

Студия Крым, Сакский район, Лесновское с/пос, с. Прибрежное Розовое ...

Продаётся студия в сданном доме (Секция 7), срок сдачи: IV-кв. 2024, общей площадью 83.5 кв.м., на 8 этаже. Жилой комплекс Розовое озеро расположен на западном побережье Крыма между городами Саки и Евпатория и входит в состав курортного комплекса Прибрежный. Экологически чистое место находится на косе между Чёрным морем и розовым озером Сасык-Сиваш в непосредственной близости к Сакским лечебным грязевым лиманам. Проект включает в себя современные квартиры в ЖК Розовое озеро и комплекс апартаментов Ола-апарт в прибрежной зоне с полным спектром курортной инфраструктуры. КОМФОРТНЫЕ ОБЩЕСТВЕННЫЕ ЗОНЫ ОТДЫХА Внутренние пространства дворов ЖК приватны и безопасны. Можно с комфортом провести время в тенистых беседках или прогуляться по променадной площади с фонтаном. Мы позаботились и о наших маленьких жильцах, специально для них будут построены современные игровые комплексы. Уличный стрит-ритейл насыщает жизнь в жилом комплексе в течение дня. Кафе и рестораны могут размещать посадочные места вдоль фасадов, привлекая посетителей. Благоустройство является важным элементом комфортной среды для отдыха, поэтому в ЖК предусмотрено комплексное озеленение. АРХИТЕКТУРНАЯ КОНЦЕПЦИЯ Сочетание разных типов фасадов и переменная этажность зданий создают уникальный образ каждой улицы. Остекление выполнено в алюминиевом профиле. Квартальная застройка комплекса защищает внутренние дворы от случайных гостей и делает их более уютными. Став резидентом КК Прибрежный, Вы приобретаете не просто квадратные метры , а особый образ жизни.

Читать полностью
    Позвонить Написать
    14 113 400 Р174 200 $ или 150 300
    Агент
    +7 (932) 506-54-00
    Начать чат с агентом
    Похожие предложения
    Студия Крым, Сакский район, Лесновское с/пос, с. Прибрежное Розовое ... - Фото 1
    Студия Крым, Сакский район, Лесновское с/пос, с. Прибрежное Розовое ... - Фото 2
    студия, общая площадь 81м²

    Продаётся студия в сданном доме (Секция 2), срок сдачи: IV-кв. 2024, общей площадью 83.83 кв.м., на 8 этаже. Жилой комплекс Розовое озеро расположен на западном побережье Крыма между городами Саки и Евпатория и входит в состав курортного комплекса Прибрежный....
    • 81 м²
    • студия-ком
    • 8/8 эт.
    14 702 630 Р
    Агент
    +7 (988) Показать номер
    Посмотреть контакты
    Студия Крым, Сакский район, Лесновское с/пос, с. Прибрежное Розовое ... - Фото 1
    Студия Крым, Сакский район, Лесновское с/пос, с. Прибрежное Розовое ... - Фото 2
    студия, общая площадь 79м²

    Продаётся студия в сданном доме (Секция 8), срок сдачи: IV-кв. 2024, общей площадью 79.38 кв.м., на 1 этаже. Жилой комплекс Розовое озеро расположен на западном побережье Крыма между городами Саки и Евпатория и входит в состав курортного комплекса Прибрежный....
    • 79 м²
    • студия-ком
    • 1/8 эт.
    13 891 500 Р
    Агент
    +7 (988) Показать номер
    Посмотреть контакты
    2-к кв. Крым, Сакский район, Лесновское с/пос, с. Прибрежное Розовое ... - Фото 1
    2-к кв. Крым, Сакский район, Лесновское с/пос, с. Прибрежное Розовое ... - Фото 2
    2-комнатная квартира, общая площадь 54м²

    Продаётся 2-комнатная квартира в сданном доме (Секция 8), срок сдачи: IV-кв. 2024, общей площадью 54.85 кв.м., на 5 этаже. Жилой комплекс Розовое озеро расположен на западном побережье Крыма между городами Саки и Евпатория и входит в состав курортного...
    • 54 м²
    • 2-ком
    • 5/8 эт.
    13 218 850 Р
    Агент
    +7 (988) Показать номер
    Посмотреть контакты
    1-к кв. Крым, Сакский район, Лесновское с/пос, с. Прибрежное Розовое ... - Фото 1
    1-к кв. Крым, Сакский район, Лесновское с/пос, с. Прибрежное Розовое ... - Фото 2
    1-комнатная квартира, общая площадь 84м²

    Продаётся 1-комнатная квартира в сданном доме (Секция 6), срок сдачи: IV-кв. 2024, общей площадью 84.43 кв.м., на 9 этаже. Жилой комплекс Розовое озеро расположен на западном побережье Крыма между городами Саки и Евпатория и входит в состав курортного...
    • 84 м²
    • 1-ком
    • 9/9 эт.
    14 353 100 Р
    Агент
    +7 (988) Показать номер
    Посмотреть контакты
    1-к кв. Крым, Сакский район, Лесновское с/пос, с. Прибрежное Розовое ... - Фото 1
    1-к кв. Крым, Сакский район, Лесновское с/пос, с. Прибрежное Розовое ... - Фото 2
    1-комнатная квартира, общая площадь 83м²

    Продаётся 1-комнатная квартира в сданном доме (Секция 6), срок сдачи: IV-кв. 2024, общей площадью 84.43 кв.м., на 9 этаже. Жилой комплекс Розовое озеро расположен на западном побережье Крыма между городами Саки и Евпатория и входит в состав курортного...
    • 83 м²
    • 1-ком
    • 9/9 эт.
    14 252 800 Р
    Агент
    +7 (932) Показать номер
    Посмотреть контакты

    Не нашли подходящего объявления?

    Оставьте заявку, и наши риэлторы подберут квартиру в новостройке в районе

    (0)