10 959 060 Р 134 800 $ или 116 400

Информация о квартире

56 м2
Площадь
студия
Комнат
5
Этаж
8
Этажность
Развернуть
Агент
+7 (988) 199-15-07
Начать чат с агентом

Студия Крым, Сакский район, Лесновское с/пос, с. Прибрежное Розовое ...

Продаётся студия в сданном доме (Секция 2), срок сдачи: IV-кв. 2024, общей площадью 56.47 кв.м., на 5 этаже. Жилой комплекс Розовое озеро расположен на западном побережье Крыма между городами Саки и Евпатория и входит в состав курортного комплекса Прибрежный. Экологически чистое место находится на косе между Чёрным морем и розовым озером Сасык-Сиваш в непосредственной близости к Сакским лечебным грязевым лиманам. Проект включает в себя современные квартиры в ЖК Розовое озеро и комплекс апартаментов Ола-апарт в прибрежной зоне с полным спектром курортной инфраструктуры. КОМФОРТНЫЕ ОБЩЕСТВЕННЫЕ ЗОНЫ ОТДЫХА Внутренние пространства дворов ЖК приватны и безопасны. Можно с комфортом провести время в тенистых беседках или прогуляться по променадной площади с фонтаном. Мы позаботились и о наших маленьких жильцах, специально для них будут построены современные игровые комплексы. Уличный стрит-ритейл насыщает жизнь в жилом комплексе в течение дня. Кафе и рестораны могут размещать посадочные места вдоль фасадов, привлекая посетителей. Благоустройство является важным элементом комфортной среды для отдыха, поэтому в ЖК предусмотрено комплексное озеленение. АРХИТЕКТУРНАЯ КОНЦЕПЦИЯ Сочетание разных типов фасадов и переменная этажность зданий создают уникальный образ каждой улицы. Остекление выполнено в алюминиевом профиле. Квартальная застройка комплекса защищает внутренние дворы от случайных гостей и делает их более уютными. Став резидентом КК Прибрежный, Вы приобретаете не просто квадратные метры , а особый образ жизни.

Читать полностью
    Позвонить Написать
    10 959 060 Р134 800 $ или 116 400
    Агент
    +7 (988) 199-15-07
    Начать чат с агентом
    Похожие предложения
    Студия Крым, Сакский район, Лесновское с/пос, с. Прибрежное Розовое ... - Фото 1
    Студия Крым, Сакский район, Лесновское с/пос, с. Прибрежное Розовое ... - Фото 2
    студия, общая площадь 57м²

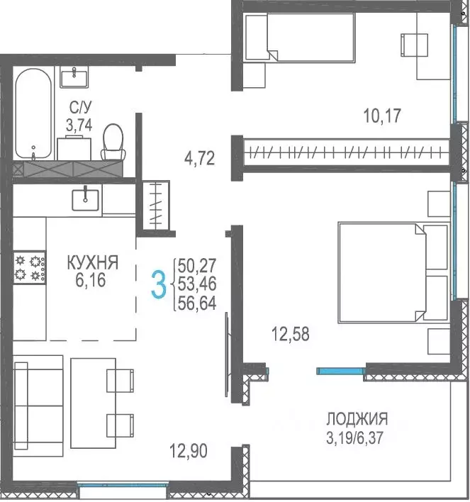
    Продаётся студия в сданном доме (Секция 7), срок сдачи: IV-кв. 2024, общей площадью 56.64 кв.м., на 5 этаже. Жилой комплекс Розовое озеро расположен на западном побережье Крыма между городами Саки и Евпатория и входит в состав курортного комплекса Прибрежный....
    • 57 м²
    • студия-ком
    • 5/8 эт.
    11 746 120 Р
    Агент
    +7 (988) Показать номер
    Посмотреть контакты
    Студия Крым, Сакский район, Лесновское с/пос, с. Прибрежное Розовое ... - Фото 1
    Студия Крым, Сакский район, Лесновское с/пос, с. Прибрежное Розовое ... - Фото 2
    студия, общая площадь 56м²

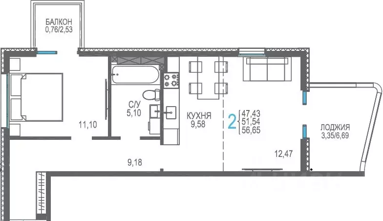
    Продаётся студия в сданном доме (Секция 2), срок сдачи: IV-кв. 2024, общей площадью 55.9 кв.м., на 5 этаже. Жилой комплекс Розовое озеро расположен на западном побережье Крыма между городами Саки и Евпатория и входит в состав курортного комплекса Прибрежный....
    • 56 м²
    • студия-ком
    • 5/8 эт.
    10 959 060 Р
    Агент
    +7 (932) Показать номер
    Посмотреть контакты
    Студия Крым, Сакский район, Лесновское с/пос, с. Прибрежное Розовое ... - Фото 1
    Студия Крым, Сакский район, Лесновское с/пос, с. Прибрежное Розовое ... - Фото 2
    студия, общая площадь 55м²

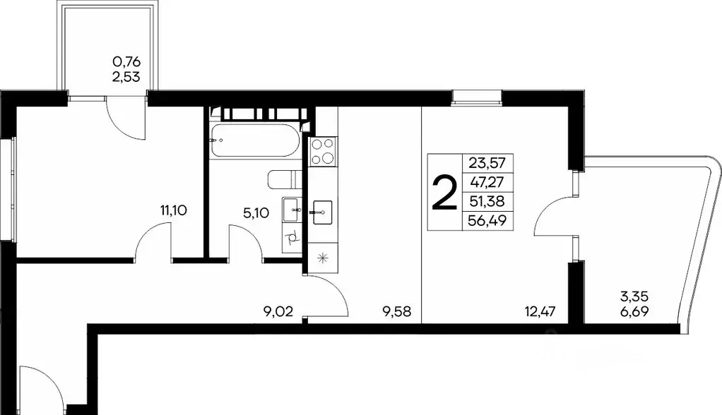
    Продаётся студия в сданном доме (Секция 2), срок сдачи: IV-кв. 2024, общей площадью 56.49 кв.м., на 2 этаже. Жилой комплекс Розовое озеро расположен на западном побережье Крыма между городами Саки и Евпатория и входит в состав курортного комплекса Прибрежный....
    • 55 м²
    • студия-ком
    • 2/8 эт.
    10 956 400 Р
    Агент
    +7 (932) Показать номер
    Посмотреть контакты
    Студия Крым, Сакский район, Лесновское с/пос, с. Прибрежное Розовое ... - Фото 1
    Студия Крым, Сакский район, Лесновское с/пос, с. Прибрежное Розовое ... - Фото 2
    студия, общая площадь 56м²

    Продаётся студия в сданном доме (Секция 2), срок сдачи: IV-кв. 2024, общей площадью 55.9 кв.м., на 3 этаже. Жилой комплекс Розовое озеро расположен на западном побережье Крыма между городами Саки и Евпатория и входит в состав курортного комплекса Прибрежный....
    • 56 м²
    • студия-ком
    • 3/8 эт.
    10 959 060 Р
    Агент
    +7 (988) Показать номер
    Посмотреть контакты
    Студия Крым, Сакский район, Лесновское с/пос, с. Прибрежное Розовое ... - Фото 1
    Студия Крым, Сакский район, Лесновское с/пос, с. Прибрежное Розовое ... - Фото 2
    студия, общая площадь 56м²

    Продаётся студия в сданном доме (Секция 7), срок сдачи: IV-кв. 2024, общей площадью 56.64 кв.м., на 4 этаже. Жилой комплекс Розовое озеро расположен на западном побережье Крыма между городами Саки и Евпатория и входит в состав курортного комплекса Прибрежный....
    • 56 м²
    • студия-ком
    • 4/8 эт.
    11 328 000 Р
    Агент
    +7 (932) Показать номер
    Посмотреть контакты

    Не нашли подходящего объявления?

    Оставьте заявку, и наши риэлторы подберут квартиру в новостройке в районе

    (0)