10 814 800 Р 133 700 $ или 115 800

Информация о квартире

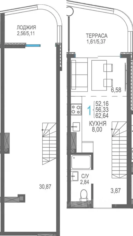
56 м2
Площадь
1
Комната
6
Этаж
9
Этажность
Развернуть
Агент
+7 (932) 506-54-00
Начать чат с агентом

1-к кв. Крым, Сакский район, Лесновское с/пос, с. Прибрежное Розовое ...

Продаётся 3-комнатная квартира в сданном доме (Секция 6), срок сдачи: IV-кв. 2024, общей площадью 56.33 кв.м., на 6 этаже. Жилой комплекс Розовое озеро расположен на западном побережье Крыма между городами Саки и Евпатория и входит в состав курортного комплекса Прибрежный. Экологически чистое место находится на косе между Чёрным морем и розовым озером Сасык-Сиваш в непосредственной близости к Сакским лечебным грязевым лиманам. Проект включает в себя современные квартиры в ЖК Розовое озеро и комплекс апартаментов Ола-апарт в прибрежной зоне с полным спектром курортной инфраструктуры. КОМФОРТНЫЕ ОБЩЕСТВЕННЫЕ ЗОНЫ ОТДЫХА Внутренние пространства дворов ЖК приватны и безопасны. Можно с комфортом провести время в тенистых беседках или прогуляться по променадной площади с фонтаном. Мы позаботились и о наших маленьких жильцах, специально для них будут построены современные игровые комплексы. Уличный стрит-ритейл насыщает жизнь в жилом комплексе в течение дня. Кафе и рестораны могут размещать посадочные места вдоль фасадов, привлекая посетителей. Благоустройство является важным элементом комфортной среды для отдыха, поэтому в ЖК предусмотрено комплексное озеленение. АРХИТЕКТУРНАЯ КОНЦЕПЦИЯ Сочетание разных типов фасадов и переменная этажность зданий создают уникальный образ каждой улицы. Остекление выполнено в алюминиевом профиле. Квартальная застройка комплекса защищает внутренние дворы от случайных гостей и делает их более уютными. Став резидентом КК Прибрежный, Вы приобретаете не просто квадратные метры , а особый образ жизни.

Читать полностью
    Позвонить Написать
    10 814 800 Р133 700 $ или 115 800
    Агент
    +7 (932) 506-54-00
    Начать чат с агентом
    Похожие предложения
    Студия Крым, Сакский район, Лесновское с/пос, с. Прибрежное Розовое ... - Фото 1
    Студия Крым, Сакский район, Лесновское с/пос, с. Прибрежное Розовое ... - Фото 2
    студия, общая площадь 57м²

    Продаётся студия в сданном доме (Секция 8), срок сдачи: IV-кв. 2024, общей площадью 57.55 кв.м., на 7 этаже. Жилой комплекс Розовое озеро расположен на западном побережье Крыма между городами Саки и Евпатория и входит в состав курортного комплекса Прибрежный....
    • 57 м²
    • студия-ком
    • 7/8 эт.
    10 646 750 Р
    Агент
    +7 (988) Показать номер
    Посмотреть контакты
    3-к кв. Крым, Сакский район, Лесновское с/пос, с. Прибрежное Розовое ... - Фото 1
    3-комнатная квартира, общая площадь 56м²

    Продаётся 3-комнатная квартира в сданном доме (Секция 6), срок сдачи: IV-кв. 2024, общей площадью 56.33 кв.м., на 3 этаже. Жилой комплекс Розовое озеро расположен на западном побережье Крыма между городами Саки и Евпатория и входит в состав курортного...
    • 56 м²
    • 3-ком
    • 3/9 эт.
    10 644 040 Р
    Агент
    +7 (988) Показать номер
    Посмотреть контакты
    Студия Крым, Сакский район, Лесновское с/пос, с. Прибрежное Розовое ... - Фото 1
    Студия Крым, Сакский район, Лесновское с/пос, с. Прибрежное Розовое ... - Фото 2
    студия, общая площадь 56м²

    Продаётся студия в сданном доме (Секция 7), срок сдачи: IV-кв. 2024, общей площадью 56.64 кв.м., на 3 этаже. Жилой комплекс Розовое озеро расположен на западном побережье Крыма между городами Саки и Евпатория и входит в состав курортного комплекса Прибрежный....
    • 56 м²
    • студия-ком
    • 3/8 эт.
    11 328 000 Р
    Агент
    +7 (988) Показать номер
    Посмотреть контакты
    Студия Крым, Сакский район, Лесновское с/пос, с. Прибрежное Розовое ... - Фото 1
    Студия Крым, Сакский район, Лесновское с/пос, с. Прибрежное Розовое ... - Фото 2
    студия, общая площадь 56м²

    Продаётся студия в сданном доме (Секция 7), срок сдачи: IV-кв. 2024, общей площадью 56.64 кв.м., на 6 этаже. Жилой комплекс Розовое озеро расположен на западном побережье Крыма между городами Саки и Евпатория и входит в состав курортного комплекса Прибрежный....
    • 56 м²
    • студия-ком
    • 6/8 эт.
    11 328 000 Р
    Агент
    +7 (988) Показать номер
    Посмотреть контакты
    3-к кв. Крым, Сакский район, Лесновское с/пос, с. Прибрежное Розовое ... - Фото 1
    3-к кв. Крым, Сакский район, Лесновское с/пос, с. Прибрежное Розовое ... - Фото 2
    3-комнатная квартира, общая площадь 56м²

    Продаётся 3-комнатная квартира в сданном доме (Секция 6), срок сдачи: IV-кв. 2024, общей площадью 56.92 кв.м., на 7 этаже. Жилой комплекс Розовое озеро расположен на западном побережье Крыма между городами Саки и Евпатория и входит в состав курортного...
    • 56 м²
    • 3-ком
    • 7/9 эт.
    10 814 800 Р
    Агент
    +7 (988) Показать номер
    Посмотреть контакты

    Не нашли подходящего объявления?

    Оставьте заявку, и наши риэлторы подберут квартиру в новостройке в районе

    (0)