20 345 610 Р 250 000 $ или 217 000

Информация о квартире

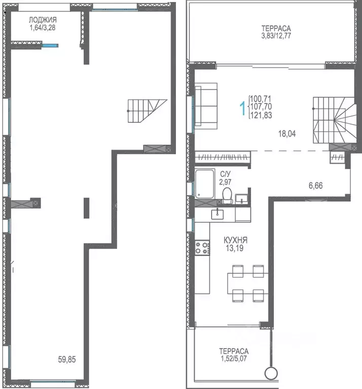
121 м2
Площадь
студия
Комнат
8
Этаж
8
Этажность
Развернуть
Агент
+7 (988) 199-15-07
Начать чат с агентом

Студия Крым, Сакский район, Лесновское с/пос, с. Прибрежное ул. ...

Продаётся студия в сданном доме (Секция 4), срок сдачи: IV-кв. 2024, общей площадью 121.83 кв.м., на 8 этаже. Жилой комплекс Розовое озеро расположен на западном побережье Крыма между городами Саки и Евпатория и входит в состав курортного комплекса Прибрежный. Экологически чистое место находится на косе между Чёрным морем и розовым озером Сасык-Сиваш в непосредственной близости к Сакским лечебным грязевым лиманам. Проект включает в себя современные квартиры в ЖК Розовое озеро и комплекс апартаментов Ола-апарт в прибрежной зоне с полным спектром курортной инфраструктуры. КОМФОРТНЫЕ ОБЩЕСТВЕННЫЕ ЗОНЫ ОТДЫХА Внутренние пространства дворов ЖК приватны и безопасны. Можно с комфортом провести время в тенистых беседках или прогуляться по променадной площади с фонтаном. Мы позаботились и о наших маленьких жильцах, специально для них будут построены современные игровые комплексы. Уличный стрит-ритейл насыщает жизнь в жилом комплексе в течение дня. Кафе и рестораны могут размещать посадочные места вдоль фасадов, привлекая посетителей. Благоустройство является важным элементом комфортной среды для отдыха, поэтому в ЖК предусмотрено комплексное озеленение. АРХИТЕКТУРНАЯ КОНЦЕПЦИЯ Сочетание разных типов фасадов и переменная этажность зданий создают уникальный образ каждой улицы. Остекление выполнено в алюминиевом профиле. Квартальная застройка комплекса защищает внутренние дворы от случайных гостей и делает их более уютными. Став резидентом КК Прибрежный, Вы приобретаете не просто квадратные метры , а особый образ жизни.

Читать полностью
    Позвонить Написать
    20 345 610 Р250 000 $ или 217 000
    Агент
    +7 (988) 199-15-07
    Начать чат с агентом
    Похожие предложения
    Студия Крым, Сакский район, Лесновское с/пос, с. Прибрежное ул. ... - Фото 1
    Студия Крым, Сакский район, Лесновское с/пос, с. Прибрежное ул. ... - Фото 2
    студия, общая площадь 121м²

    Продаётся студия в сданном доме (Секция 4), срок сдачи: IV-кв. 2024, общей площадью 121.83 кв.м., на 8 этаже. Жилой комплекс Розовое озеро расположен на западном побережье Крыма между городами Саки и Евпатория и входит в состав курортного комплекса Прибрежный....
    • 121 м²
    • студия-ком
    • 8/8 эт.
    20 345 610 Р
    Агент
    +7 (932) Показать номер
    Посмотреть контакты
    Студия Крым, Сакский район, Лесновское с/пос, с. Прибрежное ул. ... - Фото 1
    Студия Крым, Сакский район, Лесновское с/пос, с. Прибрежное ул. ... - Фото 2
    студия, общая площадь 121м²

    Продаётся студия в сданном доме (Секция 4), срок сдачи: IV-кв. 2024, общей площадью 121.83 кв.м., на 8 этаже. Жилой комплекс Розовое озеро расположен на западном побережье Крыма между городами Саки и Евпатория и входит в состав курортного комплекса Прибрежный....
    • 121 м²
    • студия-ком
    • 8/8 эт.
    20 345 610 Р
    Агент
    +7 (988) Показать номер
    Посмотреть контакты
    Студия Крым, Сакский район, Лесновское с/пос, с. Прибрежное ул. ... - Фото 1
    Студия Крым, Сакский район, Лесновское с/пос, с. Прибрежное ул. ... - Фото 2
    студия, общая площадь 123м²

    Продаётся студия в сданном доме (Секция 4), срок сдачи: IV-кв. 2024, общей площадью 123.33 кв.м., на 8 этаже. Жилой комплекс Розовое озеро расположен на западном побережье Крыма между городами Саки и Евпатория и входит в состав курортного комплекса Прибрежный....
    • 123 м²
    • студия-ком
    • 8/8 эт.
    20 596 110 Р
    Агент
    +7 (988) Показать номер
    Посмотреть контакты
    Студия Крым, Сакский район, Лесновское с/пос, с. Прибрежное ул. ... - Фото 1
    Студия Крым, Сакский район, Лесновское с/пос, с. Прибрежное ул. ... - Фото 2
    студия, общая площадь 123м²

    Продаётся студия в сданном доме (Секция 4), срок сдачи: IV-кв. 2024, общей площадью 123.33 кв.м., на 8 этаже. Жилой комплекс Розовое озеро расположен на западном побережье Крыма между городами Саки и Евпатория и входит в состав курортного комплекса Прибрежный....
    • 123 м²
    • студия-ком
    • 8/8 эт.
    20 596 110 Р
    Агент
    +7 (932) Показать номер
    Посмотреть контакты
    Студия Крым, Сакский район, Лесновское с/пос, с. Прибрежное ул. ... - Фото 1
    Студия Крым, Сакский район, Лесновское с/пос, с. Прибрежное ул. ... - Фото 2
    студия, общая площадь 123м²

    Продаётся студия в сданном доме (Секция 4), срок сдачи: IV-кв. 2024, общей площадью 123.33 кв.м., на 8 этаже. Жилой комплекс Розовое озеро расположен на западном побережье Крыма между городами Саки и Евпатория и входит в состав курортного комплекса Прибрежный....
    • 123 м²
    • студия-ком
    • 8/8 эт.
    20 596 110 Р
    Агент
    +7 (988) Показать номер
    Посмотреть контакты

    Не нашли подходящего объявления?

    Оставьте заявку, и наши риэлторы подберут квартиру в новостройке в районе

    (0)