13 408 080 Р 164 800 $ или 142 100

Информация о квартире

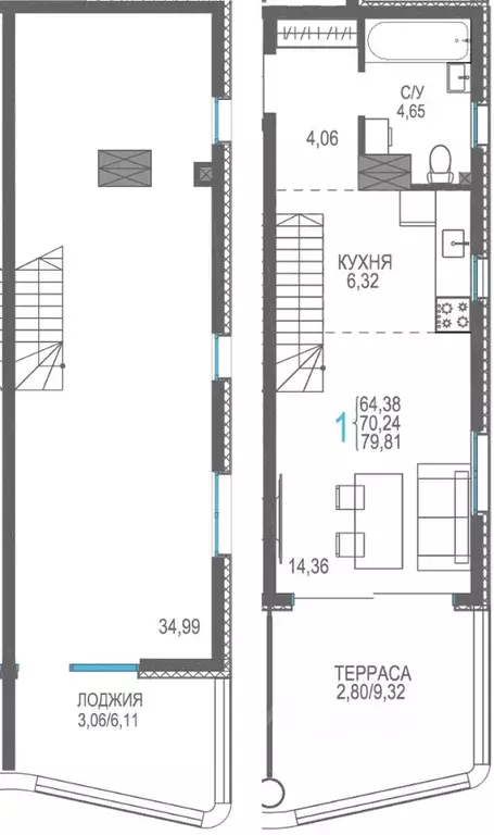
79 м2
Площадь
1
Комната
8
Этаж
8
Этажность
Развернуть
Агент
+7 (988) 199-15-07
Начать чат с агентом

1-к кв. Крым, Сакский район, Лесновское с/пос, с. Прибрежное ул. ...

Продаётся 1-комнатная квартира в сданном доме (Секция 5), срок сдачи: IV-кв. 2024, общей площадью 79.81 кв.м., на 8 этаже. Жилой комплекс Розовое озеро расположен на западном побережье Крыма между городами Саки и Евпатория и входит в состав курортного комплекса Прибрежный. Экологически чистое место находится на косе между Чёрным морем и розовым озером Сасык-Сиваш в непосредственной близости к Сакским лечебным грязевым лиманам. Проект включает в себя современные квартиры в ЖК Розовое озеро и комплекс апартаментов Ола-апарт в прибрежной зоне с полным спектром курортной инфраструктуры. КОМФОРТНЫЕ ОБЩЕСТВЕННЫЕ ЗОНЫ ОТДЫХА Внутренние пространства дворов ЖК приватны и безопасны. Можно с комфортом провести время в тенистых беседках или прогуляться по променадной площади с фонтаном. Мы позаботились и о наших маленьких жильцах, специально для них будут построены современные игровые комплексы. Уличный стрит-ритейл насыщает жизнь в жилом комплексе в течение дня. Кафе и рестораны могут размещать посадочные места вдоль фасадов, привлекая посетителей. Благоустройство является важным элементом комфортной среды для отдыха, поэтому в ЖК предусмотрено комплексное озеленение. АРХИТЕКТУРНАЯ КОНЦЕПЦИЯ Сочетание разных типов фасадов и переменная этажность зданий создают уникальный образ каждой улицы. Остекление выполнено в алюминиевом профиле. Квартальная застройка комплекса защищает внутренние дворы от случайных гостей и делает их более уютными. Став резидентом КК Прибрежный, Вы приобретаете не просто квадратные метры , а особый образ жизни.

Читать полностью
    Позвонить Написать
    13 408 080 Р164 800 $ или 142 100
    Агент
    +7 (988) 199-15-07
    Начать чат с агентом
    Похожие предложения
    1-к кв. Крым, Сакский район, Лесновское с/пос, с. Прибрежное ул. ... - Фото 1
    1-к кв. Крым, Сакский район, Лесновское с/пос, с. Прибрежное ул. ... - Фото 2
    1-комнатная квартира, общая площадь 79м²

    Продаётся 1-комнатная квартира в сданном доме (Секция 5), срок сдачи: IV-кв. 2024, общей площадью 79.81 кв.м., на 8 этаже. Жилой комплекс Розовое озеро расположен на западном побережье Крыма между городами Саки и Евпатория и входит в состав курортного...
    • 79 м²
    • 1-ком
    • 8/8 эт.
    13 408 080 Р
    Агент
    +7 (988) Показать номер
    Посмотреть контакты
    1-к кв. Крым, Сакский район, Лесновское с/пос, с. Прибрежное ул. ... - Фото 1
    1-к кв. Крым, Сакский район, Лесновское с/пос, с. Прибрежное ул. ... - Фото 2
    1-комнатная квартира, общая площадь 73м²

    Продаётся 1-комнатная квартира в сданном доме (Секция 5), срок сдачи: IV-кв. 2024, общей площадью 73.69 кв.м., на 8 этаже. Жилой комплекс Розовое озеро расположен на западном побережье Крыма между городами Саки и Евпатория и входит в состав курортного...
    • 73 м²
    • 1-ком
    • 8/8 эт.
    12 379 920 Р
    Агент
    +7 (988) Показать номер
    Посмотреть контакты
    1-к кв. Крым, Сакский район, Лесновское с/пос, с. Прибрежное ул. ... - Фото 1
    1-к кв. Крым, Сакский район, Лесновское с/пос, с. Прибрежное ул. ... - Фото 2
    1-комнатная квартира, общая площадь 73м²

    Продаётся 1-комнатная квартира в сданном доме (Секция 5), срок сдачи: IV-кв. 2024, общей площадью 73.69 кв.м., на 8 этаже. Жилой комплекс Розовое озеро расположен на западном побережье Крыма между городами Саки и Евпатория и входит в состав курортного...
    • 73 м²
    • 1-ком
    • 8/8 эт.
    12 379 920 Р
    Агент
    +7 (988) Показать номер
    Посмотреть контакты
    1-к кв. Крым, Сакский район, Лесновское с/пос, с. Прибрежное ул. ... - Фото 1
    1-к кв. Крым, Сакский район, Лесновское с/пос, с. Прибрежное ул. ... - Фото 2
    1-комнатная квартира, общая площадь 73м²

    Продаётся 1-комнатная квартира в сданном доме (Секция 5), срок сдачи: IV-кв. 2024, общей площадью 73.69 кв.м., на 8 этаже. Жилой комплекс Розовое озеро расположен на западном побережье Крыма между городами Саки и Евпатория и входит в состав курортного...
    • 73 м²
    • 1-ком
    • 8/8 эт.
    12 379 920 Р
    Агент
    +7 (988) Показать номер
    Посмотреть контакты
    1-к кв. Крым, Сакский район, Лесновское с/пос, с. Прибрежное ул. ... - Фото 1
    1-к кв. Крым, Сакский район, Лесновское с/пос, с. Прибрежное ул. ... - Фото 2
    1-комнатная квартира, общая площадь 73м²

    Продаётся 1-комнатная квартира в сданном доме (Секция 5), срок сдачи: IV-кв. 2024, общей площадью 73.69 кв.м., на 8 этаже. Жилой комплекс Розовое озеро расположен на западном побережье Крыма между городами Саки и Евпатория и входит в состав курортного...
    • 73 м²
    • 1-ком
    • 8/8 эт.
    12 379 920 Р
    Агент
    +7 (988) Показать номер
    Посмотреть контакты

    Не нашли подходящего объявления?

    Оставьте заявку, и наши риэлторы подберут квартиру в новостройке в районе

    (0)