11 268 900 Р 137 500 $ или 117 800

Информация о квартире

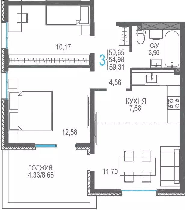
59 м2
Площадь
3
Комнаты
6
Этаж
8
Этажность
Развернуть
Агент
ИнтерCтрой (застройщик)
+7 (932) 506-54-00
Начать чат с агентом

3-к кв. Крым, Сакский район, Лесновское с/пос, с. Прибрежное ул. ...

Продаётся 3-комнатная квартира в сданном доме (Секция 5), срок сдачи: IV-кв. 2024, общей площадью 59.31 кв.м., на 6 этаже. Жилой комплекс Розовое озеро расположен на западном побережье Крыма между городами Саки и Евпатория и входит в состав курортного комплекса Прибрежный. Экологически чистое место находится на косе между Чёрным морем и розовым озером Сасык-Сиваш в непосредственной близости к Сакским лечебным грязевым лиманам. Проект включает в себя современные квартиры в ЖК Розовое озеро и комплекс апартаментов Ола-апарт в прибрежной зоне с полным спектром курортной инфраструктуры. КОМФОРТНЫЕ ОБЩЕСТВЕННЫЕ ЗОНЫ ОТДЫХА Внутренние пространства дворов ЖК приватны и безопасны. Можно с комфортом провести время в тенистых беседках или прогуляться по променадной площади с фонтаном. Мы позаботились и о наших маленьких жильцах, специально для них будут построены современные игровые комплексы. Уличный стрит-ритейл насыщает жизнь в жилом комплексе в течение дня. Кафе и рестораны могут размещать посадочные места вдоль фасадов, привлекая посетителей. Благоустройство является важным элементом комфортной среды для отдыха, поэтому в ЖК предусмотрено комплексное озеленение. АРХИТЕКТУРНАЯ КОНЦЕПЦИЯ Сочетание разных типов фасадов и переменная этажность зданий создают уникальный образ каждой улицы. Остекление выполнено в алюминиевом профиле. Квартальная застройка комплекса защищает внутренние дворы от случайных гостей и делает их более уютными. Став резидентом КК Прибрежный, Вы приобретаете не просто квадратные метры , а особый образ жизни.

Читать полностью
    Позвонить Написать
    11 268 900 Р137 500 $ или 117 800
    Агент
    ИнтерCтрой (застройщик)
    +7 (932) 506-54-00
    Начать чат с агентом
    Похожие предложения
    3-к кв. Крым, Сакский район, Лесновское с/пос, с. Прибрежное ул. ... - Фото 1
    3-к кв. Крым, Сакский район, Лесновское с/пос, с. Прибрежное ул. ... - Фото 2
    3-комнатная квартира, общая площадь 58м²

    Продаётся 3-комнатная квартира в сданном доме (Секция 5), срок сдачи: IV-кв. 2024, общей площадью 58.18 кв.м., на 5 этаже. Жилой комплекс Розовое озеро расположен на западном побережье Крыма между городами Саки и Евпатория и входит в состав курортного...
    • 58 м²
    • 3-ком
    • 5/8 эт.
    11 054 200 Р
    Агент
    +7 (988) Показать номер
    Посмотреть контакты
    3-к кв. Крым, Сакский район, Лесновское с/пос, с. Прибрежное ул. ... - Фото 1
    3-к кв. Крым, Сакский район, Лесновское с/пос, с. Прибрежное ул. ... - Фото 2
    3-комнатная квартира, общая площадь 58м²

    Продаётся 3-комнатная квартира в сданном доме (Секция 5), срок сдачи: IV-кв. 2024, общей площадью 58.18 кв.м., на 3 этаже. Жилой комплекс Розовое озеро расположен на западном побережье Крыма между городами Саки и Евпатория и входит в состав курортного...
    • 58 м²
    • 3-ком
    • 3/8 эт.
    11 054 200 Р
    Агент
    +7 (988) Показать номер
    Посмотреть контакты
    2-к кв. Крым, Сакский район, Лесновское с/пос, с. Прибрежное ул. ... - Фото 1
    2-к кв. Крым, Сакский район, Лесновское с/пос, с. Прибрежное ул. ... - Фото 2
    2-комнатная квартира, общая площадь 60м²

    Продаётся 2-комнатная квартира в сданном доме (Секция 5), срок сдачи: IV-кв. 2024, общей площадью 60.39 кв.м., на 1 этаже. Жилой комплекс Розовое озеро расположен на западном побережье Крыма между городами Саки и Евпатория и входит в состав курортного...
    • 60 м²
    • 2-ком
    • 1/8 эт.
    10 568 250 Р
    Агент
    +7 (988) Показать номер
    Посмотреть контакты
    3-к кв. Крым, Сакский район, Лесновское с/пос, с. Прибрежное ул. ... - Фото 1
    3-к кв. Крым, Сакский район, Лесновское с/пос, с. Прибрежное ул. ... - Фото 2
    3-комнатная квартира, общая площадь 58м²

    Продаётся 3-комнатная квартира в сданном доме (Секция 5), срок сдачи: IV-кв. 2024, общей площадью 58.16 кв.м., на 5 этаже. Жилой комплекс Розовое озеро расположен на западном побережье Крыма между городами Саки и Евпатория и входит в состав курортного...
    • 58 м²
    • 3-ком
    • 5/8 эт.
    11 050 400 Р
    Агент
    +7 (988) Показать номер
    Посмотреть контакты
    3-к кв. Крым, Сакский район, Лесновское с/пос, с. Прибрежное ул. ... - Фото 1
    3-к кв. Крым, Сакский район, Лесновское с/пос, с. Прибрежное ул. ... - Фото 2
    3-комнатная квартира, общая площадь 58м²

    Продаётся 3-комнатная квартира в сданном доме (Секция 5), срок сдачи: IV-кв. 2024, общей площадью 60.39 кв.м., на 3 этаже. Жилой комплекс Розовое озеро расположен на западном побережье Крыма между городами Саки и Евпатория и входит в состав курортного...
    • 58 м²
    • 3-ком
    • 3/8 эт.
    11 050 400 Р
    Агент
    +7 (988) Показать номер
    Посмотреть контакты

    Не нашли подходящего объявления?

    Оставьте заявку, и наши риэлторы подберут квартиру в новостройке в районе

    (0)