8 300 000 Р 105 400 $ или 91 210

Информация о квартире

59 м2
Площадь
37 м2
Жилая
6 м2
Кухня
3
Комнаты
5
Этаж
5
Этажность

Дополнительная информация

Тип дома
блочный
Развернуть
Агент
+7 (918) 081-60-87
Начать чат с агентом

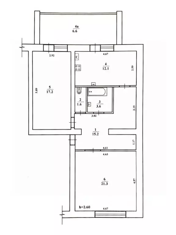
3-к кв. Крым, Саки ул. Советская (59.0 м)

Продаётся трёхкомнатная квартира в городе Саки с автономным отоплением АОГВ Трёхкомнатная квартира 59/37.9/6.2 кв. м, расположенная на пятом этаже пятиэтажного блочного дома по улице Советская в курортном городе Саки, западный Крым.Аккуратная светлая квартира состоит•из трёх жилых комнат ( две меньшие 8.9 и 11.8 кв. м объединены в одну большую),•просторной прихожей 9 кв. м,•кухни 6.2 кв. м со встроенной мебелью и бытовой техникой),•совмещённого санузла 3.6 кв. м, облицованного кафельной плиткой,•балкона и лоджии, утеплённых и застеклённых металлопластиковыми окнами.Хорошее жилое состояние, сделан свежий косметический ремонт. На полу положен утеплённый линолеум, на окна поставлены металлопластиковые стеклопакеты, установлена новая сантехника, входная двойная дверь.Произведён капитальный ремонт крыши и подъезда. В уютном зелёном дворе оборудована детская игровая площадка, красивые газоны, есть места для парковки авто.Дом расположен в центре города, возле Центрального рынка, недалеко автовокзал, в пешей доступности вся необходимая инфраструктура. Наша комиссия.+1 от стоимости объекта, но не менее.МЫ ГАРАНТИРУЕМ ФИНАНСОВУЮ БЕЗОПАСНОСТЬ ДЛЯ НАШИХ КЛИЕНТОВ.Полное юридическое сопровождение сделки.Высокий шанс одобрения ипотеки.Звоните, с удовольствием ответим на ваши вопросы Код пользователя: 77621Номер в базе: 2690050

Читать полностью

    Для того, чтобы купить трехкомнатную квартиру по адресу: Саки, ул. Советская, позвоните по телефону +7 (918) 081-60-87. Торопитесь! Объявление №30081245629 о продаже трехкомнатной квартиры опубликовано 03 апреля 2026.

    Позвонить Написать
    8 300 000 Р105 400 $ или 91 210
    Агент
    +7 (918) 081-60-87
    Начать чат с агентом
    Похожие предложения
    2-к кв. Крым, Саки ул. Санаторная (49.8 м) - Фото 1
    2-к кв. Крым, Саки ул. Санаторная (49.8 м) - Фото 2
    2-комнатная квартира, общая площадь 49м², кухня 8м²

    В продаже просторная видовая 2х-комнатная квартира в курортном городе Саки на улице Санаторной.Квартира площадью 50 кв.м. располагается на 6 этаже 9-этажного дома на берегу озера Все окна выходят на южную сторону с живописным видом на сакские озёра.В...
    • 49 м²
    • 2-ком
    • 6/9 эт.
    • блочный
    8 400 000 Р
    Агент
    +7 (989) Показать номер
    Посмотреть контакты
    3-к кв. Крым, Саки ул. Строительная (65.3 м) - Фото 1
    3-к кв. Крым, Саки ул. Строительная (65.3 м) - Фото 2
    3-комнатная квартира, общая площадь 65м², жилая 40м², кухня 9м²

    Продается великолепная трёхкомнатная квартира в сердце города Саки, Крым Общая площадь 65,3 кв. м, из которых 40,5 кв. м занимают светлые и просторные комнаты. Квартира расположена на четвертом этаже пятиэтажного блочного дома по улице Строительная....
    • 65 м²
    • 3-ком
    • 4/5 эт.
    8 200 000 Р
    Агент
    +7 (918) Показать номер
    Посмотреть контакты
    2-комнатная квартира: Саки, Санаторная улица, 7 (49.8 м) - Фото 1
    2-комнатная квартира: Саки, Санаторная улица, 7 (49.8 м) - Фото 2
    2-комнатная квартира, общая площадь 49м², жилая 37м², кухня 8м²

    В продаже просторная видовая 2х-комнатная квартира в курортном городе Саки на улице Санаторной.Квартира площадью 50 кв.м. располагается на 6 этаже 9-этажного дома на берегу озера Все окна выходят на южную сторону с живописным видом на сакские озёра.В...
    • 49 м²
    • 2-ком
    • 6/9 эт.
    8 400 000 Р
    Агент
    +7 (988) Показать номер
    Посмотреть контакты
    1-к кв. Крым, Саки ул. Санаторная (50.2 м) - Фото 1
    1-к кв. Крым, Саки ул. Санаторная (50.2 м) - Фото 2
    1-комнатная квартира, общая площадь 50м², кухня 6м²

    ПОДХОДИТ ПОД СЕМЕЙНУЮ ИПОТЕКУ Продаётся однокомнатная квартира на берегу озера в курортном городе Саки, Республика Крым Квартира находится на первом этаже в новом доме ЖК Санаторный, где создано все, что нужно для комфортной жизни. Дом построен и сдан...
    • 50 м²
    • 1-ком
    • 1/9 эт.
    • блочный
    8 200 000 Р
    Агент
    +7 (989) Показать номер
    Посмотреть контакты
    2-к кв. Крым, Сакский район, с. Уютное ул. Кирова, 11А (77.6 м) - Фото 1
    2-к кв. Крым, Сакский район, с. Уютное ул. Кирова, 11А (77.6 м) - Фото 2
    2-комнатная квартира, общая площадь 77м², жилая 38м², кухня 12м²

    Продается просторная двушка 77,6 м. 20 минут до моря Идеальный вариант для тех, кто ищет тишину и простор рядом с морем. Что имеем: 3/6 этаж, золотая середина. 77,6 кв.м — одна из самых больших площадей в своем сегменте. Жилая площадь 38.5...
    • 77 м²
    • 2-ком
    • 3/6 эт.
    • блочный
    8 300 000 Р
    Агент
    +7 (918) Показать номер
    Посмотреть контакты

    Не нашли подходящего объявления?

    Оставьте заявку, и наши риэлторы подберут квартиру в районе Саков

    (0)