Россия, Крым, Саки, курортный кластер Темпо
40 691 804 Р 501 000 $ или 433 600

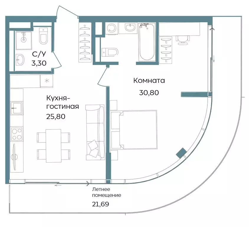
Информация о квартире

81 м2
Площадь
56 м2
Жилая
2
Комнаты
6
Этаж
12
Этажность
Развернуть
Агент
+7 (985) 030-65-86
Начать чат с агентом

2-комнатная квартира: Республика Крым, Саки, курортный кластер Темпо ...

TEMPO (ТЕМПО) — уникальный курортный кластер для истинных ценителей исключительного уровня жизни, изысканного сервиса, первоклассной инфраструктуры. Это место силы, где каждое мгновение безмерно прекрасно, а время принадлежит только вам. Комплекс возводится в престижном курортном кластере площадью 14 га, на первой береговой линии Черного моря, в экологически чистом районе г. Саки. В рамках проекта предусмотрено не только строительство 4-х корпусов, но и создание многофункционального гостиничного комплекса, современного мед.центра, торгово-офисных пространств, физкультурно-оздоровительной инф-ры, наземного паркинга, а также выполнение концептуального плана по авторскому благоустройству территории. TEMPO с футуристической архитектурой от AXI+ Bureau станет новой достопримечательностью побережья. Лаконичная архитектура навеяна благородными силуэтами круизных лайнеров, динамичные линии, панорамное остекление и парящие террасы создают образ комплекса элегантным, формируя уникальную симфонию современности и естественной красоты. Настоящей жемчужиной проекта станет премиальная клубная инф-ра и благоустройство. Концепция включает тщательное зонирование внутренней территории площадью 11,1 га. Проект был разработан ведущим ландшафтным бюро DerevoPark и удостоен золотого диплома от АЛАРОС. В рамках ландшафтного озеленения появятся сады и парки: «Сад тихого отдыха , «Сад снов , «Ландшафтный парк , «Крымский лес-парк . Арт-объекты, фонтаны, искусственный пруд и декоративные водоемы создадут атмосферу уюта и спокойствия. Предусмотрен амфитеатр для отдыха и культурных мероприятий. Будут обустроены дворы-парки с зелеными скверами, прогулочными аллеями, альпийскими горками, цветочными клумбами и смотровыми площадками. Первая береговая линия и собственный пляж площадью 1,8 га, протяженностью 300 м создадут уникальную атмосферу для отдыха и активного времяпрепровождения. Четыре бассейна, мед.центр с грязелечебницей и спа-зоной обеспечивают комфорт и расслабление вне зависимости от погодных условий. Детский клуб и детский бассейн, игровые 2-х уровневые площадки для детей, многофункциональные спортивные площадки, открытые и крытые теннисные корты, беговые и велодорожки, площадки для волейбола и баскетбола, зона воркаута, столы для пинг-понга, дом-йоги с беседкой для медитации, лаунж-зоны с беседками, качелями и лежаками — здесь каждый найдет занятие по душе и проведет время с пользой. Приобретая апартаменты в TEMPO, вы получаете не только комфорт и безопасность, эстетику и современное качество жизни, премиальный отдых, но и гарантированный стабильный пассивный доход. Вы сможете участвовать в прибыли комплекса с первого года его работы. Коллекция апартаментов впечатляет своим разнообразием: от студий до редких форматов с собственными патио, пентхаусов площадью до 355м2. Апартаменты в корпусе 1 предлагаются с отделкой white-box. В корпусах 2, 3 иасположены сервисные апартаменты с отделкой white-box под управлением оператора Valo Hospitality. Все корпуса возводятся с использованием современных энергоэффективных технологий и высококачественных экологически чистых материалов (A++). Удачное расположение комплекса и развитая система общественного транспорта позволят резидентам пользоваться всеми объектами курортной инф-ры г. Саки и г. Евпатории. До комплекса можно легко добраться как на собственном транспорте, так и на общественном — около 40 мин от аэропорта г. Симферополя, 8 мин от г. Саки и 16 мин от г. Евпатории.

Читать полностью
    Позвонить Написать
    40 691 804 Р501 000 $ или 433 600
    Агент
    +7 (985) 030-65-86
    Начать чат с агентом
    Похожие предложения в Саках
    2-комнатная квартира: Республика Крым, Саки, курортный кластер Темпо ... - Фото 1
    2-комнатная квартира: Республика Крым, Саки, курортный кластер Темпо ... - Фото 2
    2-комнатная квартира, общая площадь 81м², жилая 56м²

    TEMPO (ТЕМПО) — уникальный курортный кластер для истинных ценителей исключительного уровня жизни, изысканного сервиса, первоклассной инфраструктуры. Это место силы, где каждое мгновение безмерно прекрасно, а время принадлежит только вам. Комплекс возводится...
    • 81 м²
    • 2-ком
    • 2/12 эт.
    41 724 264 Р
    Агент
    +7 (985) Показать номер
    Посмотреть контакты
    2-комнатная квартира: Республика Крым, Саки, курортный кластер Темпо ... - Фото 1
    2-комнатная квартира: Республика Крым, Саки, курортный кластер Темпо ... - Фото 2
    2-комнатная квартира, общая площадь 81м², жилая 56м²

    TEMPO (ТЕМПО) — уникальный курортный кластер для истинных ценителей исключительного уровня жизни, изысканного сервиса, первоклассной инфраструктуры. Это место силы, где каждое мгновение безмерно прекрасно, а время принадлежит только вам. Комплекс возводится...
    • 81 м²
    • 2-ком
    • 6/12 эт.
    41 831 276 Р
    Агент
    +7 (985) Показать номер
    Посмотреть контакты
    2-комнатная квартира: Республика Крым, Саки, курортный кластер Темпо ... - Фото 1
    2-комнатная квартира: Республика Крым, Саки, курортный кластер Темпо ... - Фото 2
    2-комнатная квартира, общая площадь 81м², жилая 56м²

    TEMPO (ТЕМПО) — уникальный курортный кластер для истинных ценителей исключительного уровня жизни, изысканного сервиса, первоклассной инфраструктуры. Это место силы, где каждое мгновение безмерно прекрасно, а время принадлежит только вам. Комплекс возводится...
    • 81 м²
    • 2-ком
    • 6/12 эт.
    40 691 804 Р
    Агент
    +7 (985) Показать номер
    Посмотреть контакты
    2-комнатная квартира: Республика Крым, Саки, курортный кластер Темпо ... - Фото 1
    2-комнатная квартира: Республика Крым, Саки, курортный кластер Темпо ... - Фото 2
    2-комнатная квартира, общая площадь 81м², жилая 56м²

    TEMPO (ТЕМПО) — уникальный курортный кластер для истинных ценителей исключительного уровня жизни, изысканного сервиса, первоклассной инфраструктуры. Это место силы, где каждое мгновение безмерно прекрасно, а время принадлежит только вам. Комплекс возводится...
    • 81 м²
    • 2-ком
    • 2/12 эт.
    41 724 264 Р
    Агент
    +7 (985) Показать номер
    Посмотреть контакты
    2-комнатная квартира: Республика Крым, Саки, курортный кластер Темпо ... - Фото 1
    2-комнатная квартира: Республика Крым, Саки, курортный кластер Темпо ... - Фото 2
    2-комнатная квартира, общая площадь 81м², жилая 56м²

    TEMPO (ТЕМПО) — уникальный курортный кластер для истинных ценителей исключительного уровня жизни, изысканного сервиса, первоклассной инфраструктуры. Это место силы, где каждое мгновение безмерно прекрасно, а время принадлежит только вам. Комплекс возводится...
    • 81 м²
    • 2-ком
    • 6/12 эт.
    41 831 276 Р
    Агент
    +7 (985) Показать номер
    Посмотреть контакты

    Не нашли подходящего объявления?

    Оставьте заявку, и наши риэлторы подберут квартиру в новостройке в районе Саков

    (0)