Россия, Крым, Саки, курортный кластер Темпо

Реализация объекта недвижимости приостановлена

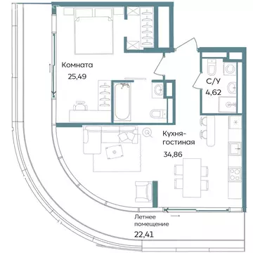
Информация о квартире

89.0 м2
Площадь
30.0 м2
Жилая
2
Комнаты
5
Этаж
12
Этажность
Развернуть

2-комнатная квартира: Республика Крым, Саки, курортный кластер Темпо ...

TEMPO (ТЕМПО) — уникальный курортный кластер для истинных ценителей исключительного уровня жизни, изысканного сервиса, первоклассной инфраструктуры. Это место силы, где каждое мгновение безмерно прекрасно, а время принадлежит только вам. Комплекс возводится в престижном курортном кластере площадью 14 га, на первой береговой линии Черного моря, в экологически чистом районе г. Саки. В рамках проекта предусмотрено не только строительство 4-х корпусов, но и создание многофункционального гостиничного комплекса, современного мед.центра, торгово-офисных пространств, физкультурно-оздоровительной инф-ры, наземного паркинга, а также выполнение концептуального плана по авторскому благоустройству территории. TEMPO с футуристической архитектурой от AXI+ Bureau станет новой достопримечательностью побережья. Лаконичная архитектура навеяна благородными силуэтами круизных лайнеров, динамичные линии, панорамное остекление и парящие террасы создают образ комплекса элегантным, формируя уникальную симфонию современности и естественной красоты. Настоящей жемчужиной проекта станет премиальная клубная инф-ра и благоустройство. Концепция включает тщательное зонирование внутренней территории площадью 11,1 га. Проект был разработан ведущим ландшафтным бюро DerevoPark и удостоен золотого диплома от АЛАРОС. В рамках ландшафтного озеленения появятся сады и парки: «Сад тихого отдыха , «Сад снов , «Ландшафтный парк , «Крымский лес-парк . Арт-объекты, фонтаны, искусственный пруд и декоративные водоемы создадут атмосферу уюта и спокойствия. Предусмотрен амфитеатр для отдыха и культурных мероприятий. Будут обустроены дворы-парки с зелеными скверами, прогулочными аллеями, альпийскими горками, цветочными клумбами и смотровыми площадками. Первая береговая линия и собственный пляж площадью 1,8 га, протяженностью 300 м создадут уникальную атмосферу для отдыха и активного времяпрепровождения. Четыре бассейна, мед.центр с грязелечебницей и спа-зоной обеспечивают комфорт и расслабление вне зависимости от погодных условий. Детский клуб и детский бассейн, игровые 2-х уровневые площадки для детей, многофункциональные спортивные площадки, открытые и крытые теннисные корты, беговые и велодорожки, площадки для волейбола и баскетбола, зона воркаута, столы для пинг-понга, дом-йоги с беседкой для медитации, лаунж-зоны с беседками, качелями и лежаками — здесь каждый найдет занятие по душе и проведет время с пользой. Приобретая апартаменты в TEMPO, вы получаете не только комфорт и безопасность, эстетику и современное качество жизни, премиальный отдых, но и гарантированный стабильный пассивный доход. Вы сможете участвовать в прибыли комплекса с первого года его работы. Коллекция апартаментов впечатляет своим разнообразием: от студий до редких форматов с собственными патио, пентхаусов площадью до 355м2. Апартаменты в корпусе 1 предлагаются с отделкой white-box. В корпусах 2, 3 иасположены сервисные апартаменты с отделкой white-box под управлением оператора Valo Hospitality. Все корпуса возводятся с использованием современных энергоэффективных технологий и высококачественных экологически чистых материалов (A++). Удачное расположение комплекса и развитая система общественного транспорта позволят резидентам пользоваться всеми объектами курортной инф-ры г. Саки и г. Евпатории. До комплекса можно легко добраться как на собственном транспорте, так и на общественном — около 40 мин от аэропорта г. Симферополя, 8 мин от г. Саки и 16 мин от г. Евпатории.

Читать полностью

    Реализация объекта недвижимости приостановлена

    Не нашли подходящего объявления?

    Оставьте заявку, и наши риэлторы подберут квартиру в новостройке в районе Саков

    (0)