19 500 000 Р 264 300 $ или 223 200

Информация о коттедже

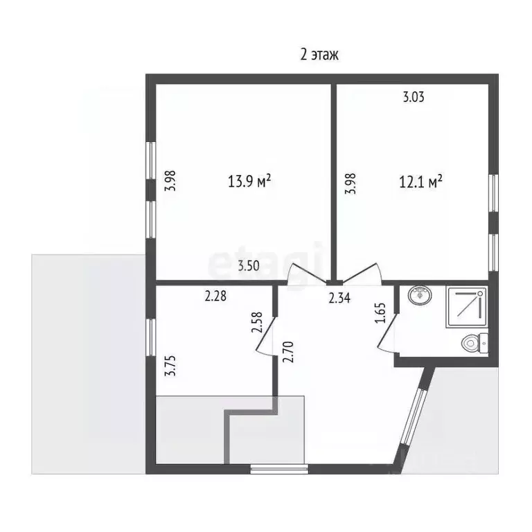
105 м2
Площадь
2
Этажность
7 cоток
Участок

Дополнительная информация

Дом продаётся вместе с участком
есть
Развернуть
Агент
+7 (918) 437-22-94
Начать чат с агентом

Дом в Крым, Ленинский район, Щелкино городское поселение, Энергетик-2 ...

Номер объекта: 537381. Продаётся 2-х этажный дом общей площадью 105.1 м2 в ТСН Энергетик-2 г. Щёлкино.Дом возводился по проекту ( в антисейсмическом варианте) на земельном участке площадью 8 соток. Материал стен ракушечник, толщиной в 1 камень, с дополнительной штукатуркой и наружной теплоизоляцией. Перекрытия железобетонные. Внутри и снаружи выполнена современная отделка.На 1 этаже располагается санузел, спальня и просторная кухня-гостиная с выходом на крытую террасу и сад. В прихожей встроенная мебель, на кухне мебель и современная техника.На 2 этаже находится санузел и 3 спальни, из двух спален есть выход на просторный балкон, с которого открывается вид на Азовское море и прекрасный фруктовый сад. Все комнаты меблированы.На обоих этажах тёплые полы. Отопление от электрокотла. Также на первом этаже есть камин, который можно использовать как дополнительный источник тепла. На летнее время имеется кондиционер. Двор благоустроен, вымощен брущаткой. На территории располагается мангальная зона, капитальная хоз.постройка на 2 помещения и просторная парковка. Откатные ворота оснащены автоматической системой открывания.На участке фруктовый сад: есть персики, груши, яблони, абрикосы, черешня, вишня и т.д. Вся садовая зона оборудована разводкой для полива. Дом расположен в удобном месте, 800 метров до берега Азовского моря и городской инфраструктуры ( школы, детсады, магазины, рынок, заправка, поликлиника, банки)Электричество и вода городские, подаются без перебоев, канализация септик.В перспективе планируется газификация ТСН.Документы на дом и участок в наличии. Звоните, записывайтесь на просмотр.

Читать полностью

    Для того, чтобы купить 2-этажный коттедж по адресу: , позвоните по телефону +7 (918) 437-22-94. Торопитесь! Объявление №50016246337 о продаже двухэтажного коттеджа опубликовано 29 апреля 2026.

    Позвонить Написать
    19 500 000 Р264 300 $ или 223 200
    Агент
    +7 (918) 437-22-94
    Начать чат с агентом
    Похожие предложения
    Дом в Крым, Судак муниципальный округ, с. Дачное ул. Южная, 8 (240 м) - Фото 1
    Дом в Крым, Судак муниципальный округ, с. Дачное ул. Южная, 8 (240 м) - Фото 2
    2 этажа, общая площадь 240м², участок 7 соток

    Объект 4187. В продаже отличный, современный, двухэтажный дом с качественным ремонтом в с.Дачное Дом находится на участке площадью 7 соток Двор облагорожен,разделен на две части,на одной находится дом,площадка выложенная тратуарной плиткой,есть навес...
    • 2 эт.
    • 240 м²
    • 7 сот.
    20 000 000 Р
    Агент
    +7 (989) Показать номер
    Посмотреть контакты
    Дом в Крым, Феодосия муниципальный округ, Орджоникидзе пгт ул. ... - Фото 1
    Дом в Крым, Феодосия муниципальный округ, Орджоникидзе пгт ул. ... - Фото 2
    3 этажа, общая площадь 191м², участок 10 соток

    Объект 8643. В продаже Эллинги на берегу Черного моря, г. Феодосия, пгт Орджоникидзе. Номера расположены на первой линии с прямым видом на море Общая площадь 191 кв.м: три номера по 50 кв.м с отдельными входами и подвал, который используется в качестве...
    • 3 эт.
    • 191 м²
    • 10 сот.
    20 000 000 Р
    Агент
    +7 (918) Показать номер
    Посмотреть контакты
    Дом в Севастополь ул. Коралловая (150 м) - Фото 1
    Дом в Севастополь ул. Коралловая (150 м) - Фото 2
    2 этажа, общая площадь 150м², участок 3 сотки

    Deluxe-предложение от застройщика по адресу: ул. Коралловая, Стрелецкая бухта, Севастополь.В продаже дом 150м2 на 3 сотках ИЖС Месторасположение:- в тихом месте с развитой инфраструктурой;- в 10 минутах езды на машине находятся два благоустроенных пляжа...
    • 2 эт.
    • 150 м²
    • 3 сот.
    21 000 000 Р
    Агент
    +7 (918) Показать номер
    Посмотреть контакты
    Дом в Севастополь с. Подгорное, ул. Уютная, 7 (285 м) - Фото 1
    Дом в Севастополь с. Подгорное, ул. Уютная, 7 (285 м) - Фото 2
    1 этаж, общая площадь 285м², участок 15 соток

    Арт.. В продаже дом 285 м2 на супервидовом земельном участке ИЖС - 15 сот. (28 м.*52 м.)Дом построен в 2020 году и введён в эксплуатацию в 2021 году - 285,5 кв.м. общ. пл. (по факту более 310 кв.м.) в самом привлекательном и экологически чистом районе...
    • 1 эт.
    • 285 м²
    • 15 сот.
    19 500 000 Р
    Агент
    +7 (918) Показать номер
    Посмотреть контакты
    Продажа дома, Севастополь, территория СТ Фронтовик - Фото 1
    Продажа дома, Севастополь, территория СТ Фронтовик - Фото 2
    Продажа дома, Севастополь, территория СТ Фронтовик - Фото 3
    Продажа дома, Севастополь, территория СТ Фронтовик - Фото 4
    Продажа дома, Севастополь, территория СТ Фронтовик - Фото 5
    Продажа дома, Севастополь, территория СТ Фронтовик - Фото 6
    Продажа дома, Севастополь, территория СТ Фронтовик - Фото 7
    Продажа дома, Севастополь, территория СТ Фронтовик - Фото 8
    Продажа дома, Севастополь, территория СТ Фронтовик - Фото 9
    Продажа дома, Севастополь, территория СТ Фронтовик - Фото 10
    Продажа дома, Севастополь, территория СТ Фронтовик - Фото 11
    Продажа дома, Севастополь, территория СТ Фронтовик - Фото 12
    Продажа дома, Севастополь, территория СТ Фронтовик - Фото 13
    2 этажа, общая площадь 125м², жилая 80м², кухня 20м², кол-во комнат 5, участок 4 сотки

    Дом на две семьи или можно сдавать один этаж. Разделен по этажам. Построен из Крымского ракушняка с современным евроремонтом. Участок: красивый ухоженный ровный 4 сотки. Есть беседка. Парковка под навесом для двух машин. Большая придомовая территория. Коммуникации:...
    • 2 эт.
    • 125 м²
    • 4 сот.
    • 5-ком
    20 800 000 Р
    Агент
    +7 (978) Показать номер
    Посмотреть контакты

    Не нашли подходящего объявления?

    Оставьте заявку, и наши риэлторы подберут купить дом в районе Ленинского района

    (0)