Реализация объекта недвижимости приостановлена

Информация о квартире

58.0 м2
Площадь
27.0 м2
Жилая
14.0 м2
Кухня
2
Комнаты
1
Этаж
2
Этажность
Развернуть

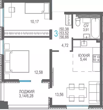
2-комнатная квартира: Республика Крым, муниципальный округ Алушта, ...

Предлагаем вам уникальную квартиру в самом сердце живописного Виноградного, недалеко от Алушты. Эта современная монолитная квартира, построенная в 2025 году, находится на первом этаже нового дома и станет идеальным местом как для постоянного проживания, так и для летнего отдыха. Удобная планировка с двумя комнатами, смежно-изолированная, позволяет максимально эффективно организовать пространство.Общая площадь квартиры составляет 58.8 кв. м, из которых 27.1 кв. м – жилая. Просторная кухня площадью 14.7 кв. м идеально подходит для приготовления кулинарных шедевров и семейных ужинов. Высота потолков в 2.7 м создает ощущение легкости и простора, наполняя комнаты светом и воздухом. С окнами, выходящими во внутренний зеленый двор, вы сможете наслаждаться спокойствием и уединением, погружаясь в атмосферу комфорта.Квартира располагает удобным совмещенным санузлом и лоджией, где приятно провести утро с чашечкой кофе. Расстояние до моря всего 2999 метров, что подразумевает легкий доступ к пляжу и всем прелестям морского отдыха. Не упустите шанс стать владельцем этого уголка рая, который ждет вас в Крыму. Запишитесь на просмотр уже сегодня и убедитесь в том, что ваша мечта о собственном жилье у моря может стать реальностью

Читать полностью

    Реализация объекта недвижимости приостановлена

    Не нашли подходящего объявления?

    Оставьте заявку, и наши риэлторы подберут квартиру в новостройке в районе

    (0)