Реализация объекта недвижимости приостановлена

Информация о коттедже

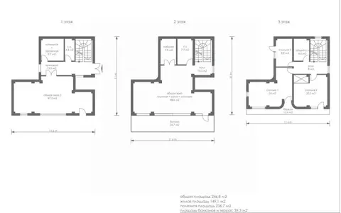
429.0 м2
Площадь
4
Этажность
4.0 cоток
Участок

Дополнительная информация

Дом продаётся вместе с участком
есть
Развернуть

Дом в Крым, Ялта муниципальный округ, Виноградное пгт ул. Красина, 16Б ...

Предлагается к продаже коттедж общей площадью 429 м2 на участке 4 сотки в живописном поселке Виноградное, в элитном комплексе Панорама Хутор В доме 4 этажа, первый этаж-цоколь, эксплуатируемая кровля 60 м2. Сейчас дом в стадии строительства. В каждом коттедже будет гараж, котельная, постирочная, коридор, кладовая, серверная. Планировка свободная.Дом будет сдан со всеми коммуникациями, в предчистовой отделке.Коттеджный комплекс ПАНОРАМА ХУТОР в Ялте (Верхняя Ливадия, пос. Виноградное) идеальное место для жизни и отдыха в любое время года Расположенный всего в 1,5 км от центра Ялты и в 3 км от лучших пляжей Южного берега Крыма, комплекс граничит с горно-лесным заповедником и Поляной Сказок . Близость к Боткинской тропе, водопаду Учан-Су и ТЦ КОНФЕТИ .Готовая инфраструктура: Установлены серверная, оптическое волокно, видеонаблюдение. Подведены электроснабжение (90 кВт общей мощностью, 15 кВт на каждый дом с возможностью увеличения), газоснабжение (общий стояк), имеются согласованные проект и разрешение на подключение к централизованной канализации. Возможна установка автономных септиков. МЫ ГАРАНТИРУЕМ ФИНАНСОВУЮ БЕЗОПАСНОСТЬ ДЛЯ НАШИХ КЛИЕНТОВ.Полное юридическое сопровождение сделки.Высокий шанс одобрения ипотеки.Звоните, с удовольствием ответим на ваши вопросы Код пользователя: 190344Номер в базе: 7641146

Читать полностью

    Реализация объекта недвижимости приостановлена

    Не нашли подходящего объявления?

    Оставьте заявку, и наши риэлторы подберут купить дом в районе

    (0)