Россия, Крым, Керчь, жилой комплекс Белый город

Реализация объекта недвижимости приостановлена

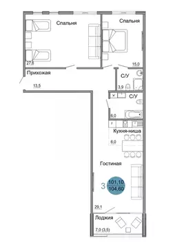
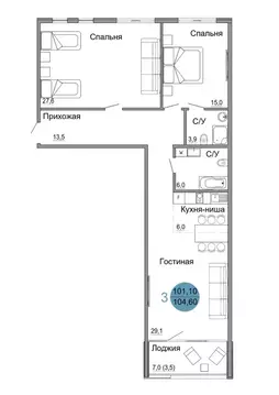
Информация о квартире

104.0 м2
Площадь
3
Комнаты
4
Этаж
4
Этажность
Развернуть

3-комнатная квартира: Керчь, жилой комплекс Белый город (104.9 м)

Продается квартира 24 на 4 этаже в 1 подъезде Корпус 2. ЖК Белый город на берегу Черного моря. Закрытый комплекс, уютная территория, дикий пляж в непосредственной близости. Террасы с видом на море. Квартиры от застройщика по 214-ФЗ. Ипотека. Подробнее на .

Читать полностью

    Реализация объекта недвижимости приостановлена

    Не нашли подходящего объявления?

    Оставьте заявку, и наши риэлторы подберут квартиру в новостройке в районе Керчи

    (0)