11 000 000 Р 152 000 $ или 130 800

Информация об помещении

1
Этаж

Состояние и оснащение

Количество этажей
6
Развернуть
Агент
+7 (918) 081-67-99
Начать чат с агентом

Помещение свободного назначения в Крым, Евпатория просп. Победы, 81 ...

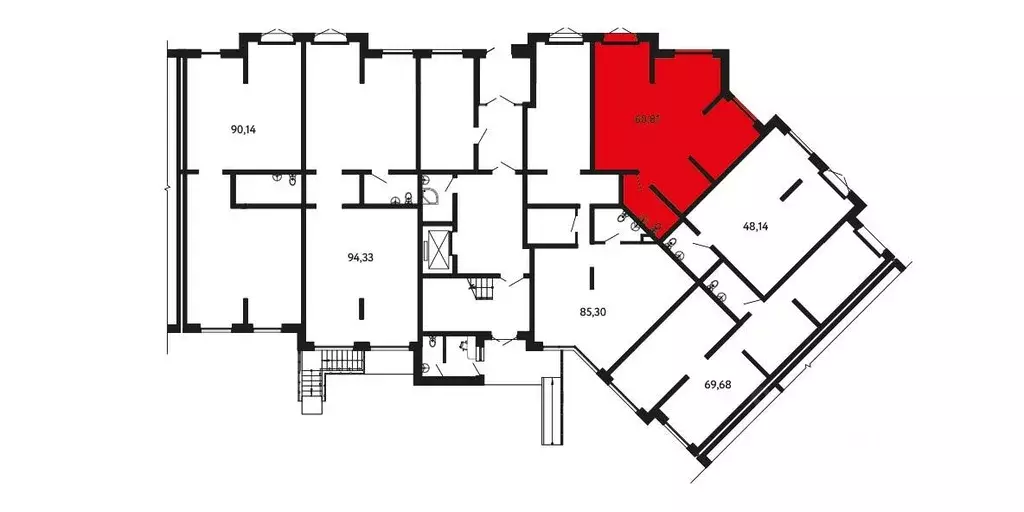
Если вы ищете подходящее коммерческое помещение, то эта недвижимость в Евпатории станет идеальным выбором для вашего бизнеса Расположенное на Победы пр-кт., 81, этаж 1, это помещение площадью 165 квадратных метров может быть подходящим решением для ваших потребностей.2 входа/выхода.Основное назначение помещения - Свободное назначение. Это значит, что вы можете приспособить его под свой бизнес независимо от того, какой у вас бизнес - оно идеально подходит для торговых центров или медицинских клиник, магазинов или офисов.Это привлекательное и выгодное расположение в самом сердце Евпатории, что делает его идеальным местом для бизнеса. Также его расположение отлично подходит для тех, кто хочет хорошо расположить свою фирму в развивающемся районе города.Цена на данный объект невероятно выгодная, что делает его еще более привлекательным для инвесторов и бизнесменов. Уверены, что данное помещение сможет удовлетворить все ваши потребности и обеспечить вам прибыльное дело.Суммируя, это замечательное торговое помещение обладает потрясающими возможностями для тех, кто только начинает свой бизнес или же хочет его расширить. Не упустите шанс стать владельцем такого подходящего коммерческого помещения Документы в Российском правовом поле .

Читать полностью
    Позвонить Написать
    11 000 000 Р152 000 $ или 130 800
    Агент
    +7 (918) 081-67-99
    Начать чат с агентом
    Похожие предложения
    Помещение свободного назначения в Крым, Евпатория просп. Победы, 4 (52 ... - Фото 1
    Помещение свободного назначения в Крым, Евпатория просп. Победы, 4 (52 ... - Фото 2
    Номер объекта: 549791. Продается коммерческое помещение свободного назначения в центре города в проходном месте Помещение находится на 2 -м этаже двухэтажного торгового центра общей площадью 51,80. Свободная планировка.Может подойти под:мед. центр,...
    • 2/2 эт.
    10 500 000 Р
    Агент
    +7 (918) Показать номер
    Посмотреть контакты
    Помещение свободного назначения в Крым, Евпатория ул. Фрунзе, 20 (72 ... - Фото 1
    Помещение свободного назначения в Крым, Евпатория ул. Фрунзе, 20 (72 ... - Фото 2
    Продается коммерческое помещение свободного назначения площадью 72.3 м, расположенное на первом этаже торгового центра ФРУНЗЕНСКИЙ . Ранее использовалось в качестве канцелярского магазина.Помещение находится на первом этаже четырехэтажного здания и предлагает...
    • 1/6 эт.
    12 000 000 Р
    Агент
    +7 (988) Показать номер
    Посмотреть контакты
    Помещение свободного назначения в Крым, Евпатория ул. Фрунзе, 83 (48 ... - Фото 1
    Помещение свободного назначения в Крым, Евпатория ул. Фрунзе, 83 (48 ... - Фото 2
    Номер объекта: 551047. Коммерческое помещение свободного назначения, 48,3 м.- Авторская отделка.- Светлое и уютное пространство.- Два входа: один на центральную улицу, другой во внутренний двор.- Удобное расположение: близость ж/д и автовокзалов.- Развитая...
    • 1/5 эт.
    12 000 000 Р
    Агент
    +7 (918) Показать номер
    Посмотреть контакты
    Помещение свободного назначения в Крым, Евпатория уч1 (39 м) - Фото 1
    Помещение свободного назначения в Крым, Евпатория уч1 (39 м) - Фото 2
    Арт.Предлагаем вашему вниманию апартаменты в городе Евпатория.ЖК Золотые Пески. Евпатория, ул. Симферопольская, 2ч, 74 Расположены на 9-м этаже 10-и этажного дома 2022 года постройки. Общая площадь 39,4 кв.м. (с учетом балкона и лоджии). Свободная планировка....
    • 9/10 эт.
    11 032 000 Р
    Агент
    +7 (918) Показать номер
    Посмотреть контакты
    Помещение свободного назначения в Крым, Евпатория ул. Белинского, 9 ... - Фото 1
    Помещение свободного назначения в Крым, Евпатория ул. Белинского, 9 ... - Фото 2
    Номер объекта: 550431. Предлагается к продаже 1-й этаж нежилое помещение свободного назначения 43м2.- Находится в самом центре города, за городским театром.- Первый этаж свободной планировки с одним с/у.- Теплое и сухое помещение.- На втором этаже полноценная...
    • 1/1 эт.
    10 750 000 Р
    Агент
    +7 (918) Показать номер
    Посмотреть контакты

    Не нашли подходящего объявления?

    Оставьте заявку, и наши риэлторы подберут псн в районе Евпатории

    (0)