Россия, Крым, Заозерное, жилой комплекс Кубики
11 668 800 Р 149 900 $ или 128 000

Информация о квартире

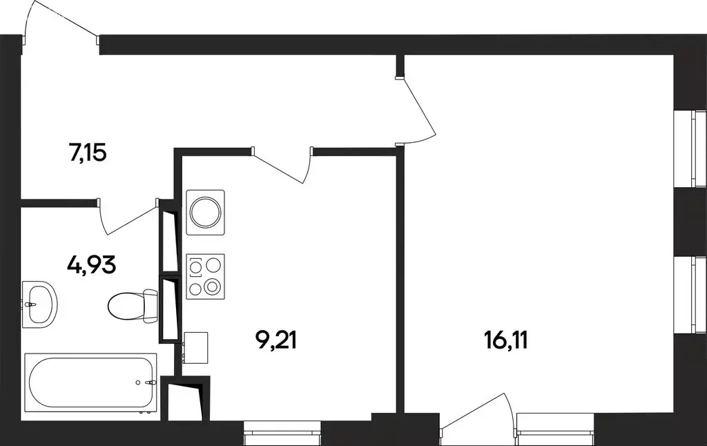
37 м2
Площадь
16 м2
Жилая
9 м2
Кухня
1
Комната
3
Этаж
4
Этажность
Развернуть
Агент
+7 (918) 211-03-37
Начать чат с агентом

1-комнатная квартира: Заозёрное, жилой комплекс Кубики (37.4 м)

Продается 1-комн. кв-ра площадью 37.40 кв.м на 3 этаже 4 этажного монолитного дома в ЖК «Кубики от ГК ИнтерСтрой. Новый жилой комплекс Кубики от группы компаний ИнтерСтрой расположен в пяти минутах неспешной прогулки от черноморского побережья.Малоэтажные монолитно-каркасные дома выполнены в современном стиле.В комплексе тщательно продумана планировка каждой квартиры:Увеличенная высота потолков – 3,1 метраПрименены изысканные архитектурные решения: вентилируемые фасады отделанные керамогранитом отлично вписываются в ландшафт и подчеркивают уникальный внешний вид зданий. Дизайн холлов будет выполнен по индивидуальным проектам.В жилом комплексе предусмотрено всё для Вашего комфорта и эстетического удовольствия:-закрытая территория с видеонаблюдением по периметру двора-дворы без машин-видеодомофоны, доступ в дом по смарт-картам-интернет во дворе-ландшафтное озеленение с автополивом-яркая детская игровая зона-современная воркаут площадка-лаунж-зона-удобные парковочные пространства по периметру комплекса-колясочные и места для хранения велосипедов-безбарьерная среда - входы в подъезды без ступенейЭксплуатируемая кровля будет разбита на разные зоны отдыха: зона шезлонгов, зоны барбекю. В домах спланированы отдельные кладовые для хранения сезонных вещей – это отличный способ экономии полезного пространства квартиры. Удобные подъездные пути и близость всей инфраструктуры.

Читать полностью

    Для того, чтобы купить однокомнатную квартиру по адресу: Заозерное, жилой комплекс Кубики, позвоните по телефону +7 (918) 211-03-37. Торопитесь! Объявление №30092913202 о продаже однокомнатной квартиры опубликовано 13 января 2026.

    Позвонить Написать
    11 668 800 Р149 900 $ или 128 000
    Агент
    +7 (918) 211-03-37
    Начать чат с агентом
    Похожие предложения
    1-к кв. Крым, Евпатория городской округ, Заозерное пгт ул. ... - Фото 1
    1-к кв. Крым, Евпатория городской округ, Заозерное пгт ул. ... - Фото 2
    1-комнатная квартира, общая площадь 40м², жилая 16м², кухня 9м²

    Продается 1 комнатная квартира в ЖК Кубики в солнечной Евпатории Квартира подходит под ипотеку, рассрочку, субсидии, военную ипотеку, материнский капитал Мягкий климат и бескрайние песчаные пляжи с прозрачной водой уникальный природный ландшафт....
    • 40 м²
    • 1-ком
    • 3/4 эт.
    • монолит
    12 120 000 Р
    Агент
    +7 (918) Показать номер
    Посмотреть контакты
    2-к кв. Крым, Евпатория городской округ, Заозерное пгт ул. ... - Фото 1
    2-к кв. Крым, Евпатория городской округ, Заозерное пгт ул. ... - Фото 2
    2-комнатная квартира, общая площадь 52м², кухня 10м²

    В продаже квартира в новом сданном комплексе, подходит под все виды оплаты, в том числе и Семейная ипотека. В жилом комплексе предусмотрено всё для Вашего комфорта и эстетического удовольствия:дворы без машинвидеодомофоны, доступ в дом по смарт-картаминтернет...
    • 52 м²
    • 2-ком
    • 2/4 эт.
    12 832 160 Р
    Агент
    +7 (918) Показать номер
    Посмотреть контакты
    3-к кв. Крым, Евпатория городской округ, Заозерное пгт ул. Гайдара, 62 ... - Фото 1
    3-к кв. Крым, Евпатория городской округ, Заозерное пгт ул. Гайдара, 62 ... - Фото 2
    3-комнатная квартира, общая площадь 72м², кухня 8м²

    Ищете уютное современное жилье в тихом, спокойном месте недалеко от моря?Представляем прекрасную трехкомнатную квартиру (комнаты раздельные) с отличным ремонтом в 10-15 минутах ходьбы до замечательного песчаного пляжа на Западном берегу Крыма.Дом расположен...
    • 72 м²
    • 3-ком
    • 5/5 эт.
    • кирпичный
    12 000 000 Р
    Агент
    +7 (988) Показать номер
    Посмотреть контакты
    1-комнатная квартира: Заозёрное, жилой комплекс Кубики (37.81 м) - Фото 1
    1-комнатная квартира: Заозёрное, жилой комплекс Кубики (37.81 м) - Фото 2
    1-комнатная квартира, общая площадь 37м², жилая 15м², кухня 8м²

    Продается 1-комн. кв-ра площадью 37.81 кв.м на 4 этаже 4 этажного монолитно-кирпичного дома в ЖК «Кубики от ГК ИнтерСтрой. Новый жилой комплекс Кубики от группы компаний ИнтерСтрой расположен в пяти минутах неспешной прогулки от черноморского побережья.Малоэтажные...
    • 37 м²
    • 1-ком
    • 4/4 эт.
    11 002 710 Р
    Агент
    +7 (918) Показать номер
    Посмотреть контакты
    1-комнатная квартира: Заозёрное, жилой комплекс Кубики (37.4 м) - Фото 1
    1-комнатная квартира: Заозёрное, жилой комплекс Кубики (37.4 м) - Фото 2
    1-комнатная квартира, общая площадь 37м², жилая 16м², кухня 9м²

    Продается 1-комн. кв-ра площадью 37.40 кв.м на 2 этаже 4 этажного монолитно-кирпичного дома в ЖК «Кубики от ГК ИнтерСтрой. Новый жилой комплекс Кубики от группы компаний ИнтерСтрой расположен в пяти минутах неспешной прогулки от черноморского побережья.Малоэтажные...
    • 37 м²
    • 1-ком
    • 2/4 эт.
    11 257 400 Р
    Агент
    +7 (918) Показать номер
    Посмотреть контакты

    Не нашли подходящего объявления?

    Оставьте заявку, и наши риэлторы подберут квартиру в районе

    (0)