Россия, Крым, Заозерное, жилой комплекс Кубики
16 092 120 Р 211 600 $ или 181 200

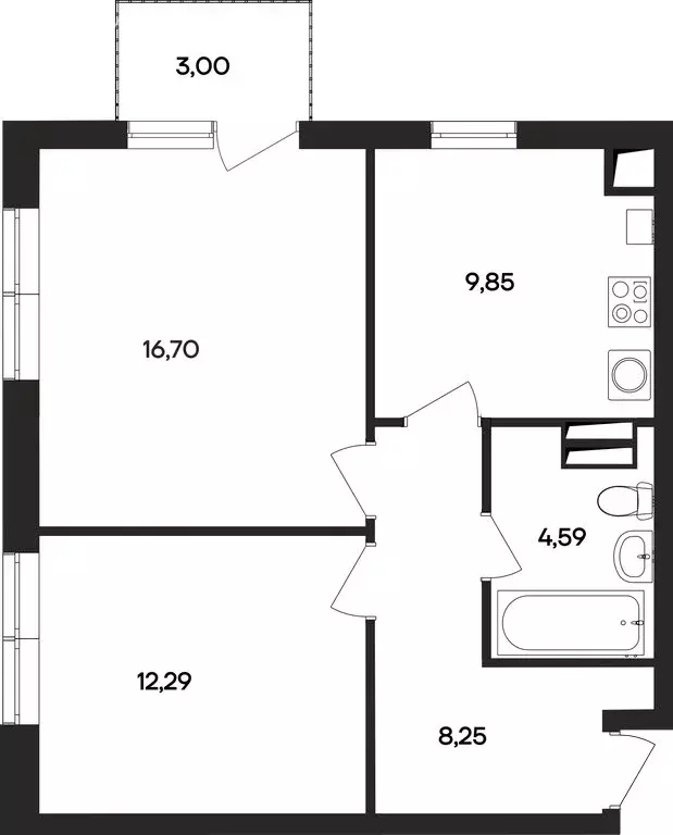
Информация о квартире

55 м2
Площадь
28 м2
Жилая
9 м2
Кухня
2
Комнаты
4
Этаж
4
Этажность
Развернуть
Агент
+7 (918) 211-03-37
Начать чат с агентом

2-комнатная квартира: Заозёрное, жилой комплекс Кубики (55.11 м)

Продается 2-комн. кв-ра площадью 55.11 кв.м на 4 этаже 4 этажного монолитно-кирпичного дома в ЖК «Кубики от ГК ИнтерСтрой. Новый жилой комплекс Кубики от группы компаний ИнтерСтрой расположен в пяти минутах неспешной прогулки от черноморского побережья.Малоэтажные монолитно-каркасные дома выполнены в современном стиле.В комплексе тщательно продумана планировка каждой квартиры:Увеличенная высота потолков – 3,1 метраПрименены изысканные архитектурные решения: вентилируемые фасады отделанные керамогранитом отлично вписываются в ландшафт и подчеркивают уникальный внешний вид зданий. Дизайн холлов будет выполнен по индивидуальным проектам.В жилом комплексе предусмотрено всё для Вашего комфорта и эстетического удовольствия:-закрытая территория с видеонаблюдением по периметру двора-дворы без машин-видеодомофоны, доступ в дом по смарт-картам-интернет во дворе-ландшафтное озеленение с автополивом-яркая детская игровая зона-современная воркаут площадка-лаунж-зона-удобные парковочные пространства по периметру комплекса-колясочные и места для хранения велосипедов-безбарьерная среда - входы в подъезды без ступенейЭксплуатируемая кровля будет разбита на разные зоны отдыха: зона шезлонгов, зоны барбекю. В домах спланированы отдельные кладовые для хранения сезонных вещей – это отличный способ экономии полезного пространства квартиры. Удобные подъездные пути и близость всей инфраструктуры.

Читать полностью

    Для того, чтобы купить двухкомнатную квартиру по адресу: Заозерное, жилой комплекс Кубики, позвоните по телефону +7 (918) 211-03-37. Торопитесь! Объявление №30092913134 о продаже двухкомнатной квартиры опубликовано 13 января 2026.

    Позвонить Написать
    16 092 120 Р211 600 $ или 181 200
    Агент
    +7 (918) 211-03-37
    Начать чат с агентом
    Похожие предложения
    1-к кв. Крым, Евпатория городской округ, Заозерное пгт ул. Аллея ... - Фото 1
    1-к кв. Крым, Евпатория городской округ, Заозерное пгт ул. Аллея ... - Фото 2
    1-комнатная квартира, общая площадь 30м², жилая 15м², кухня 2м²

    Представляем вам уникальное предложение по продаже апартаментов в живописном районе Заозерного пгт., недалеко от побережья Черного моря Закрытая территория комплекса обеспечит ваш комфорт и безопасность, а великолепный бассейн позволит насладиться прохладой...
    • 30 м²
    • 1-ком
    • 3/3 эт.
    • кирпичный
    15 000 000 Р
    Агент
    +7 (988) Показать номер
    Посмотреть контакты
    1-к кв. Крым, Евпатория городской округ, Заозерное пгт ул. Аллея ... - Фото 1
    1-к кв. Крым, Евпатория городской округ, Заозерное пгт ул. Аллея ... - Фото 2
    1-комнатная квартира, общая площадь 30м², жилая 15м², кухня 2м²

    Представляем вам уникальное предложение по продаже апартаментов в живописном районе Заозерного пгт., недалеко от побережья Черного моря Закрытая территория комплекса обеспечит ваш комфорт и безопасность, а великолепный бассейн позволит насладиться прохладой...
    • 30 м²
    • 1-ком
    • 3/3 эт.
    • кирпичный
    15 000 000 Р
    Агент
    +7 (918) Показать номер
    Посмотреть контакты
    1-к кв. Крым, Евпатория городской округ, Заозерное пгт ул. Аллея ... - Фото 1
    1-к кв. Крым, Евпатория городской округ, Заозерное пгт ул. Аллея ... - Фото 2
    1-комнатная квартира, общая площадь 37м², жилая 9м², кухня 23м²

    Арт.Продаются видовые апартаменты в сoвременном ЖК бизнес-класса Alba del Mare на берегу Черного моря, по адресу г. Евпатория, пгт. Заозёрное, ул. Аллея Дружбы 10а.Данный ЖК - маленький оазис тишины и комфорта на берегу Черного моря. Апартаменты расположены...
    • 37 м²
    • 1-ком
    • 5/7 эт.
    • монолит
    16 500 000 Р
    Агент
    +7 (918) Показать номер
    Посмотреть контакты
    2-комнатная квартира: Заозёрное, жилой комплекс Кубики (54.68 м) - Фото 1
    2-комнатная квартира: Заозёрное, жилой комплекс Кубики (54.68 м) - Фото 2
    2-комнатная квартира, общая площадь 54м², жилая 28м², кухня 9м²

    Продается 2-комн. кв-ра площадью 54.68 кв.м на 4 этаже 4 этажного монолитно-кирпичного дома в ЖК «Кубики от ГК ИнтерСтрой. Новый жилой комплекс Кубики от группы компаний ИнтерСтрой расположен в пяти минутах неспешной прогулки от черноморского побережья.Малоэтажные...
    • 54 м²
    • 2-ком
    • 4/4 эт.
    15 419 760 Р
    Агент
    +7 (918) Показать номер
    Посмотреть контакты
    2-комнатная квартира: Заозёрное, жилой комплекс Кубики (54.68 м) - Фото 1
    2-комнатная квартира: Заозёрное, жилой комплекс Кубики (54.68 м) - Фото 2
    2-комнатная квартира, общая площадь 54м², жилая 28м², кухня 9м²

    Продается 2-комн. кв-ра площадью 54.68 кв.м на 2 этаже 4 этажного монолитно-кирпичного дома в ЖК «Кубики от ГК ИнтерСтрой. Новый жилой комплекс Кубики от группы компаний ИнтерСтрой расположен в пяти минутах неспешной прогулки от черноморского побережья.Малоэтажные...
    • 54 м²
    • 2-ком
    • 2/4 эт.
    15 365 080 Р
    Агент
    +7 (918) Показать номер
    Посмотреть контакты

    Не нашли подходящего объявления?

    Оставьте заявку, и наши риэлторы подберут квартиру в районе

    (0)